-
東京メトロ有楽町線「護国寺」駅徒歩約3分。2路線3駅利用可能のペット飼育可能のマンション。コンビニ・スーパーばど商業施設も充実の住環境良好です。
-
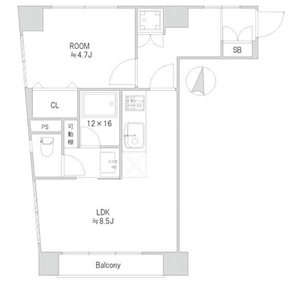
全室2面採光、南向きの明るい住空間はリフォームでリフレッシュした住まい(25.7.26撮影 リフォーム中)
-
リビングダイニング
-
リビングダイニング
-
システムキッチン
-
便利な食洗器付き
-
洗面化粧台
-
ユニットバス(追焚、浴室乾燥暖房機能付き)
-
洗浄機能付きトイレ
-
クローゼット(妖怪ウォッチ.7帖)
-
シューズBOX
-
玄関
-
バルコニーからの眺望
-
バルコニー
-
洗濯機置場
-
TVモニターホン
-
浴室乾燥暖房機リモコン
-
共有のエレベーター。しっかり管理されていてきれいです
-
集合ポスト
-
マンションの正面エントランス。出入りする人間を癒してくれるマンション入り口であり、その建物の「顔」でもあります
-
東京メトロ有楽町線「護国寺」駅まで徒歩約3分、日々の通勤通学に便利です。
-
東京メトロ有楽町線「江戸川橋」駅まで徒歩約8分、日々の通勤通学に便利です。
-
東京メトロ丸の内線「茗荷谷」駅まで徒歩約10分、通勤通学に便利です。
-
ローソン 文京音羽一丁目店まで徒歩約1分。急なお買い物にも便利です。
-
スーパーマーケット リコス 音羽1丁目店まで徒歩約4分。日々のお買い物にも便利です
-
マルエツ プチ 護国寺駅前店まで徒歩約10分、日々のお買い物にも便利です
-
ナチュラルローソン 茗荷谷駅前店まで約765m、お買い物にも便利です
-
コモディ イイダ 江戸川橋店まで徒歩約9分、日々のお買い物にも便利です
-
文京区立関口台公園まで徒歩約4分。
-
4.7の洋室

































