不動産情報 > 中古住宅 > 中古一戸建て >  都道府県選択 >  千葉県の市区郡一覧 >  千葉県の中古一戸建て >  柏市の中古一戸建て >  千葉県柏市松葉町7丁目

一戸建て

千葉県柏市松葉町7丁目

価格 : 3,350万円

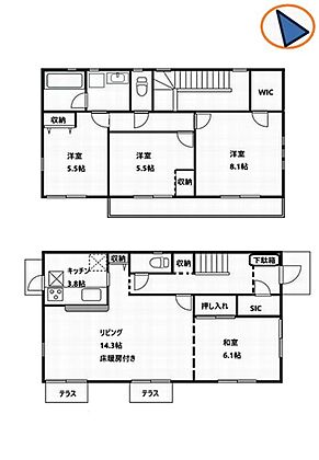
間取り : 4LDK

交通情報 :
  • つくばエクスプレス 柏の葉キャンパス 徒歩20分
Point
ご成約で6万円分の商品券贈呈致します。2008年築の細田工務店施工の建物。徒歩10分圏内に小中学校、スーパー等があり生活しやすい立地の戸建てですよ。居住中につきご内覧希望の場合はお早めにご連絡下さい。
  •  外観 

  •  間取り 

  •  室内 

  •  室内 

  •  駐車場 

物件の基本情報

所在地

千葉県柏市松葉町7丁目

交通
  • つくばエクスプレス 柏の葉キャンパス 徒歩20分
価格

3,350万円

間取り 4LDK 構造及び階数 木造 2階建て
建物面積 105.57m2 土地面積 113.77m2(登記簿)
代表的な接道 一方 公道 南東 18.5m ※詳細は備考欄をご確認ください
築年月 平成20年2月 (築17年)
登録日 2025年12月13日 有効期限 2026年1月4日 (あと14日)
前回情報更新日 2025年12月13日 次回情報更新日 2026年1月4日

お問合せ内容を指定して不動産会社に連絡してみませんか?

物件の特徴・設備・サービス

この物件のこだわり
  • 新築
  • 都市ガス
  • 駐車場あり
  • 南向き
  • 土地権利・所有権
  • リノベーション物件
設備・サービス 床暖房 追焚機能
キッチン システムキッチン
その他 給湯 公営水道 都市ガス 下水 専用バス 専用トイレ 全居室収納 床下収納 クローゼット シューズインクローゼット バルコニー 駐車場あり 所有権 上下水道 トイレ2ヶ所以上 ミストサウナ 和室 2階建て 木造 前面道路6m以上 コンビニ 400m以内 中学校 800m以内 子育てに便利な施設が充実
周辺環境 スーパー 800m以内 コンビニ 800m以内 小学校 800m以内

物件の詳細情報

総戸数 駐車場 有/空き1台
土地権利 所有権
セットバック 私道負担面積
都市計画 市街化区域 地目 宅地
用途地域 第一種住居地域 国土法届出
建ぺい率/容積率 60%/200% 保証金または敷金
権利金 施設費用/償却費
その他費用
引渡し 相談 現況 居住中

取引形態 仲介
設備
備考 【接道】 一方 ( 公道 南東 18.5m )

物件周辺施設までの距離

小学校
  • 柏市立松葉第一小学校 340m
  • 中学校
  • 柏市立松葉中学校 750m
  • コンビニ
  • 340m
  • スーパー
  • 570m
  • 公園
  • 710m
  • ドラッグストア
  • 570m
  • 銀行
  • 650m
  • 情報提供元:株式会社LIFULL

    物件取り扱い会社

    有限会社ラックス
    所在地: 千葉県柏市十余二297-123
    免許番号: 千葉県知事免許(06)第013205号
    所属団体名・公取協名: (公社)首都圏不動産公正取引協議会,(一社)千葉県宅地建物取引業協会,(公財)東日本不動産流通機構
    お問い合わせ番号: 48940-2305
    物件番号: 1140420001433
    無料通話: 0037-634-02339
     ※音声案内に従いお問い合わせ番号を入力し、物件番号を不動産会社に伝えてください。
     ※光IP電話、及びIP電話からのご利用はいただけません。
    TEL: 04-7179-5854

    直接お電話する場合は、「中古住宅ホームフォーユーを見て」とお伝えください。

    最寄り駅から一戸建てを探す

    この物件の近くの一戸建てを探す

    お気に入りへ登録が完了しました
    お気に入りの削除が完了しました

    このページのトップへ

    千葉県柏市松葉町7丁目の物件情報なら、「中古住宅HOME4U」!
    「中古住宅HOME4U」は、NTTデータ・ウィズが運営する中古物件専門の情報サイトです。 千葉県柏市松葉町7丁目などの中古一戸建てをはじめ、全国の新築仲介物件を含む中古一戸建て情報が満載です。 千葉県柏市松葉町7丁目などの中古一戸建てを沿線・エリア・相場価格などから検索でき、複数の不動産会社に無料で一括資料請求ができます。 千葉県柏市松葉町7丁目などの中古一戸建てを探すなら、国内最大級の物件数を誇る「中古住宅HOME4U」をご利用ください! また、住み替えをご検討中の方は「不動産売却HOME4U」で、中古住宅の不動産査定をご利用ください。

    閉じる 「HOME4U家づくりのとびら」なら、無料で資金計画から土地探しまでトータルサポート。まずは無料で、家づくりプランの作成を依頼する。
    閉じる 「HOME4U家づくりのとびら」なら、無料で資金計画から土地探しまでトータルサポート。まずは無料で、家づくりプランの作成を依頼する。
    閉じる 全国15万棟のマンションの相場や口コミがわかる!完全無料でここまでできる?HOME4Uマンションプライスって知ってる?