-
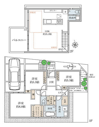
2018年7月築 ポラスの旧分譲地内
-
北東角地で採光良好なお家
-
3LDK+ウォークインクローゼット
-
2階は周囲の建物に遮られにくいため、太陽の光が入りやすく、風通しも良好で明るく開放的なリビングで過ごせます。
-
リビングやダイニングとの間に壁がなく、開放的な印象が最大の魅力!会話を楽しみながら料理ができるのがいいですよね。
-
勾配天井は斜めになった天井が特徴的なデザイン。空間に開放感とデザイン性をもたらし住まいを特別な場所に演出します。
-
リビングやダイニングにいる家族やゲストとコミュニケーションを取りやすいく小さなお子さんがいる家庭では、料理をしながら見守れるのも安心です!
-
鏡の裏に洗面用具や化粧品などをまとめて収納でき、表からは見えないので、洗面台の上がいつもスッキリと片付きます。
-
カビの発生を抑え、お掃除の手間も減りいつでも清潔な浴室を保てる浴室乾燥機付きユニットバス。
-
温水で優しく洗浄し、徹底的な清潔さを提供します。デリケートな肌にも配慮し、心地よい使用感を実現します。
-
衣類だけでなく、小物・バッグなどもまとめて収納できるためお部屋をすっきり保ち、快適な生活をサポートします。
-
光が差し込むことで、暗くなりがちな空間に心地よさと明るさをもたらします。
-
プライベートバルコニーは、外部からの視線を気にせず、ご家族やご自身だけの時間を満喫できる特別な空間です。
-
営業時間:9:00〜21:00。2021年秋から2022年春にかけて、内装・外装をリニューアル。イオンと約160の専門店からなるショッピングモールです。
-
営業時間:9:00〜24:00 品ぞろえが豊富、惣菜や弁当が充実、野菜や果物が新鮮。
-
営業時間:9:00〜21:00。ホームセンターコーナン川口前川店は、スーパーに併設しているので、とても便利なお店です。
-
当院は急性期医療に積的に貢献しており、年間1600件もの救急搬送を受け入れています。
-
1873年2月開校。児童のもつよさを伸ばし、家庭・地域から信頼される上青木小学校をめざして。
-
1955年4月開校。集団の中の個であることを意識し、様々な『学び』に主体的に向かう生徒を育てる学校。
-
地域に愛されるコンパクトな広さの公園です。
-
明るい室内






















