不動産情報 > 中古住宅 > 中古マンション >  都道府県選択 >  東京都の市区郡一覧 >  東京都の中古マンション >  台東区の中古マンション >  ヴェルステージ秋葉原EAST 8階

マンション

ヴェルステージ秋葉原EAST 8階

価格 (管理費/修繕積立金) :
8,999万円 (月額11,220円/月額8,470円)

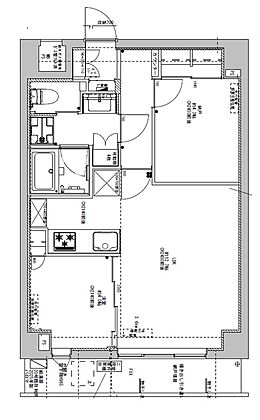
間取り : 1SLDK

交通情報 :
  • 総武・中央緩行線 浅草橋 徒歩7分
  • 都営大江戸線 新御徒町 徒歩9分
Point
売主グループ会社物件です。都市銀行、ネット銀行提携、ローンに不安がある方ご相談承ります。
  •  外観 

  •  間取り 

  •  エントランス 

  •  その他 

  •  エントランスホール 

  •  佐竹商店街 

  •  おかず横丁 

物件の基本情報

物件名 ヴェルステージ秋葉原EAST
所在地

東京都台東区鳥越2丁目6-6

交通
  • 総武・中央緩行線 浅草橋 徒歩7分
  • 都営大江戸線 新御徒町 徒歩9分
価格

8,999万円

管理費 月額11,220円 修繕積立金 月額8,470円
間取り 1SLDK 専有面積 51.00m2(壁芯)
バルコニー面積 6.60m2 バルコニー向き 南西
構造及び階数 RC(鉄筋コンクリート) 11階建て 所在階 8階
築年月 平成20年3月 (築17年)
登録日 2025年11月10日 有効期限 2025年12月2日 (あと13日)
前回情報更新日 2025年11月18日 次回情報更新日 2025年12月3日

お問合せ内容を指定して不動産会社に連絡してみませんか?

物件の特徴・設備・サービス

この物件のこだわり
  • 新築
  • 2階以上の物件
  • 低層
  • タワー
  • 南向き
  • 駐車場あり
  • オートロック
  • 角部屋
  • オール電化
  • リノベーション物件
位置 2階以上
その他 ペット相談 ペット相談可 セキュリティ会社加入済 バルコニー リフォーム物件 駐輪場あり ごみ出し24時間OK 所有権 見学可能 リフォーム・リノベーション済 鉄筋系 複数路線
セキュリティ オートロック 防犯カメラ 宅配ボックス
設備・サービス エレベーター
物件の状況 即入居可
物件規模 総戸数・総区画数30以上

物件の詳細情報

総戸数 90戸 駐車場 空無
土地権利 所有権
用途地域 商業地域 国土法届出
修繕積立基金 保証金または敷金
権利金 施設費用/償却費
その他費用
引渡し 即時 現況 空家

管理 管理方式:日勤、 管理組合:−、 管理会社名:−、 管理形態:−、 管理員:−
取引形態 仲介
設備
備考 ローン提携先多数です。フラット35代理店と提携、ローンに不安がある方、ご相談承ります。 お気軽にお問合せください。

物件のリフォーム情報

リフォーム新規内装リノベーション予定。※詳細は担当まで。
※実施年月は、施工箇所の中で最も古いものを表示しています
情報提供元:株式会社LIFULL

物件取り扱い会社

miline 株式会社未来都市空間
所在地: 東京都中央区築地5丁目3-3 築地浜離宮ビル1階
免許番号: 東京都知事(3)第93401号
所属団体名・公取協名: (公財)東日本不動産流通機構
お問い合わせ番号: 25711-2300
物件番号: 1192950012807
自社管理番号: 08538
無料通話: 0037-634-30848
 ※音声案内に従いお問い合わせ番号を入力し、自社管理番号を不動産会社に伝えてください。
 ※光IP電話、及びIP電話からのご利用はいただけません。
TEL: 0120-707-405

直接お電話する場合は、「中古住宅ホームフォーユーを見て」とお伝えください。

この物件の近くのマンションを探す

お気に入りへ登録が完了しました
お気に入りの削除が完了しました

このページのトップへ

ヴェルステージ秋葉原EASTの物件情報なら、「中古住宅HOME4U」!
「中古住宅HOME4U」は、NTTデータ・ウィズが運営する中古物件専門の情報サイトです。 ヴェルステージ秋葉原EASTなどの中古マンションをはじめ、全国の新築仲介物件を含む中古マンション情報が満載です。 ヴェルステージ秋葉原EASTなどの中古マンションを沿線・エリア・相場価格などから検索でき、複数の不動産会社に無料で一括資料請求ができます。 ヴェルステージ秋葉原EASTなどの中古マンションを探すなら、国内最大級の物件数を誇る「中古住宅HOME4U」をご利用ください! また、住み替えをご検討中の方は「不動産売却HOME4U」で、中古住宅の不動産査定をご利用ください。

閉じる
閉じる
閉じる 全国15万棟のマンションの相場や口コミがわかる!完全無料でここまでできる?HOME4Uマンションプライスって知ってる?