-
1987年竣工ですが、2023年9月に地中海の街から着想を得た一棟リノベーションを実施。傾斜地に建つ総戸数26戸のマンションです。
-
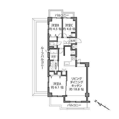
間取り
-
約18.8帖のLDK。南西向きの窓からは、グリーンがさわやかに覗いています。
-
ベージュのアクセントクロスと木目調の天井で、やさしい雰囲気の内装。リビングダイニング(LD)の一角には、ワークスペースにも使えそうなカウンターが用意されています。
-
隣接する洋室Aの扉を開けると、より開放的に。扉の開閉は、暮らしのシーンに合わせるとよさそうです。
-
リビングの窓際はフロアタイルが敷かれ、インナーバルコニー風に。上部に物干し竿を掛けられるので、雨の日の室内干しでも大活躍!
-
キッチンは動線がコンパクトなL字型で、作業効率◎ 奥に食器棚とや冷蔵庫の置き場があります。
-
タイル敷きなので、調理中に床が汚れてもサッと掃除できそうです◎
-
置き型のボウルを使用したミニマルな洗面化粧台。
-
浴室乾燥機と窓付きのバスルーム。自然光が入るだけで、開放感が増しますね。サイズは1418です。
-
トイレは、廊下からアクセス。グレーのクロスで落ち着いた雰囲気です。
-
廊下がカクッと曲がっており、玄関からはLDKが覗けないため、プライベート性が高めです。
-
開けた眺望×大きなルーフバルコニー。のどかな景色が広がっていて、なんだか和みます。約23m2で幅に余裕のある広さです。
-
バルコニーはワイドスパン。洋室A側に物干し金具が備わっています。
-
約6.1帖の洋室Aは南西と北西の二面採光で明るい居室。北西側の窓はルーフバルコニーにつながっています。
-
約4.5帖の洋室Bは北東と北西の二面採光。
-
約4.5帖の洋室Bにはなんと北東側にもバルコニーがあります。採光面が多いので、どの居室にいても明るく過ごせます◎
-
大きなルーフバルコニーへは洋室Bからもアクセス可能です。
-
約4帖の洋室Cは長方形のシンプルな居室。
-
約4帖の洋室Cにはコンパクトなクローゼットが備わっています。























