不動産情報 > 中古住宅 > 中古一戸建て >  都道府県選択 >  東京都の市区郡一覧 >  東京都の中古一戸建て >  杉並区の中古一戸建て >  東京都杉並区高円寺南5丁目

一戸建て

東京都杉並区高円寺南5丁目

価格 : 16,800万円

間取り : 4LDK

交通情報 :
  • 中央本線 中野 徒歩11分
  • 東京メトロ東西線 中野 徒歩11分
Point
「中野」駅まで徒歩11分!建物面積約64.7坪室内外とも状態良好です!
  •  外観 

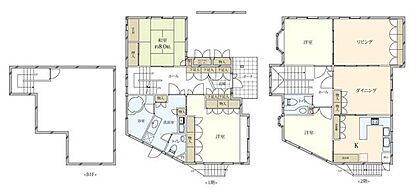
  •  間取り 

  •  リビング/ダイニング 

  •  リビング/ダイニング 

  •  キッチン 

  •  キッチン 

  •  キッチン 

  •  洗面 

  •  洗面 

  •  洗面 

  •  浴室 

  •  トイレ 

  •  玄関 

  •  玄関 

  •  玄関 

  •  室内 

  •  室内 

  •  2階リビング側 

  •  2階キッチン側 

  •  2階 

  •  1階 

  •  駐車場 

  •  勝手口 

  •  地下室 

  •  地下室 

  •  2階ホール 

  •  その他 

  •  その他 

  •  門扉 

  •  セントラルクリーナー 

物件の基本情報

所在地

東京都杉並区高円寺南5丁目

交通
  • 中央本線 中野 徒歩11分
  • 東京メトロ東西線 中野 徒歩11分
価格

16,800万円

間取り 4LDK 構造及び階数 その他 2階(地下1階)建て
建物面積 213.95m2 土地面積 179.51m2
代表的な接道 一方 私道 南 4m ※詳細は備考欄をご確認ください
築年月 平成5年7月 (築32年)
登録日 2025年10月31日 有効期限 2026年1月17日 (あと7日)
前回情報更新日 2026年1月9日 次回情報更新日 2026年1月24日

お問合せ内容を指定して不動産会社に連絡してみませんか?

物件の特徴・設備・サービス

この物件のこだわり
  • 新築
  • 都市ガス
  • 駐車場あり
  • 南向き
  • 土地権利・所有権
  • リノベーション物件
その他 公営水道 都市ガス 駐車場あり 所有権 2階建て 平坦地 複数路線
位置 低層住宅地 南道路

物件の詳細情報

総戸数 駐車場
土地権利 所有権
セットバック 私道負担面積 3.54m2
都市計画 市街化区域 地目 宅地
用途地域 第一種低層住居専用地域 国土法届出 不要
建ぺい率/容積率 60%/150% 保証金または敷金
権利金 施設費用/償却費
その他費用 地勢 平坦
引渡し 相談 現況 居住中

取引形態 仲介
設備
備考 【接道】 一方 ( 私道 南 4m )

FC8BX013
第1種高度、準防火地域、区画整理:計画なし

情報提供元:株式会社LIFULL

物件取り扱い会社

野村不動産ソリューションズ株式会社 中野センター
所在地: 東京都中野区中野5丁目64番5号 サンピオーネビル8階
免許番号: 国土交通大臣(05)第006101号
所属団体名・公取協名: 所属団体未加入
お問い合わせ番号: 09299-2302
物件番号: 35007370000044
自社管理番号: B22507-000050
無料通話: 0037-619-52371
 ※音声案内に従いお問い合わせ番号を入力し、自社管理番号を不動産会社に伝えてください。
 ※光IP電話、及びIP電話からのご利用はいただけません。
TEL: 0120-901-715

直接お電話する場合は、「中古住宅ホームフォーユーを見て」とお伝えください。

この物件の近くの一戸建てを探す

お気に入りへ登録が完了しました
お気に入りの削除が完了しました

このページのトップへ

東京都杉並区高円寺南5丁目の物件情報なら、「中古住宅HOME4U」!
「中古住宅HOME4U」は、NTTデータ・ウィズが運営する中古物件専門の情報サイトです。 東京都杉並区高円寺南5丁目などの中古一戸建てをはじめ、全国の新築仲介物件を含む中古一戸建て情報が満載です。 東京都杉並区高円寺南5丁目などの中古一戸建てを沿線・エリア・相場価格などから検索でき、複数の不動産会社に無料で一括資料請求ができます。 東京都杉並区高円寺南5丁目などの中古一戸建てを探すなら、国内最大級の物件数を誇る「中古住宅HOME4U」をご利用ください! また、住み替えをご検討中の方は「不動産売却HOME4U」で、中古住宅の不動産査定をご利用ください。

閉じる 「HOME4U家づくりのとびら」なら、無料で資金計画から土地探しまでトータルサポート。まずは無料で、家づくりプランの作成を依頼する。
閉じる 「HOME4U家づくりのとびら」なら、無料で資金計画から土地探しまでトータルサポート。まずは無料で、家づくりプランの作成を依頼する。
閉じる 全国15万棟のマンションの相場や口コミがわかる!完全無料でここまでできる?HOME4Uマンションプライスって知ってる?