-
見晴らし、日当たりの良い雛壇になっている
-
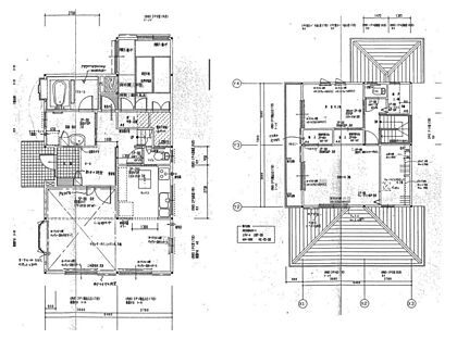
建物の状態は良好。とても綺麗です。
-
3LDK、117mあるのびのび暮らせる広さです
-
リビングダイニングは14畳。明るく開放的な空間
-
キッチンスペースを含めるとLDKは20畳ほどの広さがあります
-
廊下へも出れる2WAYタイプの動線の良いキッチンスペース
-
2階の6畳の洋室もとても明るくここい良い風が入り込みます
-
洗面スペースも広めで、日当たりもよく明るい
-
自慢の温泉が引き込める岩風呂付き
-
お家で毎日温泉に入れます
-
トイレは2箇所にあります
-
ウォークインクローゼットは沢山収納できます
-
玄関スペースも広め
-
容量のあるシューズクローク
-
バルコニーも広め
-
ガレージは扉付き
-
雨風防げるガレージは車好きには必須。高級車も安心。
-
小学校がすぐ近く
-
お部屋からは富士山は見えませんが、少し丘を登れば美しい富士山が望めます
-
可愛らしいレトロ感ある函南駅。駅まで歩いて13分ほど
-
お風呂からは中庭が望め、道路から高い位置にあるため、視界も気にせず露天風呂のように楽しめます
-
2階からは別荘地が見渡せます
-
大きな明かり取りがあるので、北側に配した階段部分も明るい
-
コンクリート部分は、洗濯物干し場。日当たりが良いので洗濯物もすぐ乾きます
-
リビングからの眺め
-
道路も広いので駐車もらく。赤レンガタイルとの境までが私有地なので、来客の車も縦列で止めておけます。
-
周辺の写真
-
別荘地を西側の丘から撮影
-
和室側にもちょっとしてお庭スペースがあります
-
2階の10畳の洋室
































