不動産情報 > 中古住宅 > 中古一戸建て >  都道府県選択 >  埼玉県の市区郡一覧 >  埼玉県の中古一戸建て >  さいたま市西区の中古一戸建て >  埼玉県さいたま市西区三橋6丁目

一戸建て

埼玉県さいたま市西区三橋6丁目

価格 : 3,780万円

間取り : 4LDK

交通情報 :
  • 川越線 西大宮 徒歩19分
  • 京浜東北・根岸線 大宮 バス25分 東五味貝戸 降車 徒歩2分
Point
2023年6月築、大変綺麗にお使いです!大宮駅も利用できる便利な立地にございます。ご見学いただけますので、ぜひお問い合わせください!
  •  【外観-角地】角地に面しているため、開放感のある住まいを実現。陽当り・風通し良好で、快適な暮らしを叶えることができます!(2025年7月撮影) 

  •  【外観-駐車場付】駐車スペースもついているため、愛車をお持ちの方も安心です!駐車できるか不安な方は実際に駐車することもできますので、お気軽にお申し付けください。 

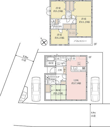
  •  【間取-4LDK】1階・家族空間、2階・プライベート空間に分けられた間取となっております。さらに、全居室収納付き・廊下等にも収納が豊富にございます! 

  •  【リビング-17.0帖】三面採光、17.0帖の開放感のある家族空間。LDK横の和室を開放すれば、20帖えのゆったりとした空間になります。(2025年7月撮影) 

  •  【キッチン-安心】オープンキッチンのため、小さなお子様がひとりで遊んでいても、見守ることができるので、安心して家事をすることができます!(2025年7月撮影) 

  •  【キッチン-便利】水栓一体型浄水器やグリルなど、便利な設備が豊富なキッチン。収納力もあるため、スッキリとしたキッチンでお料理することができます!(2025年7月撮影) 

  •  【洋室-5.25帖】2階は全居室収納付き&全居室二面採光でございます!陽当りもよく、ひとりの時間をゆっくりと過ごすのにも、快適な空間となっております。(2025年7月撮影) 

  •  【洗面台-収納力】洗面台には収納が豊富についているため、化粧品などの小物類からストック品までたっぷり収納できます!スッキリとした洗面台を保つことができるのが、おすすめポイントです! 

  •  【洗面台-嬉しい設備】タッチレス水栓のため、手が汚れていたり、泡だらけでも、手をかざせば自動で水を出すことができます!(2025年7月撮影) 

  •  【浴室-ホワイト】ホワイトを基調としたシンプルな浴室。窓がついているため、換気がしやすく、カビの発生を防ぐことができます。外気温を入れながら、バスタイムを楽しむのもおすすめです! 

  •  【トイレ-1階】窓がついているため、自然と換気ができます。陽の光も差し込み、明るいレストルームを実現。(2025年7月撮影) 

  •  【トイレ-2階】アクセントクロスでお洒落な雰囲気を演出。収納もついているため、ストック品等をスッキリ収納できます!(2025年7月撮影) 

  •  大宮西小学校まで1200m 

  •  大宮西中学校まで1200m 

  •  さいたま市立三橋西保育園まで140m 

  •  コープみらい コープ指扇店まで1000m 

  •  【現地-好立地】通勤・通学が便利な大宮駅を利用可能です!生活利便施設は徒歩15分圏内に充実しており、便利な立地にございます。(2025年7月撮影) 

  •  【和室-臨機応変】LDK横の和室は、お子様の遊び場や宿泊する親戚のお部屋など、臨機応変に利用することができます!収納がついているため、布団などもしっかり収納できます!(2025年7月撮影) 

物件の基本情報

所在地

埼玉県さいたま市西区三橋6丁目

交通
  • 川越線 西大宮 徒歩19分
  • 京浜東北・根岸線 大宮 バス25分 東五味貝戸 降車 徒歩2分
価格

3,780万円

間取り 4LDK 構造及び階数 木造 2階建て
建物面積 104.54m2 土地面積 114.59m2(登記簿)
代表的な接道 角地 公道 南西 4m、北西 4m ※詳細は備考欄をご確認ください
築年月 令和5年6月 (築2年)
登録日 2025年7月22日 有効期限 2025年11月11日 (あと12日)
前回情報更新日 2025年10月29日 次回情報更新日 2025年11月13日

お問合せ内容を指定して不動産会社に連絡してみませんか?

物件の特徴・設備・サービス

この物件のこだわり
  • 新築
  • 都市ガス
  • 駐車場あり
  • 南向き
  • 土地権利・所有権
  • リノベーション物件
位置 角地
セキュリティ TVモニタ付インターホン
キッチン コンロ三口 システムキッチン カウンターキッチン
その他 コンロ二口以上 コンロ三口以上 食器洗い乾燥機 給湯 公営水道 都市ガス 下水 バス・トイレ別 シャワー付洗面化粧台 温水洗浄便座 洗面所独立 全居室収納 床下収納 クローゼット シューズボックス フローリング バルコニー 駐車場2台以上 駐車場あり 所有権 上下水道 トイレ2ヶ所以上 浄水器・活水器 LDK15帖以上 和室 全室2面採光 2階建て 木造 平坦地 コンビニ 400m以内 公園 400m以内 複数路線 最寄り駅が始発駅 バス停3分以内 オンライン相談可
設備・サービス 追焚機能 ウォークインクローゼット
周辺環境 コンビニ 800m以内

物件の詳細情報

総戸数 駐車場 有/空き2台
土地権利 所有権
セットバック 私道負担面積
都市計画 市街化区域 地目 宅地
用途地域 第二種住居地域 国土法届出 不要
建ぺい率/容積率 70%/160% 保証金または敷金
権利金 施設費用/償却費
その他費用 地勢 平坦
引渡し 相談 現況 居住中

取引形態 仲介
設備
備考 【接道】 角地 ( 公道 南西 4m ) ( 公道 北西 4m )

◇◆2023年6月築*大変綺麗にお使いです◆◇
大変綺麗にお使いいただいておりますので、
リフォーム費用を抑えたいなど、
お考えのお客様はぜひ一度ご見学ください!
◇◆開放感のある住まい◆◇
角地に位置しているため、開放感のある住まいでございます!
LDKは三面採光により、温かな日差しや心地よい風に包まれ、
快適な家族空間となっております。
4LDK→5LDK対応可能!(別途工事費用要)
◇◆便利な設備が充実◆◇
食器洗浄乾燥機*水栓一体型浄水器(キッチン)
タッチレス水栓付洗面台*温水洗浄便座
TVモニター付インターホン*床下収納など
ご見学いただけますので、
ご興味のある方は、ぜひお問い合わせください!
※ゴミ置き場:2.25m2・持分6分の1あり ※東南側隣地との地役権設定あり(目的:通行・ライフライン管の埋設) ※北西側道路スクールゾーン設定あり(土日・休日を除く7:30〜8:00)
※東南側隣地との地役権設定あり ※北西側道路スクールゾーン設定あり(土日・休日を除く7:30〜8:00)

物件周辺施設までの距離

小学校
  • 大宮西小学校 1,200m
  • 中学校
  • 大宮西中学校 1,200m
  • コンビニ
  • 140m
  • スーパー
  • 1,000m
  • 公園
  • 350m
  • ドラッグストア
  • 400m
  • その他
  • さいたま市立三橋西保育園 140m
  • 情報提供元:株式会社LIFULL

    物件取り扱い会社

    ポラスグループ 株式会社中央住宅 ポラス住まいの情報館 大宮営業所
    所在地: 埼玉県さいたま市大宮区上小町482-2 第8横溝ビル1F
    免許番号: 国土交通大臣免許(13)第002401号
    所属団体名・公取協名: (公社)首都圏不動産公正取引協議会,(公社)東京都宅地建物取引業協会,(公社)埼玉県宅地建物取引業協会,(一社)千葉県宅地建物取引業協会
    お問い合わせ番号: 73688-2309
    物件番号: 37091340000368
    自社管理番号: TOM000618
    無料通話: 0037-634-99712
     ※音声案内に従いお問い合わせ番号を入力し、自社管理番号を不動産会社に伝えてください。
     ※光IP電話、及びIP電話からのご利用はいただけません。
    TEL: 0120-988-320

    直接お電話する場合は、「中古住宅ホームフォーユーを見て」とお伝えください。

    最寄り駅から一戸建てを探す

    この物件の近くの一戸建てを探す

    お気に入りへ登録が完了しました
    お気に入りの削除が完了しました

    このページのトップへ

    埼玉県さいたま市西区三橋6丁目の物件情報なら、「中古住宅HOME4U」!
    「中古住宅HOME4U」は、NTTデータ・ウィズが運営する中古物件専門の情報サイトです。 埼玉県さいたま市西区三橋6丁目などの中古一戸建てをはじめ、全国の新築仲介物件を含む中古一戸建て情報が満載です。 埼玉県さいたま市西区三橋6丁目などの中古一戸建てを沿線・エリア・相場価格などから検索でき、複数の不動産会社に無料で一括資料請求ができます。 埼玉県さいたま市西区三橋6丁目などの中古一戸建てを探すなら、国内最大級の物件数を誇る「中古住宅HOME4U」をご利用ください! また、住み替えをご検討中の方は「不動産売却HOME4U」で、中古住宅の不動産査定をご利用ください。

    閉じる
    閉じる
    閉じる 全国15万棟のマンションの相場や口コミがわかる!完全無料でここまでできる?HOME4Uマンションプライスって知ってる?