不動産情報 > 中古住宅 > 中古一戸建て >  都道府県選択 >  埼玉県の市区郡一覧 >  埼玉県の中古一戸建て >  春日部市の中古一戸建て >  埼玉県春日部市備後東8丁目

一戸建て

埼玉県春日部市備後東8丁目

価格 : 3,480万円

間取り : 4LDK

交通情報 :
  • 東武伊勢崎・大師線 武里 徒歩5分
  • 東武伊勢崎・大師線 一ノ割 徒歩21分
Point
(ポラスの仲介)通勤通学も安心「武里駅」徒歩5分/タクトホーム(株)施工、住宅性能評価取得物件/2018年1月築、室内大変きれいにお使いです/4LDK・ウォークインクローゼット・カースペース並列2台
  •  外観 

  •  外観 

  •  外観 

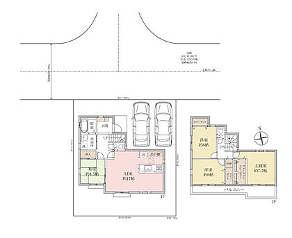
  •  間取り 

  •  リビング/ダイニング 

  •  キッチン 

  •  キッチン 

  •  キッチン 

  •  キッチン 

  •  キッチン 

  •  キッチン 

  •  洗面 

  •  浴室 

  •  トイレ 

  •  収納 

  •  玄関 

  •  バルコニー 

  •  春日部市立備後小学校 450m 

  •  春日部市立武里中学校 1400m 

  •  ラコマート 300m 

  •  和室 

  •  洋室 

  •  洋室 

  •  洋室 

物件の基本情報

所在地

埼玉県春日部市備後東8丁目

交通
  • 東武伊勢崎・大師線 武里 徒歩5分
  • 東武伊勢崎・大師線 一ノ割 徒歩21分
価格

3,480万円

間取り 4LDK 構造及び階数 木造 2階建て
建物面積 101.85m2 土地面積 137.19m2(登記簿)
代表的な接道 一方 公道 北 6m ※詳細は備考欄をご確認ください
築年月 平成30年1月 (築7年)
登録日 2025年8月19日 有効期限 2025年11月13日 (あと12日)
前回情報更新日 2025年10月31日 次回情報更新日 2025年11月15日

お問合せ内容を指定して不動産会社に連絡してみませんか?

物件の特徴・設備・サービス

この物件のこだわり
  • 新築
  • 都市ガス
  • 駐車場あり
  • 南向き
  • 土地権利・所有権
  • リノベーション物件
位置 南向き 低層住宅地
キッチン コンロ三口 システムキッチン カウンターキッチン
その他 コンロ二口以上 コンロ三口以上 給湯 公営水道 都市ガス 下水 太陽光発電システム バス・トイレ別 温水洗浄便座 全居室収納 床下収納 クローゼット シューズボックス フローリング バルコニー 駐車場2台以上 駐車場あり 所有権 上下水道 トイレ2ヶ所以上 南面バルコニー 全室2面採光 2階建て 木造 整形地 前面道路6m以上 平坦地 コンビニ 400m以内 子育てに便利な施設が充実 オンライン相談可
設備・サービス 追焚機能 ウォークインクローゼット
物件の状況 即入居可
周辺環境 スーパー 800m以内 コンビニ 800m以内 小学校 800m以内

物件の詳細情報

総戸数 駐車場 有/空き2台
土地権利 所有権
セットバック 私道負担面積
都市計画 市街化区域 地目 宅地
用途地域 第一種低層住居専用地域 国土法届出 不要
建ぺい率/容積率 50%/80% 保証金または敷金
権利金 施設費用/償却費
その他費用 地勢 平坦
引渡し 即時 現況 空家

取引形態 仲介
設備
備考 【接道】 一方 ( 公道 北 6m )

<空家/随時内覧可能>
◆敷地面積137.19平米(41.49坪)
◆建物面積101.85平米(30.80坪)
◆太陽光発電システム搭載!
◆エアコン4台付!
◆お庭にウッドデッキ付、ガーデニングも楽しめます!
◆周辺に買物施設がそろう便利な住環境(セブンイレブン170m/食品広場ほくほく180m/ラコマート300m/ドラッグストアセキ550m)
◆ご内覧をご希望の方は担当までお気軽にお問い合わせください。
(物件の周辺地図を表示しています。建物の位置正確でない場合がございます。)
建築基準法第22条区域

物件周辺施設までの距離

小学校
  • 春日部市立備後小学校 450m
  • 中学校
  • 春日部市立武里中学校 1,400m
  • コンビニ
  • 170m
  • スーパー
  • 300m
  • ドラッグストア
  • 550m
  • 情報提供元:株式会社LIFULL

    物件取り扱い会社

    ポラスグループ 株式会社中央住宅 ポラス住まいの情報館 千間台営業所
    所在地: 埼玉県越谷市千間台東1丁目8-29
    免許番号: 国土交通大臣免許(13)第002401号
    所属団体名・公取協名: (公社)首都圏不動産公正取引協議会,(公社)東京都宅地建物取引業協会,(公社)埼玉県宅地建物取引業協会,(一社)千葉県宅地建物取引業協会,(公財)東日本不動産流通機構
    お問い合わせ番号: 34747-2303
    物件番号: 37091140003382
    自社管理番号: TSG005079
    無料通話: 0037-634-11567
     ※音声案内に従いお問い合わせ番号を入力し、自社管理番号を不動産会社に伝えてください。
     ※光IP電話、及びIP電話からのご利用はいただけません。
    TEL: 0120-411-057

    直接お電話する場合は、「中古住宅ホームフォーユーを見て」とお伝えください。

    この物件の近くの一戸建てを探す

    お気に入りへ登録が完了しました
    お気に入りの削除が完了しました

    このページのトップへ

    埼玉県春日部市備後東8丁目の物件情報なら、「中古住宅HOME4U」!
    「中古住宅HOME4U」は、NTTデータ・ウィズが運営する中古物件専門の情報サイトです。 埼玉県春日部市備後東8丁目などの中古一戸建てをはじめ、全国の新築仲介物件を含む中古一戸建て情報が満載です。 埼玉県春日部市備後東8丁目などの中古一戸建てを沿線・エリア・相場価格などから検索でき、複数の不動産会社に無料で一括資料請求ができます。 埼玉県春日部市備後東8丁目などの中古一戸建てを探すなら、国内最大級の物件数を誇る「中古住宅HOME4U」をご利用ください! また、住み替えをご検討中の方は「不動産売却HOME4U」で、中古住宅の不動産査定をご利用ください。

    閉じる
    閉じる
    閉じる 全国15万棟のマンションの相場や口コミがわかる!完全無料でここまでできる?HOME4Uマンションプライスって知ってる?