不動産情報 > 中古住宅 > 土地 >  都道府県選択 >  埼玉県の市区郡一覧 >  埼玉県の土地 >  川越市の土地 >  埼玉県川越市新宿町6丁目

土地

埼玉県川越市新宿町6丁目

価格 : 2,890万円

交通情報 :
  • 東武東上線 川越 徒歩30分
  • 西武新宿線 南大塚 徒歩26分
Point
南東向きのため陽当り良好・約42坪の広々とした敷地・お好きなハウスメーカーで建築可能
  •  現地写真 

  •  区画図 

物件の基本情報

所在地

埼玉県川越市新宿町6丁目

交通
  • 東武東上線 川越 徒歩30分
  • 西武新宿線 南大塚 徒歩26分
価格

2,890万円

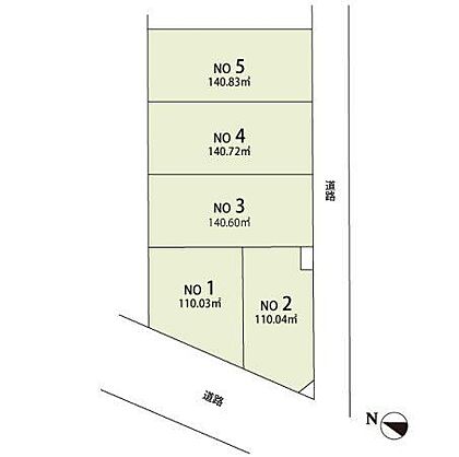
土地面積/坪(坪単価) 140.72m2/42.64坪(67.80万円) 代表的な接道 一方 公道 南 4m
※詳細は備考欄をご確認ください
登録日 2025年10月10日 有効期限 2025年11月17日 (あと7日)
前回情報更新日 2025年11月9日 次回情報更新日 2025年11月24日

お問合せ内容を指定して不動産会社に連絡してみませんか?

物件の特徴・設備・サービス

この物件のこだわり
  • 角地
  • 低層住居地域
  • 建築条件無
  • 土地権利・所有権
その他 公営水道 プロパンガス 建築条件なし 所有権 整形地 更地 複数路線 子育てに便利な施設が充実
位置 南道路
周辺環境 スーパー 800m以内 総合病院 800m以内

物件の詳細情報

土地権利 所有権
セットバック 私道負担面積
都市計画 市街化区域 地目
用途地域 第一種中高層住居専用地域 国土法届出 不要
総区画数
建ぺい率/容積率 60%/200% 保証金または敷金
権利金 施設費用/償却費
その他費用
引渡し 相談 現況 更地

取引形態 仲介
設備
備考 【接道】 一方 ( 公道 南 4m )

・農地法第5条に基づく届出済
・地目:畑、現況:宅地

物件周辺施設までの距離

コンビニ
  • 483m
  • スーパー
  • 487m
  • 病院
  • 754m
  • 公園
  • 464m
  • その他
  • ウェスタ川越 1,582m
  • 情報提供元:株式会社LIFULL

    物件取り扱い会社

    狭山不動産株式会社 狭山店 狭山不動産株式会社 狭山店
    所在地: 埼玉県狭山市祇園2-13
    免許番号: 埼玉県知事(12)第8534号
    所属団体名・公取協名: (公財)東日本不動産流通機構
    お問い合わせ番号: 83536-2306
    物件番号: 37072960006548
    自社管理番号: B02309-001779
    無料通話: 0037-634-13557
     ※音声案内に従いお問い合わせ番号を入力し、自社管理番号を不動産会社に伝えてください。
     ※光IP電話、及びIP電話からのご利用はいただけません。
    TEL: 04-2958-0077

    直接お電話する場合は、「中古住宅ホームフォーユーを見て」とお伝えください。

    最寄り駅から土地を探す

    icon注文住宅を検討の方へ土地探しとあわせてハウスメーカー選びを始めましょう

    もし、土地探しを先行して進めて「ハウスメーカー選び」を後回しにすると、
    こんな失敗に陥るケースも…

    case.1
    住宅ローンの申請に「ハウスメーカー」の
    建築プランが必要だった
    case.2
    土地に費用をかけすぎて、建物の予算が
    足りなくなった

    このような失敗をしないためにも、ハウスメーカー選びを同時に進めましょう!

    「家づくりのとびら」サービスなら、
    土地探しからハウスメーカー選びまで、徹底サポート!

    • 資金計画のシミュレーションをしてもらえる
    • 予算やこだわりに沿ったハウスメーカーを教えてくれる
    • 土地探しに強いハウスメーカーを案内してくれる

    無料相談サービスで効率的に希望の家づくりを!

    お気に入りへ登録が完了しました
    お気に入りの削除が完了しました

    このページのトップへ

    埼玉県川越市新宿町6丁目の物件情報なら、「中古住宅HOME4U」!
    「中古住宅HOME4U」は、NTTデータ・ウィズが運営する中古物件専門の情報サイトです。 埼玉県川越市新宿町6丁目などの土地をはじめ、全国の新築仲介物件を含む土地情報が満載です。 埼玉県川越市新宿町6丁目などの土地を沿線・エリア・相場価格などから検索でき、複数の不動産会社に無料で一括資料請求ができます。 埼玉県川越市新宿町6丁目などの土地を探すなら、国内最大級の物件数を誇る「中古住宅HOME4U」をご利用ください! また、住み替えをご検討中の方は「不動産売却HOME4U」で、中古住宅の不動産査定をご利用ください。

    閉じる
    閉じる
    閉じる 全国15万棟のマンションの相場や口コミがわかる!完全無料でここまでできる?HOME4Uマンションプライスって知ってる?