不動産情報 > 中古住宅 > 中古マンション > 都道府県選択 > 宮崎県の市区郡一覧 > 宮崎県の中古マンション > 宮崎市の中古マンション > アルファスマート青葉北II 中層階 3階
マンション
| 物件名 | アルファスマート青葉北II 中層階 | ||
|---|---|---|---|
| 所在地 | 宮崎県宮崎市下原町332-2 | ||
| 交通 | 
 | ||
| 価格 | |||
| 管理費 | 月額12,800円 | 修繕積立金 | 月額13,100円 | 
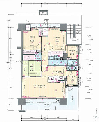
| 間取り | 3SLDK | 専有面積 | 83.06m2(壁芯) | 
| バルコニー面積 | 18.72m2 | バルコニー向き | 南 | 
| 構造及び階数 | RC(鉄筋コンクリート) 12階建て 所在階 3階 | ||
| 築年月 | 平成29年1月 (築8年) | ||
| 登録日 | 2025年8月31日 | 有効期限 | 2025年11月10日 (あと10日) | 
| 前回情報更新日 | 2025年10月27日 | 次回情報更新日 | 2025年11月14日 | 
| この物件のこだわり | 
 | 
|---|---|
| 位置 | ●2階以上 ●角部屋 ●南向き | 
| その他 | ●事務所不可 ●ペット可 ●ペット相談 ●ペット相談可 ●コンロ二口以上 ●コンロ三口以上 ●給湯 ●公営水道 ●都市ガス ●下水 ●専用バス ●専用トイレ ●バス・トイレ別 ●オートバス ●シャワー ●シャワー付洗面化粧台 ●温水洗浄便座 ●洗面所独立 ●CATV ●CS対応 ●BS対応 ●インターネット対応 ●全居室収納 ●シューズボックス ●フローリング ●バルコニー ●室内洗濯機置場 ●駐車場あり ●バイク置き場あり ●駐輪場あり ●ごみ出し24時間OK ●所有権 ●ガスコンロ設置済 ●浄水器・活水器 ●ガスコンロ ●パントリー ●南面バルコニー ●平面駐車場 ●鉄筋系 ●コンビニ 400m以内 ●公園 400m以内 ●複数路線 ●子育てに便利な施設が充実 ●大型犬不可 ●中型犬相談 ●小型犬可 ●猫可 ●多頭飼い相談 | 
| セキュリティ | ●オートロック ●防犯カメラ ●TVモニタ付インターホン ●宅配ボックス | 
| キッチン | ●コンロ三口 ●システムキッチン ●カウンターキッチン | 
| 設備・サービス | ●追焚機能 ●浴室乾燥機 ●バリアフリー ●エレベーター | 
| 物件規模 | ●総戸数・総区画数30以上 | 
| 周辺環境 | ●スーパー 800m以内 ●コンビニ 800m以内 ●総合病院 800m以内 | 
| 総戸数 | 71戸 | 駐車場 | 空有/空き1台 | 
|---|---|---|---|
| 土地権利 | 所有権 | ||
| 用途地域 | 準工業地域 | 国土法届出 | 不要 | 
| 修繕積立基金 | − | 保証金または敷金 | − | 
| 権利金 | − | 施設費用/償却費 | − | 
| その他費用 | − | ||
| 引渡し | 相談 | 現況 | 居住中 | 
| 管理 | 管理方式:日勤、 管理組合:−、 管理会社名:−、 管理形態:−、 管理員:− | ||
| 取引形態 | 仲介 | ||
| 設備 | − | ||
| 備考 | 〇築浅8年〇東南角住戸〇3LDK+パパ&ママルーム付〇中層階(所在階はお問い合わせください)〇平置駐車場(賃料80円/月)〇宮崎駅まで徒歩13分〇インターネット使い放題(有料) ※掲載している室内画像は売却済みの同間取りの3階画像です。 | ||
| 小学校 |  | 
|---|---|
| 中学校 |  | 
| コンビニ |  | 
| スーパー |  | 
| 病院 |  | 
| 公園 |  | 
| ドラッグストア |  | 
| 銀行 |  | 
オフィス花山手龍  
所在地: 宮崎県宮崎市花山手西1丁目10-7 
免許番号: 宮崎県知事(04)第004523号
所属団体名・公取協名: (一社)九州不動産公正取引協議会,(一社)宮崎県宅地建物取引業協会,(公社)西日本不動産流通機構
お問い合わせ番号: 21894-2305
物件番号: 32220820000728
無料通話: 0037-634-30240
 ※音声案内に従いお問い合わせ番号を入力し、物件番号を不動産会社に伝えてください。
 ※光IP電話、及びIP電話からのご利用はいただけません。
TEL: 0985-69-5075
直接お電話する場合は、「中古住宅ホームフォーユーを見て」とお伝えください。
 
