不動産情報 > 中古住宅 > 中古マンション > 都道府県選択 > 埼玉県の市区郡一覧 > 埼玉県の中古マンション > さいたま市北区の中古マンション > パークシティさいたま北アークレジデンス 15階
マンション
| 物件名 | パークシティさいたま北アークレジデンス | ||
|---|---|---|---|
| 所在地 |
埼玉県さいたま市北区宮原町3丁目901-1 |
||
| 交通 |
|
||
| 価格 | |||
| 管理費 | 月額12,160円 | 修繕積立金 | 月額9,060円 |
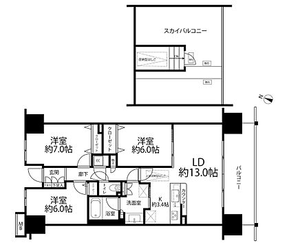
| 間取り | 3LDK | 専有面積 | 81.58m2(壁芯) |
| バルコニー面積 | 28.72m2 | バルコニー向き | 南東 |
| 構造及び階数 | RC(鉄筋コンクリート) 15階建て 所在階 15階 | ||
| 築年月 | 平成21年2月 (築16年) | ||
| 登録日 | 2025年7月24日 | 有効期限 | 2025年11月19日 (あと12日) |
| 前回情報更新日 | 2025年11月5日 | 次回情報更新日 | 2025年11月21日 |
| この物件のこだわり |
|
|---|---|
| 位置 | ●2階以上 ●最上階 |
| その他 | ●事務所不可 ●ペット可 ●ペット相談 ●ペット相談可 ●コンロ二口以上 ●コンロ三口以上 ●食器洗い乾燥機 ●バス・トイレ別 ●シャワー ●シャワー付洗面化粧台 ●温水洗浄便座 ●洗面所独立 ●CATV ●CS対応 ●BS対応 ●インターネット対応 ●全居室収納 ●クローゼット ●バルコニー ●リフォーム物件 ●駐車場あり ●バイク置き場あり ●駐輪場あり ●ごみ出し24時間OK ●フロントサービス ●フラット35・S適合証明書 ●耐震基準適合証明書 ●所有権 ●浄水器・活水器 ●リフォーム・リノベーション済 ●リフォーム・リノベーション済 内装全面 ●リフォーム・リノベーション済 水回りまたは内装 ●ルーフバルコニー ●ゲストルーム ●鉄筋系 ●複数路線 ●子育てに便利な施設が充実 |
| セキュリティ | ●オートロック ●防犯カメラ ●TVモニタ付インターホン ●宅配ボックス |
| キッチン | ●コンロ三口 ●システムキッチン ●ディスポーザー |
| 設備・サービス | ●浴室乾燥機 ●エレベーター ●キッズルーム |
| 物件の状況 | ●即入居可 |
| 物件規模 | ●大規模マンション ●総戸数・総区画数30以上 |
| 周辺環境 | ●スーパー 800m以内 ●コンビニ 800m以内 ●小学校 800m以内 |
| 総戸数 | 861戸 | 駐車場 | 空有 |
|---|---|---|---|
| 土地権利 | 所有権 | ||
| 用途地域 | − | 国土法届出 | 不要 |
| 修繕積立基金 | − | 保証金または敷金 | − |
| 権利金 | − | 施設費用/償却費 | − |
| その他費用 | ルーフバルコニー使用料 280円 | ||
| 引渡し | 即時 | 現況 | 空家 |
| 管理 | 管理方式:日勤、 管理組合:−、 管理会社名:−、 管理形態:−、 管理員:− | ||
| 取引形態 | 売主 | ||
| 設備 | − | ||
| 備考 |
■新規フルリノベーション物件(2025年3月完了):クロス・フローリング張替、建具・下足入交換、設備交換(キッチン、UB、洗面台、トイレ、電気温水器)、フロアタイル上貼(玄関、トイレ、洗面) ■充実の共用部(ゲストルーム、パティールーム兼キッズルーム、カフェラウンジ、多目的ルーム、その他) ■アークレジデンスの総戸数:418戸 ■修繕積立金の内訳:棟別修繕積立金7020円、全体修繕積立金2040円 ■バルコニー面積:12.8平米 |
||
| 水回り | 2025年03月
キッチン、浴室、トイレ、洗面所 電気温水器 |
|---|---|
| 内装 | 2025年03月
内装全面(床、壁、天井、建具すべて) |
| 小学校 |
|
|---|---|
| コンビニ |
|
| スーパー |
|
| 病院 |
|
| 公園 |
|
| ドラッグストア |
|
| 銀行 |
|
株式会社すむたす 大阪オフィス
所在地: 大阪府大阪市北区芝田1丁目1-3 阪急三番街南館2階 阪急阪神ONSoffice
免許番号: 国土交通大臣(01)第010177号
所属団体名・公取協名: (公社)近畿地区不動産公正取引協議会,(公社)全日本不動産協会
お問い合わせ番号: 45807-2305
物件番号: 1520760000100
無料通話: 0037-619-65965
※音声案内に従いお問い合わせ番号を入力し、物件番号を不動産会社に伝えてください。
※光IP電話、及びIP電話からのご利用はいただけません。
TEL: 0120-295-422
直接お電話する場合は、「中古住宅ホームフォーユーを見て」とお伝えください。