不動産情報 > 中古住宅 > 中古一戸建て >  都道府県選択 >  千葉県の市区郡一覧 >  千葉県の中古一戸建て >  千葉市中央区の中古一戸建て >  千葉県千葉市中央区都町1丁目

一戸建て

千葉県千葉市中央区都町1丁目

価格 : 2,480万円

間取り : 4SDK

交通情報 :
  • 総武・中央緩行線 千葉 バス13分 貝塚 降車 徒歩3分
Point
千葉駅バス圏の区画整理地内の中古戸建!自分好みにリフォームしたい方おすすめ■きれいな区画整理地■南側平屋建ての為陽当たり良好■リフォームも建築会社である弊社君津住宅にお任せ下さい。
  •  外観 

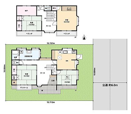
  •  間取り 

  •  リビング/ダイニング 

  •  洗面 

  •  洗面 

  •  浴室 

  •  トイレ 

  •  収納 

  •  駐車場 

  •  かわまち矢作モール店 

  •  ヨークフーズ都町店 

  •  セブンイレブン千葉都町1丁目店 

  •  スギ薬局千葉都町店 

  •  コーナンPRO道場店 

  •  千葉市立都小学校 

  •  医療法人社団福生会斎藤労災病院 

  •  千葉道場郵便局 

  •  千葉信用金庫都町支店 

  •  和室 

  •  和室 

  •  和室 

  •  和室 

  •  洋室 

物件の基本情報

所在地

千葉県千葉市中央区都町1丁目

交通
  • 総武・中央緩行線 千葉 バス13分 貝塚 降車 徒歩3分
価格

2,480万円

間取り 4SDK 構造及び階数 木造 2階建て
建物面積 120.89m2 土地面積 157.34m2(登記簿)
代表的な接道 一方 公道 東 6m ※詳細は備考欄をご確認ください
築年月 昭和63年7月 (築37年)
登録日 2025年10月8日 有効期限 2025年11月6日 (あと4日)
前回情報更新日 2025年10月23日 次回情報更新日 2025年11月15日

お問合せ内容を指定して不動産会社に連絡してみませんか?

物件の特徴・設備・サービス

この物件のこだわり
  • 新築
  • 都市ガス
  • 駐車場あり
  • 南向き
  • 土地権利・所有権
  • リノベーション物件
位置 南向き
その他 公営水道 都市ガス 下水 専用バス 専用トイレ 洗面所独立 床下収納 フローリング バルコニー 室内洗濯機置場 駐車場あり 所有権 上下水道 トイレ2ヶ所以上 ガスコンロ設置済 ガスコンロ 和室 南面バルコニー 2階建て 木造 整形地 前面道路6m以上 コンビニ 400m以内 複数路線 バス停3分以内 子育てに便利な施設が充実
物件の状況 即入居可
周辺環境 スーパー 800m以内 コンビニ 800m以内 小学校 800m以内

物件の詳細情報

総戸数 駐車場 有/空き1台
土地権利 所有権
セットバック 私道負担面積
都市計画 市街化区域 地目 宅地
用途地域 第一種中高層住居専用地域 国土法届出
建ぺい率/容積率 60%/200% 保証金または敷金
権利金 施設費用/償却費
その他費用
引渡し 即時 現況 空家

取引形態 仲介
設備
備考 【接道】 一方 ( 公道 東 6m )

契約不適合責任免責

物件周辺施設までの距離

小学校
  • 千葉市立都小学校 650m
  • 中学校
  • 千葉市立加曾利中学校 1,900m
  • コンビニ
  • 200m
  • スーパー
  • 750m
  • 病院
  • 1,035m
  • ドラッグストア
  • 600m
  • 銀行
  • 374m
  • 情報提供元:株式会社LIFULL

    物件取り扱い会社

    株式会社君津住宅 イオンモール津田沼店
    所在地: 千葉県習志野市津田沼1丁目23-1 イオンモール津田沼3階
    免許番号: 国土交通大臣免許(1)第10637号
    所属団体名・公取協名: (公財)東日本不動産流通機構
    お問い合わせ番号: 95840-2306
    物件番号: 1514120000151
    無料通話: 0037-619-96173
     ※音声案内に従いお問い合わせ番号を入力し、物件番号を不動産会社に伝えてください。
     ※光IP電話、及びIP電話からのご利用はいただけません。
    TEL: 047-473-6700

    直接お電話する場合は、「中古住宅ホームフォーユーを見て」とお伝えください。

    最寄り駅から一戸建てを探す

    この物件の近くの一戸建てを探す

    お気に入りへ登録が完了しました
    お気に入りの削除が完了しました

    このページのトップへ

    千葉県千葉市中央区都町1丁目の物件情報なら、「中古住宅HOME4U」!
    「中古住宅HOME4U」は、NTTデータ・ウィズが運営する中古物件専門の情報サイトです。 千葉県千葉市中央区都町1丁目などの中古一戸建てをはじめ、全国の新築仲介物件を含む中古一戸建て情報が満載です。 千葉県千葉市中央区都町1丁目などの中古一戸建てを沿線・エリア・相場価格などから検索でき、複数の不動産会社に無料で一括資料請求ができます。 千葉県千葉市中央区都町1丁目などの中古一戸建てを探すなら、国内最大級の物件数を誇る「中古住宅HOME4U」をご利用ください! また、住み替えをご検討中の方は「不動産売却HOME4U」で、中古住宅の不動産査定をご利用ください。

    閉じる
    閉じる
    閉じる 全国15万棟のマンションの相場や口コミがわかる!完全無料でここまでできる?HOME4Uマンションプライスって知ってる?