-
築11年の元モデルハウス。高級感と三方角地の開放感がある贅沢なお家です。ぜひ一度ご覧ください!
-
3台駐車可能。お庭部分は生垣の目隠しで、美観+プライバシーも確保しています。
-
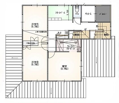
サンルームとバルコニーが1箇所に。お天気によって干す場所を変えるのもラクラク。またフリースペースは収納やワークスペース、趣味のお部屋などご家族のライフスタイルに合わせた使い方が可能。
-
アイランドキッチンを中心としたリビング。和室4.2帖と繋げることで広々とした空間に◎大きなガレージや坪庭など見所たっぷりのお家。
-
小屋裏収納は普段使わないものや季節物などの収納にもピッタリ。
-
リビングは二方向から光が差しこみ明るい空間です。
-
お庭を眺めながら過ごせるくつろぎの場。どこに立っても眺めの良いリビングです。
-
リビングの隣にはオープンな和室。リビングと合わせて、より広々と過ごせます。
-
テレビ背面のアクセントウォールには、小物棚と間接照明付。柔らかなライトでリビングをシックな雰囲気に。
-
IHコンロに食器洗い乾燥機。作業スペースも広く機能的なアイランドキッチン。
-
背面のカップボードはコの字+αで大容量の収納スペース。カウンター部分も広く、調理家電の配置に便利。
-
プライバシーに配慮した高窓のある主寝室。広々した幅でシングルベッド3台が横並びに置くことができます。
-
大きな鏡の造作洗面台。背面にも大きな収納棚付きで、見た目の美しさと使いやすさの両方を兼ね備えます。
-
浴室乾燥機+ランドリーバー付きのバスルーム。
-
1階トイレ。張り出しの間接照明でデザイン性も◎お洒落で落ち着く空間。
-
やわらかな色合いのアクセントクロスと、壁のニッチが空間に奥行きをプラス。上品で心地よい空間です。
-
大容量の収納スペースで靴などがスッキリ片付きます。大きな鏡で外出時の身だしなみチェックも◎
-
寝室には大きなウォークインクローゼット。お部屋がすっきり片付きます。
-
小屋裏収納は普段使わないものや季節物などの収納にもピッタリ。
-
玄関横のエントランスクローク。ベビーカーや自転車などもそのまま持ち込めます。
-
明るい木目ドアが映える、上品で落ち着いた玄関まわり。
-
ガレージから室内へ直接入れます。雨や雪の日、荷物が多い時もラクラク☆
-
2Fフリースペース。収納やワークスペース、趣味に活用したりと様々な使い方が可能です。
-
フリースペース前には壁面収納。ストック用品を収納したりディスプレイを楽しむのもいいですね。
-
2階ホールスペースのカウンター。ちょっとした作業場やワークスペースに嬉しい空間です。
-
バルコニーと併設のサンルーム。気持ちの良い季節は窓を開けて、風を通しながらのお洗濯も。
-
車庫スペース。奥にある収納棚は、タイヤや工具などのカー用品置き場として大活躍です!
-
防犯面も安心のシャッター付のガレージ。ガレージの前にも駐車スペースが確保できます。
-
閑静な高級住宅街。道路幅も広く生活しやすい環境です。
-
縁側風のタイルテラス。お庭で気軽にくつろげるスペースです。
































