不動産情報 > 中古住宅 > 土地 >  都道府県選択 >  東京都の市区郡一覧 >  東京都の土地 >  大田区の土地 >  東京都大田区北千束1丁目

土地

東京都大田区北千束1丁目

価格 : 8,480万円

交通情報 :
  • 東急大井町線 大岡山 徒歩7分
  • 東急目黒線 洗足 徒歩11分
Point
大岡山駅至近◆◇整形地で自由設計
  •  現地外観写真 

  •  現地外観写真 

  •  現地外観写真 

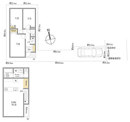
  •  間取図 

  •  現地外観写真 

  •  東京急行電鉄目黒線大岡山駅 

  •  東急目黒線 洗足駅 

  •  駅前は商業施設も豊富で、おしゃれな雰囲気が漂います。各ニーズに対応可能な環境になっております。 

  •  大岡山公園 

  •  ◇郵便局が近くにあると様々な場面で便利ですよね。最近は赤いポストの数も減ってきた印象です。 

  •  大岡山駅直結の病院なのでアクセス良好。総合病院が近くにあると何かと安心だと思います。 

  •  目黒区立南保育園 

  •  通学路は穏やかな住宅街の中の道なので、お子さんの通学も安心。 

  •  ヒルママーケットプレイス 

  •  区画図 

  •  現地外観写真 

物件の基本情報

所在地

東京都大田区北千束1丁目

交通
  • 東急大井町線 大岡山 徒歩7分
  • 東急目黒線 洗足 徒歩11分
価格

8,480万円

土地面積/坪(坪単価) 83.15m2(実測)/25.2坪(336.50万円) 代表的な接道 一方 公道 東 3.7m
※詳細は備考欄をご確認ください
登録日 2025年10月21日 有効期限 2025年11月11日 (あと12日)
前回情報更新日 2025年10月29日 次回情報更新日 2025年11月13日

お問合せ内容を指定して不動産会社に連絡してみませんか?

物件の特徴・設備・サービス

この物件のこだわり
  • 角地
  • 低層住居地域
  • 建築条件無
  • 土地権利・所有権
その他 公営水道 都市ガス 下水 建築条件なし 所有権 自由設計対応 上下水道 整形地 古家あり 複数路線 子育てに便利な施設が充実 オンライン相談可
位置 低層住宅地
周辺環境 スーパー 800m以内 小学校 800m以内

物件の詳細情報

土地権利 所有権
セットバック 0.58m2 私道負担面積
都市計画 市街化区域 地目 宅地
用途地域 第一種低層住居専用地域 国土法届出 不要
総区画数
建ぺい率/容積率 50%/100% 保証金または敷金
権利金 施設費用/償却費
その他費用
引渡し 相談 現況 古家有

取引形態 仲介
設備
備考 【接道】 一方 ( 公道 東 3.7m )

◆◇不動産の専門家ファイナンシャルプランナーがあなたのマイホーム探しを徹底サポート
不動産の専門家ファイナンシャルプランナーがあなたのマイホーム探しを徹底サポート◇◆

物件周辺施設までの距離

小学校
  • 清水窪小学校 300m
  • 中学校
  • 大森第六中学校 1,400m
  • コンビニ
  • 500m
  • スーパー
  • 530m
  • ドラッグストア
  • 500m
  • 情報提供元:株式会社LIFULL

    物件取り扱い会社

    株式会社アドキャスト 等々力支店
    所在地: 東京都世田谷区等々力3丁目9-5
    免許番号: 東京都知事(04)第086581号
    所属団体名・公取協名: (公財)東日本不動産流通機構
    お問い合わせ番号: 14639-2309
    物件番号: 1419970001858
    自社管理番号: 198250926abc
    無料通話: 0037-634-33213
     ※音声案内に従いお問い合わせ番号を入力し、自社管理番号を不動産会社に伝えてください。
     ※光IP電話、及びIP電話からのご利用はいただけません。
    TEL: 0120-442-180

    直接お電話する場合は、「中古住宅ホームフォーユーを見て」とお伝えください。

    最寄り駅から土地を探す

    この物件の近くの土地を探す

    icon注文住宅を検討の方へ土地探しとあわせてハウスメーカー選びを始めましょう

    もし、土地探しを先行して進めて「ハウスメーカー選び」を後回しにすると、
    こんな失敗に陥るケースも…

    case.1
    住宅ローンの申請に「ハウスメーカー」の
    建築プランが必要だった
    case.2
    土地に費用をかけすぎて、建物の予算が
    足りなくなった

    このような失敗をしないためにも、ハウスメーカー選びを同時に進めましょう!

    「家づくりのとびら」サービスなら、
    土地探しからハウスメーカー選びまで、徹底サポート!

    • 資金計画のシミュレーションをしてもらえる
    • 予算やこだわりに沿ったハウスメーカーを教えてくれる
    • 土地探しに強いハウスメーカーを案内してくれる

    無料相談サービスで効率的に希望の家づくりを!

    お気に入りへ登録が完了しました
    お気に入りの削除が完了しました

    このページのトップへ

    東京都大田区北千束1丁目の物件情報なら、「中古住宅HOME4U」!
    「中古住宅HOME4U」は、NTTデータ・ウィズが運営する中古物件専門の情報サイトです。 東京都大田区北千束1丁目などの土地をはじめ、全国の新築仲介物件を含む土地情報が満載です。 東京都大田区北千束1丁目などの土地を沿線・エリア・相場価格などから検索でき、複数の不動産会社に無料で一括資料請求ができます。 東京都大田区北千束1丁目などの土地を探すなら、国内最大級の物件数を誇る「中古住宅HOME4U」をご利用ください! また、住み替えをご検討中の方は「不動産売却HOME4U」で、中古住宅の不動産査定をご利用ください。

    閉じる
    閉じる
    閉じる 全国15万棟のマンションの相場や口コミがわかる!完全無料でここまでできる?HOME4Uマンションプライスって知ってる?