-
【ライオンズマンション川崎第14】市バス「追分」停まで徒歩2分の立地。JR京浜東北線・南武線・東海道線「川崎駅」までバス乗車12分でのアクセスが可能。毎日の通勤や通学・お出かけにも便利です。
-
【外観写真】買物施設や総合病院まで徒歩5分圏内、小学校まで徒歩7分圏内と、暮らしやすいロケーションも魅力です。周辺環境と併せて、ぜひご検討ください。
-
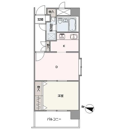
南西角住戸につき、陽当たり・通風良好。ダイニングと洋室は、ライフスタイルにあわせて、一体利用できます。洋室や廊下・脱衣所に物入が設けられており、室内の整理整頓が叶います。
-
【エントランス】階段とスロープが設けられています。屋根付きのため、雨の日なども落ち着いて傘を広げてからお出かけができます。
-
【エントランス】地上8階建て、総戸数49戸、(株)大京既分譲マンションです。タイル調のスタイリッシュなデザインが採用されています。
-
【エントランス】オートロックが設置されています。マンション住人以外の侵入を防ぐことができ、防犯面にも配慮されています。
-
【エントランス】共用部にエレベーターが設置されています。ベビーカーや重たい荷物を持っての移動も、スムーズに行うことができそうです。
-
【館銘板】鋼管通り沿いに位置しており、マンション前には歩道も整備されています。周辺は、坂道の少ない平坦地エリア。徒歩はもちろん、自転車などでもスムーズに移動ができそうです。
-
【集合ポスト】共用部に設置されている集合ポスト。お出かけ帰りなど、帰宅ついでに郵便物を確認しやすく、便利です。
-
【駐輪場・バイク置場】敷地内に駐輪場(使用料:無償)やバイク置場(使用料:1000円/月)が設けられています。屋根付きのスペースのため、雨風から守りながら保管できます。













