不動産情報 > 中古住宅 > 中古一戸建て >  都道府県選択 >  神奈川県の市区郡一覧 >  神奈川県の中古一戸建て >  横浜市港南区の中古一戸建て >  神奈川県横浜市港南区港南3丁目

一戸建て

神奈川県横浜市港南区港南3丁目

価格 : 1,780万円

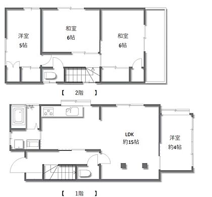
間取り : 4LDK

交通情報 :
  • 横浜市営地下鉄ブルーライン 港南中央 徒歩9分
  • 京浜急行本線 上大岡 徒歩19分
Point
港南中央駅徒歩8分 京急線 横浜市営地下鉄ブル−ライン 上大岡駅徒歩19分 リフォ−ム戸建て
  •  外観 

  •  間取り 

  •  リビング/ダイニング 

  •  子供部屋 

  •  洗面 

  •  トイレ 

  •  トイレ 

  •  トイレ 

  •  室内 

  •  室内 

  •  バルコニー 

  •  周辺 

  •  その他 

  •  その他 

  •  その他 

  •  その他 

  •  その他 

  •  洋室 

  •  和室 

  •  洋室 

物件の基本情報

所在地

神奈川県横浜市港南区港南3丁目

交通
  • 横浜市営地下鉄ブルーライン 港南中央 徒歩9分
  • 京浜急行本線 上大岡 徒歩19分
価格

1,780万円

間取り 4LDK 構造及び階数 木造 2階建て
建物面積 68.72m2 土地面積 102.68m2
接道
築年月 昭和51年8月 (築49年)
登録日 2025年10月5日 有効期限 2025年11月11日 (あと7日)
前回情報更新日 2025年10月29日 次回情報更新日 2025年11月18日

お問合せ内容を指定して不動産会社に連絡してみませんか?

物件の特徴・設備・サービス

この物件のこだわり
  • 新築
  • 都市ガス
  • 駐車場あり
  • 南向き
  • 土地権利・所有権
  • リノベーション物件
キッチン システムキッチン
その他 公営水道 都市ガス 下水 リフォーム物件 所有権 上下水道 ガスコンロ設置済 ガスコンロ リフォーム・リノベーション済 和室 2階建て 木造 複数路線 子育てに便利な施設が充実
位置 低層住宅地
周辺環境 スーパー 800m以内 コンビニ 800m以内 総合病院 800m以内

物件の詳細情報

総戸数 駐車場
土地権利 所有権
セットバック 私道負担面積
都市計画 市街化区域 地目 宅地
用途地域 第一種低層住居専用地域 国土法届出
建ぺい率/容積率 50%/80% 保証金または敷金
権利金 施設費用/償却費
その他費用
引渡し 相談 現況 空家

取引形態 仲介
設備
備考 都市ガス
お庭でガーデニングや家庭菜園が楽します♪
2025年10月リフォーム完成予定 
スーパーやコンビニ近くでお買い物便利です。

物件のリフォーム情報

水回り 2025年10月
キッチン、トイレ、洗面所
内装 2025年10月
床(フローリング等)
※実施年月は、施工箇所の中で最も古いものを表示しています

物件周辺施設までの距離

コンビニ
  • 510m
  • スーパー
  • 640m
  • 病院
  • 460m
  • 公園
  • 1,280m
  • 銀行
  • 550m
  • 情報提供元:株式会社LIFULL

    物件取り扱い会社

    モデルハウス株式会社
    所在地: 神奈川県横浜市西区宮崎町55番地
    免許番号: 神奈川県知事(03)第028787号
    所属団体名・公取協名: (公社)全日本不動産協会
    お問い合わせ番号: 94485-2301
    物件番号: 1329960001160
    無料通話: 0037-634-62740
     ※音声案内に従いお問い合わせ番号を入力し、物件番号を不動産会社に伝えてください。
     ※光IP電話、及びIP電話からのご利用はいただけません。
    TEL: 045-392-7930

    直接お電話する場合は、「中古住宅ホームフォーユーを見て」とお伝えください。

    お気に入りへ登録が完了しました
    お気に入りの削除が完了しました

    このページのトップへ

    神奈川県横浜市港南区港南3丁目の物件情報なら、「中古住宅HOME4U」!
    「中古住宅HOME4U」は、NTTデータ・ウィズが運営する中古物件専門の情報サイトです。 神奈川県横浜市港南区港南3丁目などの中古一戸建てをはじめ、全国の新築仲介物件を含む中古一戸建て情報が満載です。 神奈川県横浜市港南区港南3丁目などの中古一戸建てを沿線・エリア・相場価格などから検索でき、複数の不動産会社に無料で一括資料請求ができます。 神奈川県横浜市港南区港南3丁目などの中古一戸建てを探すなら、国内最大級の物件数を誇る「中古住宅HOME4U」をご利用ください! また、住み替えをご検討中の方は「不動産売却HOME4U」で、中古住宅の不動産査定をご利用ください。

    閉じる
    閉じる
    閉じる 全国15万棟のマンションの相場や口コミがわかる!完全無料でここまでできる?HOME4Uマンションプライスって知ってる?