不動産情報 > 中古住宅 > 中古マンション > 都道府県選択 > 千葉県の市区郡一覧 > 千葉県の中古マンション > 千葉市稲毛区の中古マンション > イトーピア稲毛マンション 4階
マンション
| 物件名 | イトーピア稲毛マンション | ||
|---|---|---|---|
| 所在地 | 千葉県千葉市稲毛区小仲台4丁目3-18 | ||
| 交通 | 
 | ||
| 価格 | |||
| 管理費 | 月額14,800円 | 修繕積立金 | 月額20,120円 | 
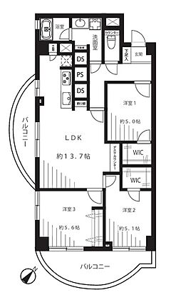
| 間取り | 3LDK | 専有面積 | 73.86m2 | 
| バルコニー面積 | 16.30m2 | バルコニー向き | − | 
| 構造及び階数 | RC(鉄筋コンクリート) 8階建て 所在階 4階 | ||
| 築年月 | 昭和48年10月 (築52年) | ||
| 登録日 | 2025年10月20日 | 有効期限 | 2025年11月12日 (あと11日) | 
| 前回情報更新日 | 2025年10月29日 | 次回情報更新日 | 2025年11月14日 | 
| この物件のこだわり | 
 | 
|---|---|
| 位置 | ●2階以上 | 
| その他 | ●ペット可 ●ペット相談 ●ペット相談可 ●コンロ二口以上 ●コンロ三口以上 ●食器洗い乾燥機 ●給湯 ●都市ガス ●専用バス ●専用トイレ ●バス・トイレ別 ●オートバス ●シャワー ●シャワー付洗面化粧台 ●温水洗浄便座 ●洗面所独立 ●全居室収納 ●クローゼット ●フローリング ●バルコニー ●室内洗濯機置場 ●リフォーム物件 ●駐車場あり ●バイク置き場あり ●駐輪場あり ●所有権 ●ガスコンロ設置済 ●ガスコンロ ●リフォーム・リノベーション済 ●全室フローリング ●鉄筋系 ●コンビニ 400m以内 ●公園 400m以内 ●複数路線 ●子育てに便利な施設が充実 | 
| セキュリティ | ●TVモニタ付インターホン | 
| キッチン | ●コンロ三口 ●システムキッチン | 
| 設備・サービス | ●追焚機能 ●ウォークインクローゼット ●エレベーター | 
| 物件の状況 | ●即入居可 | 
| 物件規模 | ●総戸数・総区画数30以上 | 
| 周辺環境 | ●コンビニ 800m以内 ●総合病院 800m以内 | 
| 総戸数 | 118戸 | 駐車場 | 空有 | 
|---|---|---|---|
| 土地権利 | 所有権 | ||
| 用途地域 | − | 国土法届出 | 不要 | 
| 修繕積立基金 | − | 保証金または敷金 | − | 
| 権利金 | − | 施設費用/償却費 | − | 
| その他費用 | − | ||
| 引渡し | 即時 | 現況 | 空家 | 
| 管理 | 管理方式:日勤、 管理組合:−、 管理会社名:−、 管理形態:−、 管理員:− | ||
| 取引形態 | 仲介 | ||
| 設備 | − | ||
| 備考 | 本日ご見学可能。住み替え相談・ローン相談も随時、受付中です!! 面倒な入力不要なお電話でのお問合せも可能です。お気軽にご利用くださいませ。 〇お客様のご都合に合わせてご案内いたします 〇ご指定場所までお迎えに上がることも可能です 〇現地待ち合わせ&解散が可能ですので、隙間時間でご見学いただけます 〇女性スタッフの対応可能 〇掲載物件以外もまとめてご案内可能です お気軽にお問合せださいませ!! | ||
| 水回り | 2025年10月 キッチン、浴室、トイレ、洗面所 | 
|---|---|
| 内装 | 2025年10月 壁、天井(クロス、塗装等)、床(フローリング等)、建具(室内ドア等) クリーニング | 
| 小学校 |  | 
|---|---|
| 中学校 |  | 
| コンビニ |  | 
| スーパー |  | 
| 病院 |  | 
| 公園 |  | 
| ドラッグストア |  | 
| 銀行 |  | 
南総キングダム株式会社 千葉土地建物管理 千葉支店  千葉土地建物管理 千葉支店
所在地: 千葉県千葉市中央区中央1丁目6-8 
免許番号: 千葉県知事(3)第16775号
所属団体名・公取協名: (公財)東日本不動産流通機構
お問い合わせ番号: 04033-2300
物件番号: 1272630012329
無料通話: 0037-634-99913
 ※音声案内に従いお問い合わせ番号を入力し、物件番号を不動産会社に伝えてください。
 ※光IP電話、及びIP電話からのご利用はいただけません。
TEL: 043-306-9775
直接お電話する場合は、「中古住宅ホームフォーユーを見て」とお伝えください。
 
