不動産情報 > 中古住宅 > 土地 >  都道府県選択 >  東京都の市区郡一覧 >  東京都の土地 >  八王子市の土地 >  東京都八王子市富士見町

土地

東京都八王子市富士見町

価格 : 2,990万円

交通情報 :
  • 八高線 北八王子 徒歩17分
  • 京王線 京王八王子 バス4分 大和田 降車 徒歩12分
Point
建築条件なし! JR八高線「北八王子」駅まで徒歩17分◎ 複数路線利用可能!
  •  現地外観 

  •  現地外観 

  •  現地外観 

  •  現地外観 

  •  現地外観 

  •  現地外観 

  •  現地外観 

  •  現地外観 

  •  現地外観 

  •  現地外観 

  •  現地外観 

  •  現地外観 

  •  現地外観 

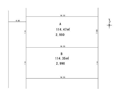
  •  区画図 

  •  JR八高線 北八王子駅 

  •  八王子市立 第十小学校 

  •  八王子市立 ひよどり山中学校 

物件の基本情報

所在地

東京都八王子市富士見町

交通
  • 八高線 北八王子 徒歩17分
  • 京王線 京王八王子 バス4分 大和田 降車 徒歩12分
価格

2,990万円

土地面積/坪(坪単価) 114.35m2(実測)/34.65坪(86.30万円) 代表的な接道 一方 公道 西 4m
※詳細は備考欄をご確認ください
登録日 2025年10月23日 有効期限 2025年11月15日 (あと13日)
前回情報更新日 2025年11月1日 次回情報更新日 2025年11月16日

お問合せ内容を指定して不動産会社に連絡してみませんか?

物件の特徴・設備・サービス

この物件のこだわり
  • 角地
  • 低層住居地域
  • 建築条件無
  • 土地権利・所有権
その他 公営水道 下水 建築条件なし 所有権 上下水道 更地 コンビニ 400m以内 公園 400m以内 商店街 800m以内 複数路線 子育てに便利な施設が充実
位置 低層住宅地
周辺環境 スーパー 800m以内 総合病院 800m以内

物件の詳細情報

土地権利 所有権
セットバック 私道負担面積
都市計画 市街化区域 地目 宅地
用途地域 第一種低層住居専用地域 国土法届出 不要
総区画数
建ぺい率/容積率 50%/100% 保証金または敷金
権利金 施設費用/償却費
その他費用
引渡し 相談 現況 更地

取引形態 仲介
設備
備考 【接道】 一方 ( 公道 西 4m )

貴重なお時間の中で、ご希望の情報をご案内します!
お客様のご都合に合わせて、
「これから販売される物件だけ」
「知りたい情報だけ」という
短時間のご案内も可能です!

物件周辺施設までの距離

小学校
  • 八王子市立第十小学校 886m
  • 中学校
  • 八王子市立ひよどり山中学校 1,915m
  • コンビニ
  • 359m
  • スーパー
  • 577m
  • 病院
  • 68m
  • 公園
  • 112m
  • 商店街
  • 701m
  • 情報提供元:株式会社LIFULL

    物件取り扱い会社

    朝日土地建物株式会社 橋本支店 営業2課
    所在地: 神奈川県相模原市緑区橋本6丁目4番15号
    免許番号: 国土交通大臣(9)第3744号
    所属団体名・公取協名: (公財)東日本不動産流通機構
    お問い合わせ番号: 62639-2300
    物件番号: 1244540008627
    自社管理番号: H2-6156250-B
    無料通話: 0037-634-71993
     ※音声案内に従いお問い合わせ番号を入力し、自社管理番号を不動産会社に伝えてください。
     ※光IP電話、及びIP電話からのご利用はいただけません。
    TEL: 0120-62-4312

    直接お電話する場合は、「中古住宅ホームフォーユーを見て」とお伝えください。

    最寄り駅から土地を探す

    この物件の近くの土地を探す

    icon注文住宅を検討の方へ土地探しとあわせてハウスメーカー選びを始めましょう

    もし、土地探しを先行して進めて「ハウスメーカー選び」を後回しにすると、
    こんな失敗に陥るケースも…

    case.1
    住宅ローンの申請に「ハウスメーカー」の
    建築プランが必要だった
    case.2
    土地に費用をかけすぎて、建物の予算が
    足りなくなった

    このような失敗をしないためにも、ハウスメーカー選びを同時に進めましょう!

    「家づくりのとびら」サービスなら、
    土地探しからハウスメーカー選びまで、徹底サポート!

    • 資金計画のシミュレーションをしてもらえる
    • 予算やこだわりに沿ったハウスメーカーを教えてくれる
    • 土地探しに強いハウスメーカーを案内してくれる

    無料相談サービスで効率的に希望の家づくりを!

    お気に入りへ登録が完了しました
    お気に入りの削除が完了しました

    このページのトップへ

    東京都八王子市富士見町の物件情報なら、「中古住宅HOME4U」!
    「中古住宅HOME4U」は、NTTデータ・ウィズが運営する中古物件専門の情報サイトです。 東京都八王子市富士見町などの土地をはじめ、全国の新築仲介物件を含む土地情報が満載です。 東京都八王子市富士見町などの土地を沿線・エリア・相場価格などから検索でき、複数の不動産会社に無料で一括資料請求ができます。 東京都八王子市富士見町などの土地を探すなら、国内最大級の物件数を誇る「中古住宅HOME4U」をご利用ください! また、住み替えをご検討中の方は「不動産売却HOME4U」で、中古住宅の不動産査定をご利用ください。

    閉じる
    閉じる
    閉じる 全国15万棟のマンションの相場や口コミがわかる!完全無料でここまでできる?HOME4Uマンションプライスって知ってる?