不動産情報 > 中古住宅 > 中古一戸建て >  都道府県選択 >  青森県の市区郡一覧 >  青森県の中古一戸建て >  青森市の中古一戸建て >  青森県青森市花園2丁目

新築

一戸建て

青森県青森市花園2丁目

価格 : 2,570万円

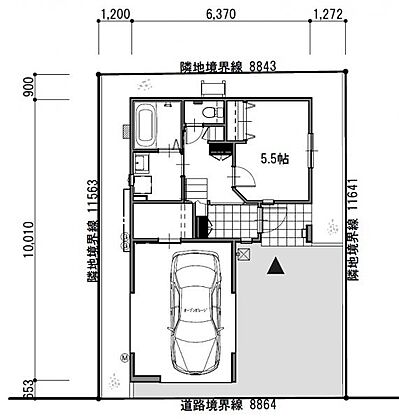
間取り : 3LDK

交通情報 :
  • なし
    青い森鉄道 東青森 合浦町 降車 徒歩7分
  •  外観 

  •  間取り 

  •  間取り 

  •  リビング/ダイニング 

  •  キッチン 

  •  キッチン 

  •  洗面 

  •  トイレ 

  •  収納 

  •  玄関 

  •  玄関 

  •  室内 

  •  室内 

  •  室内 

  •  その他 

  •  洋室 

  •  洋室 

  •  洋室 

  •  洋室 

  •  洋室 

物件の基本情報

所在地

青森県青森市花園2丁目

交通
  • なし
    青い森鉄道 東青森 合浦町 降車 徒歩7分
価格

2,570万円

間取り 3LDK 構造及び階数 木造 2階建て
建物面積 80.16m2 土地面積 102.72m2(実測)
代表的な接道 一方 ※詳細は備考欄をご確認ください
築年月 令和8年3月完成予定 (築-1年)
登録日 2025年10月27日 有効期限 2025年11月12日 (あと13日)
前回情報更新日 2025年10月28日 次回情報更新日 2025年11月12日

お問合せ内容を指定して不動産会社に連絡してみませんか?

物件の特徴・設備・サービス

この物件のこだわり
  • 新築
  • 都市ガス
  • 駐車場あり
  • 南向き
  • 土地権利・所有権
  • リノベーション物件
セキュリティ TVモニタ付インターホン
その他 エアコン コンロ二口以上 コンロ三口以上 食器洗い乾燥機 公営水道 プロパンガス 下水 オートバス シャワー付洗面化粧台 温水洗浄便座 全居室収納 クローゼット シューズボックス 室内洗濯機置場 駐車場2台以上 駐車場あり 住宅性能保証制度証明書 設計住宅性能評価書 フラット35・S適合証明書 所有権 上下水道 節水型トイレ ガスコンロ設置済 ガスコンロ 吹き抜け 24時間換気システム 省エネ給湯器 全室フローリング クッションフロア ディンプルキー EV充電設備 2階建て 木造 瑕疵保険(国交省指定)による保証付 地盤調査済 整形地 平坦地
キッチン コンロ三口 システムキッチン
設備・サービス 追焚機能 ウォークインクローゼット
位置 南道路

物件の詳細情報

総戸数 駐車場 有/空き2台
土地権利 所有権
セットバック 私道負担面積
都市計画 市街化区域 地目 宅地
用途地域 第一種中高層住居専用地域 国土法届出 不要
建ぺい率/容積率 60%/200% 保証金または敷金
権利金 施設費用/償却費
その他費用 水道加入金 132,000円、瑕疵担保責任保険料 55,000円 地勢 平坦
引渡し 相談 現況 未完成

取引形態 仲介
設備
備考 【接道】 一方

情報提供元:株式会社LIFULL

物件取り扱い会社

イエステーション 青森中央店 クロタキ不動産株式会社
所在地: 青森県青森市安方2丁目9-16
免許番号: 青森県知事免許(06)第002758号
所属団体名・公取協名: 東北地区不動産公正取引協議会,(公社)全日本不動産協会青森県本部,(公財)東日本不動産流通機構
お問い合わせ番号: 94695-2301
物件番号: 37020190001485
自社管理番号: 20229497
無料通話: 0037-634-19345
 ※音声案内に従いお問い合わせ番号を入力し、自社管理番号を不動産会社に伝えてください。
 ※光IP電話、及びIP電話からのご利用はいただけません。
TEL: 017-723-1996

直接お電話する場合は、「中古住宅ホームフォーユーを見て」とお伝えください。

最寄り駅から一戸建てを探す

この物件の近くの一戸建てを探す

お気に入りへ登録が完了しました
お気に入りの削除が完了しました

このページのトップへ

青森県青森市花園2丁目の物件情報なら、「中古住宅HOME4U」!
「中古住宅HOME4U」は、NTTデータ・ウィズが運営する中古物件専門の情報サイトです。 青森県青森市花園2丁目などの中古一戸建てをはじめ、全国の新築仲介物件を含む中古一戸建て情報が満載です。 青森県青森市花園2丁目などの中古一戸建てを沿線・エリア・相場価格などから検索でき、複数の不動産会社に無料で一括資料請求ができます。 青森県青森市花園2丁目などの中古一戸建てを探すなら、国内最大級の物件数を誇る「中古住宅HOME4U」をご利用ください! また、住み替えをご検討中の方は「不動産売却HOME4U」で、中古住宅の不動産査定をご利用ください。

閉じる
閉じる
閉じる 全国15万棟のマンションの相場や口コミがわかる!完全無料でここまでできる?HOME4Uマンションプライスって知ってる?