-
1976年竣工、総戸数167戸の大規模マンション。2006年に耐震補強工事、2007年に大規模修繕工事を実施済みで、以降もこまめにメンテナンスされています。
-
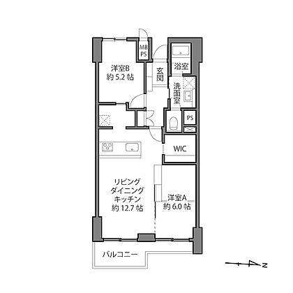
間取り
-
約12.7帖のLDK。ほぼ東向きなので、朝の光が心地よく差し込みそうです。
-
白を基調とした内装で、インテリアのテイストを選ばずレイアウトを楽しめそうです。キッチンの面材やテレビボードを兼ねた壁面収納のブラウンが、空間に落ち着きを与えてくれます。
-
LDKに隣接する洋室の扉を開けると、広々とした開放感ある空間になります。シーンに合わせた過ごし方ができます◎
-
床にはほどよい弾力があって、素足でも気持ちよく歩けるフレキシブルボードを採用しています。モルタル調のクールな質感が、空間をキュッと引き締めてくれます。
-
洋室Aの床はLDKと同じくフレキシブルボードを採用し、扉を開けていても統一感ある空間に。そして、リビングダイニング(LD)から見ても、ベッドや収納が目に入らないのです。
-
3口ガスコンロと食洗機付きのキッチン。売主さまのようにシンク上にペンダントライトを取り付ければ、空間を彩ることもできます。
-
冷蔵庫置き場やカップボードは、キッチン奥のパントリーにスッキリと配置。
-
室内窓は洋室Bと繋がっています。
-
洗面室から、トイレとバスルームへアクセスします。洗面台はコンパクトタイプ。小物はミラー付きキャビネットの中に収納可能です。
-
1116サイズのバスルームは浴室乾燥機付き。
-
洗面室から、アクセスするトイレ。トイレの扉は黄色となっているのはポイント!
-
ウォークインクローゼット
-
玄関にはシューズボックスは2つ設置されています。写真にはありませんが、玄関扉は新しいものに交換されたばかり◎
-
LDKに隣接する洋室との境あたりでクランクした形のバルコニー。洋室Aからも出入り可能です。
-
ウッドテイストで落ち着きある約6帖の洋室A。収納は小上がりを利用してベッド下に設けられています。開口部よりも奥に配置されているので、LDから見ても生活感が出にくくなっています。
-
約6帖の洋室Aにはパイプのカーテンレールが設置されています。カーテンを付ければ、扉を開けていても生活感をさらに抑えられるほか、光を遮ることができるので、お子さまの寝かしつけにもよさそうです。
-
バルコニーからの眺望/正面に建物がありますが、道路分の距離は取れているので圧迫感はそこまで感じません。
-
約5.2帖の洋室B。室内窓からはリビングの光が届きます。反対側には共用廊下に面した窓もあります。























