| 所在地 | 東京都杉並区本天沼3丁目 | ||
|---|---|---|---|
| 交通 | 
 | ||
| 価格 | |||
| 土地面積/坪(坪単価) | 97.18m2(登記簿)/29.45坪(230.90万円) | 代表的な接道 | 一方 公道 南西 11.3m ※詳細は備考欄をご確認ください | 
| 登録日 | 2025年10月16日 | 有効期限 | 2025年11月14日 (あと14日) | 
| 前回情報更新日 | 2025年10月30日 | 次回情報更新日 | 2025年11月14日 | 
| この物件のこだわり | 
 | 
|---|---|
| その他 | ●都市ガス ●下水 ●建築条件なし ●所有権 ●前面道路6m以上 ●平坦地 ●更地 ●コンビニ 400m以内 ●中学校 800m以内 ●子育てに便利な施設が充実 | 
| 物件の状況 | ●即入居可 | 
| 位置 | ●低層住宅地 | 
| 周辺環境 | ●スーパー 800m以内 ●小学校 800m以内 | 
| 土地権利 | 所有権 | ||
|---|---|---|---|
| セットバック | − | 私道負担面積 | − | 
| 都市計画 | 市街化区域 | 地目 | 宅地 | 
| 用途地域 | 第一種低層住居専用地域 | 国土法届出 | 不要 | 
| 総区画数 | − | ||
| 建ぺい率/容積率 | 50%/100% | 保証金または敷金 | − | 
| 権利金 | − | 施設費用/償却費 | − | 
| その他費用 | − | 地勢 | 平坦 | 
| 引渡し | 即時 | 現況 | 更地 | 
| 取引形態 | 仲介 | ||
| 設備 | − | ||
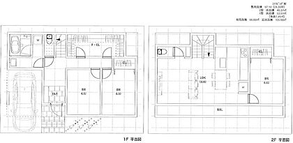
| 備考 | 【接道】 一方 ( 公道 南西 11.3m ) ■現状更地■建物参考プランあり。■お好きなハウスメーカーや工務店で自由に建物を建築できます。■提携ハウスメーカーもございますので、お気軽にご相談ください。■第一種低層住居地域のため閑静な住環境です。■南西道路で日当たり通風良好。開放感ある土地です。■小学校までは徒歩約4分!お子様の通学も安心です。建築や住宅ローンに関する詳細につきましては、お気軽に弊社までお問い合わせください。 景観法/航空法 | ||
| 小学校 |  | 
|---|---|
| 中学校 |  | 
| コンビニ |  | 
| スーパー |  | 
| 公園 |  | 
| ドラッグストア |  | 
株式会社プライムコーポレーション 売買部  
所在地: 東京都世田谷区北沢2丁目35-2 第3シンヤシキビル205号 
免許番号: 東京都知事免許(04)第086964号
所属団体名・公取協名: (公社)首都圏不動産公正取引協議会,(公社)東京都宅地建物取引業協会,(公財)東日本不動産流通機構
お問い合わせ番号: 56020-2303
物件番号: 1311760000683
自社管理番号: 2128028412410000000161
無料通話: 0037-634-13117
 ※音声案内に従いお問い合わせ番号を入力し、自社管理番号を不動産会社に伝えてください。
 ※光IP電話、及びIP電話からのご利用はいただけません。
TEL: 03-3465-8181
直接お電話する場合は、「中古住宅ホームフォーユーを見て」とお伝えください。
このような失敗をしないためにも、ハウスメーカー選びを同時に進めましょう!
無料相談サービスで効率的に希望の家づくりを!
 
