不動産情報 > 中古住宅 > 中古一戸建て >  都道府県選択 >  神奈川県の市区郡一覧 >  神奈川県の中古一戸建て >  小田原市の中古一戸建て >  神奈川県小田原市前川

一戸建て

神奈川県小田原市前川

価格 : 4,380万円

間取り : 3LDK

交通情報 :
  • 東海道本線 国府津 徒歩20分
Point
東海道線「国府津」駅徒歩圏内の立地です!太陽光発電システム搭載のオール電化住宅です!リビングが見渡せる対面式キッチン!(20時まで電話対応可能)
  •  間取り 

  •  国府津駅 

  •  その他 

  •  その他 

  •  その他 

  •  その他 

  •  その他 

  •  その他 

  •  その他 

  •  その他 

  •  その他 

  •  その他 

  •  その他 

  •  その他 

  •  その他 

  •  その他 

  •  その他 

  •  その他 

  •  その他 

  •  その他 

  •  その他 

  •  その他 

  •  その他 

  •  その他 

  •  その他 

  •  その他 

  •  その他 

  •  その他 

  •  その他 

  •  その他 

物件の基本情報

所在地

神奈川県小田原市前川

交通
  • 東海道本線 国府津 徒歩20分
価格

4,380万円

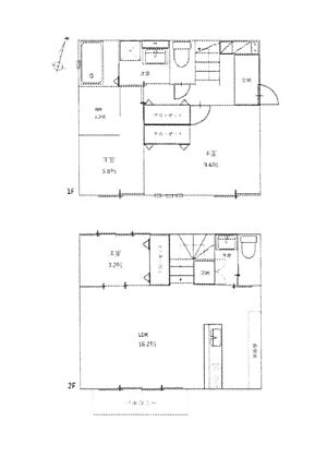
間取り 3LDK 構造及び階数 軽量鉄骨 2階建て
建物面積 99.00m2 土地面積 196.41m2(実測)
接道
築年月 令和3年7月 (築4年)
登録日 2025年10月16日 有効期限 2025年10月31日 (あと2日)
前回情報更新日 2025年10月17日 次回情報更新日 2025年11月12日

お問合せ内容を指定して不動産会社に連絡してみませんか?

物件の特徴・設備・サービス

この物件のこだわり
  • 新築
  • 都市ガス
  • 駐車場あり
  • 南向き
  • 土地権利・所有権
  • リノベーション物件
キッチン システムキッチン カウンターキッチン
その他 給湯 公営水道 下水 太陽光発電システム 専用バス 専用トイレ シャワー付洗面化粧台 温水洗浄便座 洗面所独立 全居室収納 クローゼット シューズボックス フローリング バルコニー 室内洗濯機置場 駐車場あり 耐震構造(新耐震基準適合) 所有権 上下水道 トイレ2ヶ所以上 スマートキー 断熱窓(複層ガラス、内窓等) 2階建て 鉄骨系 複数路線 オンライン相談可
設備・サービス オール電化 追焚機能 ウォークインクローゼット

物件の詳細情報

総戸数 駐車場
土地権利 所有権
セットバック 私道負担面積
都市計画 市街化区域 地目 宅地
用途地域 第一種住居地域 国土法届出 不要
建ぺい率/容積率 60%/200% 保証金または敷金
権利金 施設費用/償却費
その他費用
引渡し 相談 現況 空家

取引形態 仲介
設備
備考

情報提供元:株式会社LIFULL

物件取り扱い会社

アプリコットホーム株式会社
所在地: 神奈川県平塚市四之宮5丁目20-18
免許番号: 神奈川県知事(4)第26230号
所属団体名・公取協名: (公社)首都圏不動産公正取引協議会,(公社)神奈川県宅地建物取引業協会
お問い合わせ番号: 65806-2302
物件番号: 1081360026989
無料通話: 0037-634-06912
 ※音声案内に従いお問い合わせ番号を入力し、物件番号を不動産会社に伝えてください。
 ※光IP電話、及びIP電話からのご利用はいただけません。
TEL: 0463-51-2008

直接お電話する場合は、「中古住宅ホームフォーユーを見て」とお伝えください。

最寄り駅から一戸建てを探す

この物件の近くの一戸建てを探す

お気に入りへ登録が完了しました
お気に入りの削除が完了しました

このページのトップへ

神奈川県小田原市前川の物件情報なら、「中古住宅HOME4U」!
「中古住宅HOME4U」は、NTTデータ・ウィズが運営する中古物件専門の情報サイトです。 神奈川県小田原市前川などの中古一戸建てをはじめ、全国の新築仲介物件を含む中古一戸建て情報が満載です。 神奈川県小田原市前川などの中古一戸建てを沿線・エリア・相場価格などから検索でき、複数の不動産会社に無料で一括資料請求ができます。 神奈川県小田原市前川などの中古一戸建てを探すなら、国内最大級の物件数を誇る「中古住宅HOME4U」をご利用ください! また、住み替えをご検討中の方は「不動産売却HOME4U」で、中古住宅の不動産査定をご利用ください。

閉じる
閉じる
閉じる 全国15万棟のマンションの相場や口コミがわかる!完全無料でここまでできる?HOME4Uマンションプライスって知ってる?