-
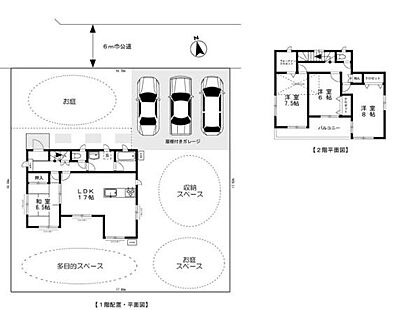
間取り
-
加須市立田ケ谷小学校まで1583m、田ケ谷小学校 徒歩20分
-
加須市立騎西中学校まで2696m、騎西中学校 徒歩34分
-
加須市立騎西保育所まで882m、騎西保育所 徒歩11分
-
ローソン加須騎西店まで1846m、ローソン加須騎西店 徒歩24分
-
セブンイレブン加須道地店まで1977m、セブンイレブン加須道地店 徒歩25分
-
田ケ谷サンスポーツランドまで1037m、田ケ谷サンスポーツランド 徒歩13分
-
ドラッグストアセキ騎西店まで1835m、ドラッグストアセキ騎西店 徒歩23分
-
イトーヨーカドー加須店まで5941m、イトーヨーカドー加須店 徒歩75分
-
加須駅(東武 伊勢崎線)まで5229m、加須駅 徒歩66分












