-
◆外観|前面道路5m以上と車2台がすれ違う幅があります。
-
◆外観|温かみのある外観は親しみやすく安心感を与えてくれます♪
-
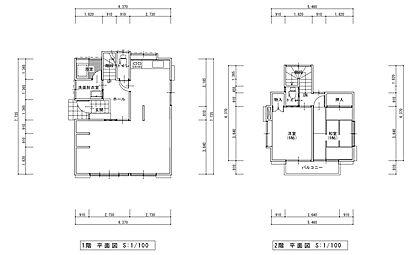
間取り変更予定|2025年10月下旬リフォーム完成予定です。
-
◆区画図|「土・日・祝日」問わずお問い合わせ大歓迎!
-
◆ダイニング5.3帖|モダンな床が印象的なゆったり時間を過ごせるダイニング。
-
◆キッチン|大容量の収納付きで、大きなお鍋やお皿も収納しやすいです♪
-
◆洗面脱衣室|換気に最適な大きな窓があり、湿気がこもりやすい洗面所に最適♪
-
◆浴室|窓付きの明るい浴室は日中お掃除する際に手元が良く見えます!
-
◆トイレ
-
◆玄関|モダンで重厚感のある玄関はお家を品格ある印象に見せてくれます。
-
◆駐車場|駐車スペース2台確保◎
-
◆和室6帖|お子様のお昼寝スペースや、洗濯物をたたむのに最適な和室です♪
-
◆和室6帖|隣接する和室の扉を開ける事で、より開放的な空間になります♪
-
◆和室6帖|ご家族のくつろぎスペースや寝室としても利用可能な和室。
















