不動産情報 > 中古住宅 > 中古マンション >  都道府県選択 >  千葉県の市区郡一覧 >  千葉県の中古マンション >  市川市の中古マンション >  レクセルマンション行徳第2(行徳駅) 3階

マンション

レクセルマンション行徳第2(行徳駅) 3階

価格 (管理費/修繕積立金) :
2,780万円 (月額20,020円/月額23,430円)

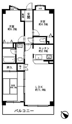
間取り : 3LDK

交通情報 :
  • 東京メトロ東西線 行徳 徒歩15分
  • 京葉線 市川塩浜 徒歩29分
Point
東京メトロ東西線「行徳」駅徒歩圏内の3LDK!コンビニ、スーパーも徒歩圏内にあるのでお買い物には困りません。宅配BOX、オートロック、TVモニターフォン完備で防犯面も安心です。リフォームプランもあり♪
  •  3LDK 

  •  市川市立行徳小学校(約1400m) 

  •  市川市立第七中学校(約900m) 

  •  東浜幼稚園(約400m) 

  •  セブン-イレブン 市川宝店(約350m) 

  •  ワイズマート 末広店(約230m) 

  •  ヤスイ本店(約1000m) 

  •  フォルテ行徳(約1200m) 

  •  市川幸郵便局(約550m) 

  •  行徳総合病院(約1100m) 

  •  行徳駅(約1200m) 

物件の基本情報

物件名 レクセルマンション行徳第2(行徳駅)
所在地

千葉県市川市末広2丁目

交通
  • 東京メトロ東西線 行徳 徒歩15分
  • 京葉線 市川塩浜 徒歩29分
価格

2,780万円

管理費 月額20,020円 修繕積立金 月額23,430円
間取り 3LDK 専有面積 66.74m2(壁芯)
バルコニー面積 8.08m2 バルコニー向き 南西
構造及び階数 RC(鉄筋コンクリート) 5階建て 所在階 3階
築年月 平成10年3月 (築27年)
登録日 2025年10月11日 有効期限 2025年11月17日 (あと10日)
前回情報更新日 2025年11月3日 次回情報更新日 2025年11月21日

お問合せ内容を指定して不動産会社に連絡してみませんか?

物件の特徴・設備・サービス

この物件のこだわり
  • 新築
  • 2階以上の物件
  • 低層
  • タワー
  • 南向き
  • 駐車場あり
  • オートロック
  • 角部屋
  • オール電化
  • リノベーション物件
位置 2階以上
セキュリティ オートロック TVモニタ付インターホン 宅配ボックス
キッチン カウンターキッチン
その他 給湯 都市ガス 専用バス 専用トイレ バス・トイレ別 シャワー 洗面所独立 CATV 全居室収納 シューズボックス フローリング 出窓 バルコニー 室内洗濯機置場 駐輪場あり 所有権 和室 鉄筋系 コンビニ 400m以内 複数路線
設備・サービス 追焚機能 エレベーター
周辺環境 スーパー 800m以内 コンビニ 800m以内

物件の詳細情報

総戸数 26戸 駐車場
土地権利 所有権
用途地域 第一種住居地域 国土法届出
修繕積立基金 保証金または敷金
権利金 施設費用/償却費
その他費用
引渡し 相談 現況 空家

管理 管理方式:巡回、 管理組合:−、 管理会社名:−、 管理形態:−、 管理員:−
取引形態 仲介
設備
備考

物件周辺施設までの距離

小学校
  • 市川市立行徳小学校 1,400m
  • 中学校
  • 市川市立第七中学校 900m
  • コンビニ
  • 350m
  • スーパー
  • 230m
  • 病院
  • 1,100m
  • ドラッグストア
  • 1,000m
  • その他
  • 東浜幼稚園 400m
  • 情報提供元:株式会社LIFULL

    物件取り扱い会社

    株式会社アルカンジュ不動産
    所在地: 千葉県千葉市若葉区貝塚2丁目3-41-101
    免許番号: 千葉県知事(03)第016458号
    所属団体名・公取協名: (公財)東日本不動産流通機構
    お問い合わせ番号: 79572-2308
    物件番号: 1418420003696
    無料通話: 0037-634-70069
     ※音声案内に従いお問い合わせ番号を入力し、物件番号を不動産会社に伝えてください。
     ※光IP電話、及びIP電話からのご利用はいただけません。
    TEL: 0120-505-642

    直接お電話する場合は、「中古住宅ホームフォーユーを見て」とお伝えください。

    最寄り駅からマンションを探す

    この物件の近くのマンションを探す

    お気に入りへ登録が完了しました
    お気に入りの削除が完了しました

    このページのトップへ

    レクセルマンション行徳第2(行徳駅)の物件情報なら、「中古住宅HOME4U」!
    「中古住宅HOME4U」は、NTTデータ・ウィズが運営する中古物件専門の情報サイトです。 レクセルマンション行徳第2(行徳駅)などの中古マンションをはじめ、全国の新築仲介物件を含む中古マンション情報が満載です。 レクセルマンション行徳第2(行徳駅)などの中古マンションを沿線・エリア・相場価格などから検索でき、複数の不動産会社に無料で一括資料請求ができます。 レクセルマンション行徳第2(行徳駅)などの中古マンションを探すなら、国内最大級の物件数を誇る「中古住宅HOME4U」をご利用ください! また、住み替えをご検討中の方は「不動産売却HOME4U」で、中古住宅の不動産査定をご利用ください。

    閉じる
    閉じる
    閉じる 全国15万棟のマンションの相場や口コミがわかる!完全無料でここまでできる?HOME4Uマンションプライスって知ってる?