-
駐車スペースは車2台分あります
-
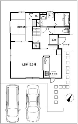
1階の間取りです。各部屋2か所窓がありますので、通風採光良好です
-
2階の間取りです。各部屋収納もあり、さらにウォークインクローゼットもあり、お部屋を広く使えます
-
キッチンのカウンター部分です
-
LDKは15.5帖とゆとりがあります
-
窓の先は駐車スペースになります
-
浄水器付きのキッチンです
-
IHコンロはグリルもついています
-
2階8帖洋室。窓からバルコニーに出ることができます
-
2階8帖洋室。奥の扉はWICになります
-
洗面台は鏡の裏に収納があります。室内洗濯機置き場もあります
-
1.6m四方のお風呂は広々しています
-
浴室には収納棚もついています
-
1階トイレ
-
2階トイレ
-
玄関前は屋根があるので、雨に濡れにくいです
-
玄関ドア前にモニター付きインターホンあり
-
収納もしっかりあり、扉に鏡もついているので、身支度に便利です
-
2階6帖洋室
-
2階6.5帖洋室。クローゼットもあります
-
2階6.5帖洋室。陽当たりもいいです
-
2階6帖洋室
-
バルコニーからの眺め
-
バルコニーからの眺め
-
玄関アプローチです
-
建物の側道は公園への近道です
-
2階の廊下の突き当りに収納があります
-
2階廊下。こちらにも収納があります
-
1階6帖和室
-
1階和室にも収納あります。客室としても利用できます
































