不動産情報 > 中古住宅 > 中古マンション >  都道府県選択 >  東京都の市区郡一覧 >  東京都の中古マンション >  荒川区の中古マンション >  アクロシティAポート 3階

マンション

アクロシティAポート 3階

価格 (管理費/修繕積立金) :
10,880万円 (月額28,690円/月額52,060円)

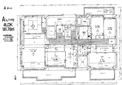
間取り : 4LDK

交通情報 :
  • 都電荒川線 荒川区役所前 徒歩10分
  • 常磐線 南千住 徒歩14分
Point
専有面積181平米、リビング22.4帖の開放的な空間設計。陽当たりの良い南向き住戸。4路線3駅利用可能、通勤通学に便利なロケーション。
  •  外観 

  •  外観 

  •  外観 

  •  外観 

  •  外観 

  •  外観 

  •  外観 

  •  外観 

  •  外観 

  •  エントランス 

  •  エントランス 

  •  駐車場 

  •  その他 

  •  その他 

  •    

  •    

  •    

物件の基本情報

物件名 アクロシティAポート
所在地

東京都荒川区南千住6丁目

交通
  • 都電荒川線 荒川区役所前 徒歩10分
  • 常磐線 南千住 徒歩14分
価格

10,880万円

管理費 月額28,690円 修繕積立金 月額52,060円
間取り 4LDK 専有面積 181.78m2(壁芯)
バルコニー面積 45.77m2 バルコニー向き
構造及び階数 RC(鉄筋コンクリート) 4階建て 所在階 3階
築年月 平成2年3月 (築35年)
登録日 2025年9月24日 有効期限 2025年11月16日 (あと13日)
前回情報更新日 2025年11月2日 次回情報更新日 2025年11月17日

お問合せ内容を指定して不動産会社に連絡してみませんか?

物件の特徴・設備・サービス

この物件のこだわり
  • 新築
  • 2階以上の物件
  • 低層
  • タワー
  • 南向き
  • 駐車場あり
  • オートロック
  • 角部屋
  • オール電化
  • リノベーション物件
位置 2階以上 南向き
セキュリティ 防犯カメラ TVモニタ付インターホン
キッチン コンロ三口 システムキッチン
その他 コンロ二口以上 コンロ三口以上 公営水道 下水 オートバス 温水洗浄便座 バルコニー 洗濯機置場あり 駐車場あり 所有権 見学可能 トイレ2ヶ所以上 和室 南面バルコニー 鉄筋系 中学校 800m以内 複数路線 子育てに便利な施設が充実 オンライン相談可
設備・サービス ウォークインクローゼット エレベーター
周辺環境 小学校 800m以内

物件の詳細情報

総戸数 12戸 駐車場 空有
土地権利 所有権
用途地域 国土法届出 不要
修繕積立基金 保証金または敷金
権利金 施設費用/償却費
その他費用
引渡し 相談 現況 居住中

管理 管理方式:日勤、 管理組合:−、 管理会社名:−、 管理形態:−、 管理員:−
取引形態 仲介
設備
備考 管理番号:20251106

物件周辺施設までの距離

小学校
  • 荒川区立瑞光小学校 520m
  • 中学校
  • 荒川区立第一中学校 720m
  • 情報提供元:株式会社LIFULL

    物件取り扱い会社

    株式会社エステート白馬 中野店
    所在地: 東京都中野区新井2丁目1-19 パックマートビル4階
    免許番号: 国土交通大臣(06)第005817号
    所属団体名・公取協名: (公財)東日本不動産流通機構
    お問い合わせ番号: 02199-2309
    物件番号: 1388540010116
    自社管理番号: 31020834207
    無料通話: 0037-634-76748
     ※音声案内に従いお問い合わせ番号を入力し、自社管理番号を不動産会社に伝えてください。
     ※光IP電話、及びIP電話からのご利用はいただけません。
    TEL: 0120-512-325

    直接お電話する場合は、「中古住宅ホームフォーユーを見て」とお伝えください。

    最寄り駅からマンションを探す

    この物件の近くのマンションを探す

    お気に入りへ登録が完了しました
    お気に入りの削除が完了しました

    このページのトップへ

    アクロシティAポートの物件情報なら、「中古住宅HOME4U」!
    「中古住宅HOME4U」は、NTTデータ・ウィズが運営する中古物件専門の情報サイトです。 アクロシティAポートなどの中古マンションをはじめ、全国の新築仲介物件を含む中古マンション情報が満載です。 アクロシティAポートなどの中古マンションを沿線・エリア・相場価格などから検索でき、複数の不動産会社に無料で一括資料請求ができます。 アクロシティAポートなどの中古マンションを探すなら、国内最大級の物件数を誇る「中古住宅HOME4U」をご利用ください! また、住み替えをご検討中の方は「不動産売却HOME4U」で、中古住宅の不動産査定をご利用ください。

    閉じる
    閉じる
    閉じる 全国15万棟のマンションの相場や口コミがわかる!完全無料でここまでできる?HOME4Uマンションプライスって知ってる?