不動産情報 > 中古住宅 > 中古一戸建て >  都道府県選択 >  高知県の市区郡一覧 >  高知県の中古一戸建て >  香美市の中古一戸建て >  高知県香美市土佐山田町

新築

一戸建て

高知県香美市土佐山田町

価格 : 3,470万円

間取り : 3LDK

交通情報 :
  • 土讃線 土佐山田 徒歩10分
  • バス 山田高校前 降車 徒歩10分
Point
建築中。木造平屋建て。長期優良住宅。P2台。トイレ2ヶ所
  •  外観 

  •  間取り 

  •  その他 

物件の基本情報

所在地

高知県香美市土佐山田町

交通
  • 土讃線 土佐山田 徒歩10分
  • バス 山田高校前 降車 徒歩10分
価格

3,470万円

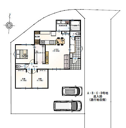
間取り 3LDK 構造及び階数 木造 1階建て
建物面積 83.84m2 土地面積 192.92m2
代表的な接道 角地 ※詳細は備考欄をご確認ください
築年月 令和8年1月完成予定 (築-1年)
登録日 2025年9月24日 有効期限 2025年11月14日 (あと13日)
前回情報更新日 2025年10月31日 次回情報更新日 2025年11月15日

お問合せ内容を指定して不動産会社に連絡してみませんか?

物件の特徴・設備・サービス

この物件のこだわり
  • 新築
  • 都市ガス
  • 駐車場あり
  • 南向き
  • 土地権利・所有権
  • リノベーション物件
位置 角地 低層住宅地
セキュリティ TVモニタ付インターホン
キッチン システムキッチン カウンターキッチン
その他 食器洗い乾燥機 温水洗浄便座 全居室収納 長期優良住宅認定通知書 所有権 平屋 木造 長期優良住宅 平坦地 コンビニ 400m以内 子育てに便利な施設が充実
設備・サービス 追焚機能 浴室乾燥機
周辺環境 スーパー 800m以内

物件の詳細情報

総戸数 駐車場
土地権利 所有権
セットバック 私道負担面積
都市計画 市街化区域 地目 宅地
用途地域 第一種低層住居専用地域 国土法届出 不要
建ぺい率/容積率 60%/100% 保証金または敷金
権利金 施設費用/償却費
その他費用 地勢 平坦
引渡し 相談 現況 未完成

取引形態 仲介
設備
備考 【接道】 角地 ( 北 ) ( 東 )

山田高校前バス停歩10分。建築中 全4区画C号地人気の木造平屋建て。北東角地で開放的 駐車スペース2台分。長期優良住宅(耐震等級3・断熱等級5)トイレ2ヶ所あり。乾太くん・エコジョーズ設置。

物件周辺施設までの距離

小学校
  • 山田小学校 1,000m
  • 中学校
  • 鏡野中学校 1,160m
  • コンビニ
  • 300m
  • スーパー
  • 610m
  • 情報提供元:株式会社LIFULL

    物件取り扱い会社

    オールワン住宅
    所在地: 高知県高知市一宮中町1丁目6-23
    免許番号: 高知県知事(03)第002843号
    所属団体名・公取協名: 所属団体未加入
    お問い合わせ番号: 21980-2306
    物件番号: 32203080000596
    自社管理番号: C3904201-20250923105051
    無料通話: 0037-634-43004
     ※音声案内に従いお問い合わせ番号を入力し、自社管理番号を不動産会社に伝えてください。
     ※光IP電話、及びIP電話からのご利用はいただけません。
    TEL: 088-855-9666

    直接お電話する場合は、「中古住宅ホームフォーユーを見て」とお伝えください。

    最寄り駅から一戸建てを探す

    この物件の近くの一戸建てを探す

    お気に入りへ登録が完了しました
    お気に入りの削除が完了しました

    このページのトップへ

    高知県香美市土佐山田町の物件情報なら、「中古住宅HOME4U」!
    「中古住宅HOME4U」は、NTTデータ・ウィズが運営する中古物件専門の情報サイトです。 高知県香美市土佐山田町などの中古一戸建てをはじめ、全国の新築仲介物件を含む中古一戸建て情報が満載です。 高知県香美市土佐山田町などの中古一戸建てを沿線・エリア・相場価格などから検索でき、複数の不動産会社に無料で一括資料請求ができます。 高知県香美市土佐山田町などの中古一戸建てを探すなら、国内最大級の物件数を誇る「中古住宅HOME4U」をご利用ください! また、住み替えをご検討中の方は「不動産売却HOME4U」で、中古住宅の不動産査定をご利用ください。

    閉じる
    閉じる
    閉じる 全国15万棟のマンションの相場や口コミがわかる!完全無料でここまでできる?HOME4Uマンションプライスって知ってる?