不動産情報 > 中古住宅 > 中古一戸建て >  都道府県選択 >  埼玉県の市区郡一覧 >  埼玉県の中古一戸建て >  上尾市の中古一戸建て >  埼玉県上尾市大字上野

一戸建て

埼玉県上尾市大字上野

価格 : 1,780万円

間取り : 4LDK

交通情報 :
  • 高崎線 上尾 バス20分 平方上野 降車 徒歩2分
Point
駐車場2台(車種による) 4LDK 2020年6月築
  •  外観 

  •  間取り 

  •  その他 

物件の基本情報

所在地

埼玉県上尾市大字上野

交通
  • 高崎線 上尾 バス20分 平方上野 降車 徒歩2分
価格

1,780万円

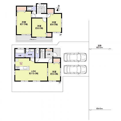
間取り 4LDK 構造及び階数 木造 2階建て
建物面積 93.56m2 土地面積 131.15m2(登記簿)
代表的な接道 一方 公道 東 3.3m ※詳細は備考欄をご確認ください
築年月 令和2年6月 (築5年)
登録日 2025年8月30日 有効期限 2025年11月10日 (あと6日)
前回情報更新日 2025年11月2日 次回情報更新日 2025年11月18日

お問合せ内容を指定して不動産会社に連絡してみませんか?

物件の特徴・設備・サービス

この物件のこだわり
  • 新築
  • 都市ガス
  • 駐車場あり
  • 南向き
  • 土地権利・所有権
  • リノベーション物件
キッチン カウンターキッチン
その他 公営水道 都市ガス 下水 フローリング バルコニー 駐車場あり 所有権 見学可能 上下水道 2階建て 木造 複数路線 バス停3分以内

物件の詳細情報

総戸数 駐車場
土地権利 所有権
セットバック 私道負担面積
都市計画 市街化区域 地目 宅地
用途地域 第一種住居地域 国土法届出 不要
建ぺい率/容積率 60%/160% 保証金または敷金
権利金 施設費用/償却費
その他費用
引渡し 相談 現況 居住中

取引形態 仲介
設備
備考 【接道】 一方 ( 公道 東 3.3m )

駐車場2台(車種による)
22条指定区域

情報提供元:株式会社LIFULL

物件取り扱い会社

住友林業ホームサービス株式会社 川口支店
所在地: 埼玉県川口市本町4丁目3-2 明邦川口第8ビル2階
免許番号: 国土交通大臣(16)第000220号
所属団体名・公取協名: (公社)首都圏不動産公正取引協議会,(一社)不動産協会,(一社)不動産流通経営協会,(公財)東日本不動産流通機構
お問い合わせ番号: 63210-2300
物件番号: 1545990000059
自社管理番号: 619675
無料通話: 0037-619-70996
 ※音声案内に従いお問い合わせ番号を入力し、自社管理番号を不動産会社に伝えてください。
 ※光IP電話、及びIP電話からのご利用はいただけません。
TEL: 0120-68-4063

直接お電話する場合は、「中古住宅ホームフォーユーを見て」とお伝えください。

最寄り駅から一戸建てを探す

この物件の近くの一戸建てを探す

お気に入りへ登録が完了しました
お気に入りの削除が完了しました

このページのトップへ

埼玉県上尾市大字上野の物件情報なら、「中古住宅HOME4U」!
「中古住宅HOME4U」は、NTTデータ・ウィズが運営する中古物件専門の情報サイトです。 埼玉県上尾市大字上野などの中古一戸建てをはじめ、全国の新築仲介物件を含む中古一戸建て情報が満載です。 埼玉県上尾市大字上野などの中古一戸建てを沿線・エリア・相場価格などから検索でき、複数の不動産会社に無料で一括資料請求ができます。 埼玉県上尾市大字上野などの中古一戸建てを探すなら、国内最大級の物件数を誇る「中古住宅HOME4U」をご利用ください! また、住み替えをご検討中の方は「不動産売却HOME4U」で、中古住宅の不動産査定をご利用ください。

閉じる
閉じる
閉じる 全国15万棟のマンションの相場や口コミがわかる!完全無料でここまでできる?HOME4Uマンションプライスって知ってる?