不動産情報 > 中古住宅 > 中古一戸建て >  都道府県選択 >  宮崎県の市区郡一覧 >  宮崎県の中古一戸建て >  宮崎市の中古一戸建て >  宮崎県宮崎市高洲町

一戸建て

宮崎県宮崎市高洲町

価格 : 3,800万円

間取り : 6DK

交通情報 :
  • 日豊本線 宮崎 徒歩24分
  • 日豊本線 南宮崎 徒歩32分
Point
和風庭園付き☆貸家併設で家賃収入も得られる高洲町の中古住宅!小中学校近く生活便利♪
  •  外観 

  •  前面道路含む現地写真 

  •  外観写真 

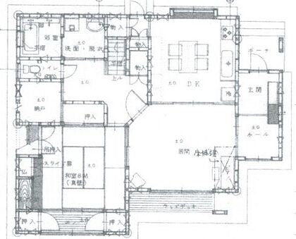
  •  1階の間取り 

  •  出来島・高洲コミュニティーセンター 160m 

  •  まえだストアー 250m 

  •  ファミリーマート 潮見町店 210m 

  •  WASHハウス 宮崎中西店 530m 

  •  潮見小学校 740m 

  •  マルイチ 一の宮店 1110m 

  •  コスモス 城ケ崎店 1330m 

  •  コスモス 曽師店 970m 

  •  WASHハウス 堀川店 910m 

  •  セブンイレブン 宮崎堀川町 910m 

  •  2階の間取り 

  •  庭 

  •  庭 

物件の基本情報

所在地

宮崎県宮崎市高洲町

交通
  • 日豊本線 宮崎 徒歩24分
  • 日豊本線 南宮崎 徒歩32分
価格

3,800万円

間取り 6DK 構造及び階数 木造 2階建て
建物面積 156.34m2 土地面積 455.36m2(登記簿)
接道
築年月 平成13年3月 (築24年)
登録日 2025年8月28日 有効期限 2025年11月14日 (あと6日)
前回情報更新日 2025年11月7日 次回情報更新日 2025年11月22日

お問合せ内容を指定して不動産会社に連絡してみませんか?

物件の特徴・設備・サービス

この物件のこだわり
  • 新築
  • 都市ガス
  • 駐車場あり
  • 南向き
  • 土地権利・所有権
  • リノベーション物件
その他 駐車場2台以上 駐車場あり 所有権 2階建て 木造 コンビニ 400m以内 複数路線 子育てに便利な施設が充実 オンライン相談可
周辺環境 スーパー 800m以内 コンビニ 800m以内 小学校 800m以内

物件の詳細情報

総戸数 駐車場 有/空き2台
土地権利 所有権
セットバック 私道負担面積
都市計画 市街化区域 地目 宅地
用途地域 第一種住居地域 国土法届出 不要
建ぺい率/容積率 60%/200% 保証金または敷金
権利金 施設費用/償却費
その他費用
引渡し 相談 現況 居住中

取引形態 仲介
設備
備考 ◆貸家付き
敷地内に賃貸中の建物あり(家賃4万5千円/月、昭和42年築、59.82平米)。
◆収益+居住
自宅用として住みながら家賃収入も見込めます。
◆和風庭園
手入れされた和風のお庭で四季を感じる暮らし。
◆教育環境◎
潮見小まで徒歩10分、宮崎中まで徒歩13分と通学安心。
◆交通利便性
宮崎駅まで徒歩24分、中西町バス停徒歩6分でアクセス良好。

物件周辺施設までの距離

小学校
  • 潮見小学校 740m
  • コンビニ
  • 210m
  • スーパー
  • 250m
  • ドラッグストア
  • 1,330m
  • その他
  • 出来島・高洲コミュニティーセンター 160m
  • 情報提供元:株式会社LIFULL

    物件取り扱い会社

    ハウスドゥ 清武加納 有限会社こだま
    所在地: 宮崎県宮崎市清武町加納3丁目16 メモワール2 101号室
    免許番号: 宮崎県知事(01)第004995号
    所属団体名・公取協名: (一社)九州不動産公正取引協議会,(一社)宮崎県宅地建物取引業協会,(公社)西日本不動産流通機構
    お問い合わせ番号: 93370-2303
    物件番号: 1526030000702
    自社管理番号: 4378309
    無料通話: 0037-619-33868
     ※音声案内に従いお問い合わせ番号を入力し、自社管理番号を不動産会社に伝えてください。
     ※光IP電話、及びIP電話からのご利用はいただけません。
    TEL: 0985-86-7336

    直接お電話する場合は、「中古住宅ホームフォーユーを見て」とお伝えください。

    最寄り駅から一戸建てを探す

    この物件の近くの一戸建てを探す

    お気に入りへ登録が完了しました
    お気に入りの削除が完了しました

    このページのトップへ

    宮崎県宮崎市高洲町の物件情報なら、「中古住宅HOME4U」!
    「中古住宅HOME4U」は、NTTデータ・ウィズが運営する中古物件専門の情報サイトです。 宮崎県宮崎市高洲町などの中古一戸建てをはじめ、全国の新築仲介物件を含む中古一戸建て情報が満載です。 宮崎県宮崎市高洲町などの中古一戸建てを沿線・エリア・相場価格などから検索でき、複数の不動産会社に無料で一括資料請求ができます。 宮崎県宮崎市高洲町などの中古一戸建てを探すなら、国内最大級の物件数を誇る「中古住宅HOME4U」をご利用ください! また、住み替えをご検討中の方は「不動産売却HOME4U」で、中古住宅の不動産査定をご利用ください。

    閉じる
    閉じる
    閉じる 全国15万棟のマンションの相場や口コミがわかる!完全無料でここまでできる?HOME4Uマンションプライスって知ってる?