不動産情報 > 中古住宅 > 中古マンション >  都道府県選択 >  福岡県の市区郡一覧 >  福岡県の中古マンション >  久留米市の中古マンション >  ライオンズマンション東町 4階

マンション

ライオンズマンション東町 4階

価格 (管理費/修繕積立金) :
300万円 (月額3,200円/月額4,950円)

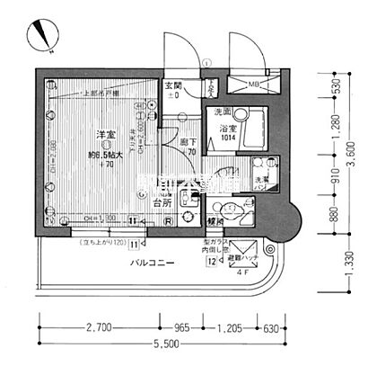
間取り : 1R

交通情報 :
  • 西鉄天神大牟田線 西鉄久留米 徒歩6分
  • 西鉄天神大牟田線 花畑 徒歩8分
Point
西鉄久留米駅近くの1R物件です。周辺環境充実しております。居住用はもちろん投資用としてもいかがでしょう
  •  外観 

  •  間取り 

  •  その他内観 

  •  その他内観 

  •  その他内観 

  •  その他内観 

物件の基本情報

物件名 ライオンズマンション東町
所在地

福岡県久留米市東町394番地1

交通
  • 西鉄天神大牟田線 西鉄久留米 徒歩6分
  • 西鉄天神大牟田線 花畑 徒歩8分
価格

300万円

管理費 月額3,200円 修繕積立金 月額4,950円
間取り 1R 専有面積 19.80m2(内法)
バルコニー面積 6.44m2 バルコニー向き
構造及び階数 SRC(鉄骨鉄筋コンクリート) 14階建て 所在階 4階
築年月 平成3年3月 (築34年)
登録日 2025年8月25日 有効期限 2025年11月22日 (あと7日)
前回情報更新日 2025年11月14日 次回情報更新日 2025年11月29日

お問合せ内容を指定して不動産会社に連絡してみませんか?

物件の特徴・設備・サービス

この物件のこだわり
  • 新築
  • 2階以上の物件
  • 低層
  • タワー
  • 南向き
  • 駐車場あり
  • オートロック
  • 角部屋
  • オール電化
  • リノベーション物件
位置 2階以上
セキュリティ TVモニタ付インターホン
その他 公営水道 所有権 鉄筋系 コンビニ 400m以内 中学校 800m以内 複数路線 子育てに便利な施設が充実
設備・サービス エレベーター
物件の状況 即入居可
物件規模 総戸数・総区画数30以上
周辺環境 スーパー 800m以内 コンビニ 800m以内 総合病院 800m以内

物件の詳細情報

総戸数 70戸 駐車場 空無
土地権利 所有権
用途地域 商業地域 国土法届出 不要
修繕積立基金 保証金または敷金
権利金 施設費用/償却費
その他費用 地勢 平坦
引渡し 即時 現況 空家

管理 管理方式:日勤、 管理組合:−、 管理会社名:−、 管理形態:−、 管理員:−
取引形態 仲介
設備
備考

物件周辺施設までの距離

小学校
  • 日吉小学校 900m
  • 中学校
  • 諏訪中学校 200m
  • コンビニ
  • 100m
  • スーパー
  • 400m
  • 病院
  • 200m
  • 情報提供元:株式会社LIFULL

    物件取り扱い会社

    株式会社駅前不動産 売買久留米
    所在地: 福岡県久留米市上津町1417-1-2
    免許番号: 国土交通大臣免許(04)第007725号
    所属団体名・公取協名: (一社)九州不動産公正取引協議会,(公社)福岡県宅地建物取引業協会
    お問い合わせ番号: 46346-2309
    物件番号: 1288820003448
    自社管理番号: 3-17431
    無料通話: 0037-634-40923
     ※音声案内に従いお問い合わせ番号を入力し、自社管理番号を不動産会社に伝えてください。
     ※光IP電話、及びIP電話からのご利用はいただけません。
    TEL: 0942-80-5003

    直接お電話する場合は、「中古住宅ホームフォーユーを見て」とお伝えください。

    この物件の近くのマンションを探す

    お気に入りへ登録が完了しました
    お気に入りの削除が完了しました

    このページのトップへ

    ライオンズマンション東町の物件情報なら、「中古住宅HOME4U」!
    「中古住宅HOME4U」は、NTTデータ・ウィズが運営する中古物件専門の情報サイトです。 ライオンズマンション東町などの中古マンションをはじめ、全国の新築仲介物件を含む中古マンション情報が満載です。 ライオンズマンション東町などの中古マンションを沿線・エリア・相場価格などから検索でき、複数の不動産会社に無料で一括資料請求ができます。 ライオンズマンション東町などの中古マンションを探すなら、国内最大級の物件数を誇る「中古住宅HOME4U」をご利用ください! また、住み替えをご検討中の方は「不動産売却HOME4U」で、中古住宅の不動産査定をご利用ください。

    閉じる
    閉じる
    閉じる 全国15万棟のマンションの相場や口コミがわかる!完全無料でここまでできる?HOME4Uマンションプライスって知ってる?