不動産情報 > 中古住宅 > 中古マンション > 都道府県選択 > 千葉県の市区郡一覧 > 千葉県の中古マンション > 千葉市稲毛区の中古マンション > アインズコート稲毛小仲台プライムコート -1階
マンション
| 物件名 | アインズコート稲毛小仲台プライムコート | ||
|---|---|---|---|
| 所在地 | 千葉県千葉市稲毛区小中台町1513-3 | ||
| 交通 | 
 | ||
| 価格 | |||
| 管理費 | 月額8,900円 | 修繕積立金 | 月額12,015円 | 
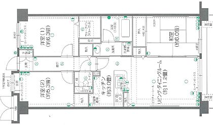
| 間取り | 3LDK | 専有面積 | 72.92m2(壁芯) | 
| バルコニー面積 | 9.00m2 | バルコニー向き | − | 
| 構造及び階数 | RC(鉄筋コンクリート) 6階(地下2階)建て 所在階 地下1階 | ||
| 築年月 | 平成12年12月 (築24年) | ||
| 登録日 | 2025年8月2日 | 有効期限 | 2025年11月13日 (あと13日) | 
| 前回情報更新日 | 2025年10月30日 | 次回情報更新日 | 2025年11月14日 | 
| この物件のこだわり | 
 | 
|---|---|
| その他 | ●地下 ●コンロ二口以上 ●コンロ三口以上 ●給湯 ●バス・トイレ別 ●シャワー ●シャワー付洗面化粧台 ●洗面所独立 ●CS対応 ●BS対応 ●全居室収納 ●シューズインクローゼット ●フローリング ●バルコニー ●リフォーム物件 ●駐輪場あり ●所有権 ●ガスコンロ設置済 ●ガスコンロ ●リフォーム・リノベーション済 ●和室 ●鉄筋系 ●コンビニ 400m以内 ●複数路線 ●バス停3分以内 ●子育てに便利な施設が充実 | 
| キッチン | ●コンロ三口 ●システムキッチン | 
| 設備・サービス | ●追焚機能 ●ウォークインクローゼット | 
| 物件の状況 | ●即入居可 | 
| 物件規模 | ●総戸数・総区画数30以上 | 
| 周辺環境 | ●スーパー 800m以内 ●コンビニ 800m以内 | 
| 総戸数 | 167戸 | 駐車場 | 空無 | 
|---|---|---|---|
| 土地権利 | 所有権 | ||
| 用途地域 | 第一種中高層住居専用地域 | 国土法届出 | − | 
| 修繕積立基金 | − | 保証金または敷金 | − | 
| 権利金 | − | 施設費用/償却費 | − | 
| その他費用 | − | ||
| 引渡し | 即時 | 現況 | |
| 管理 | 管理方式:日勤、 管理組合:−、 管理会社名:−、 管理形態:−、 管理員:− | ||
| 取引形態 | 仲介 | ||
| 設備 | − | ||
| 備考 | 現況有姿 | ||
| 内装 | 2025年06月 全室クロス張替 | 
|---|
| コンビニ |  | 
|---|---|
| スーパー |  | 
| 公園 |  | 
| ドラッグストア |  | 
| 銀行 |  | 
有限会社日出ハウス  
所在地: 千葉県千葉市花見川区朝日ケ丘3丁目22-8 ぴあハウスM104 
免許番号: 千葉県知事(08)第011965号
所属団体名・公取協名: (公社)首都圏不動産公正取引協議会,(一社)千葉県宅地建物取引業協会,(公財)東日本不動産流通機構
お問い合わせ番号: 98078-2300
物件番号: 1541580000002
無料通話: 0037-619-02755
 ※音声案内に従いお問い合わせ番号を入力し、物件番号を不動産会社に伝えてください。
 ※光IP電話、及びIP電話からのご利用はいただけません。
TEL: 043-274-6225
直接お電話する場合は、「中古住宅ホームフォーユーを見て」とお伝えください。
 
