不動産情報 > 中古住宅 > 中古一戸建て >  都道府県選択 >  岡山県の市区郡一覧 >  岡山県の中古一戸建て >  赤磐市の中古一戸建て >  岡山県赤磐市桜が丘西9丁目

一戸建て

岡山県赤磐市桜が丘西9丁目

価格 : 2,150万円

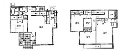
間取り : 4SLDK

交通情報 :
  • 宇野バス 桜が丘運動公園口 3分
    山陽本線 瀬戸 徒歩78分
  • 山陽本線 万富 徒歩90分
Point
ダイワハウス施工のオール電化住宅!駐車2台可能!南東角地!
  •  外観 

  •  外観 

  •  外観 

  •  前面道路 

  •  前面道路 

  •  間取り 

物件の基本情報

所在地

岡山県赤磐市桜が丘西9丁目

交通
  • 宇野バス 桜が丘運動公園口 3分
    山陽本線 瀬戸 徒歩78分
  • 山陽本線 万富 徒歩90分
価格

2,150万円

間取り 4SLDK 構造及び階数 軽量鉄骨 2階建て
建物面積 136.34m2 土地面積 220.36m2(登記簿)
代表的な接道 角地 公道 ※詳細は備考欄をご確認ください
築年月 平成20年6月 (築17年)
登録日 2025年7月29日 有効期限 2025年12月1日 (あと13日)
前回情報更新日 2025年11月17日 次回情報更新日 2025年12月2日

お問合せ内容を指定して不動産会社に連絡してみませんか?

物件の特徴・設備・サービス

この物件のこだわり
  • 新築
  • 都市ガス
  • 駐車場あり
  • 南向き
  • 土地権利・所有権
  • リノベーション物件
位置 角地 南向き 南道路
キッチン システムキッチン カウンターキッチン
設備・サービス オール電化 ウォークインクローゼット
その他 全居室収納 シューズインクローゼット 室内洗濯機置場 駐車場2台以上 駐車場あり 所有権 和室 2階建て 鉄骨系
周辺環境 小学校 800m以内

物件の詳細情報

総戸数 駐車場 有/空き2台
土地権利 所有権
セットバック 私道負担面積
都市計画 市街化区域 地目 宅地
用途地域 第一種住居地域 国土法届出 不要
建ぺい率/容積率 60%/200% 保証金または敷金
権利金 施設費用/償却費
その他費用
引渡し 相談 現況 居住中

取引形態 仲介
設備
備考 【接道】 角地 ( 公道 南 ) ( 公道 東 )

物件周辺施設までの距離

小学校
  • 赤磐市立山陽北小学校 550m
  • 中学校
  • 赤磐市立桜が丘中学校 1,700m
  • コンビニ
  • 1,300m
  • スーパー
  • 1,400m
  • 銀行
  • 3,400m
  • 情報提供元:株式会社LIFULL

    物件取り扱い会社

    株式会社ケイアイ不動産販売 SUMiTAS北長瀬店
    所在地: 岡山県岡山市北区中仙道2丁目33-1 2F
    免許番号: 国土交通大臣(02)第009597号
    所属団体名・公取協名: (公社)西日本不動産流通機構
    お問い合わせ番号: 02958-2303
    物件番号: 32282060000983
    自社管理番号: 543183
    無料通話: 0037-634-46394
     ※音声案内に従いお問い合わせ番号を入力し、自社管理番号を不動産会社に伝えてください。
     ※光IP電話、及びIP電話からのご利用はいただけません。
    TEL: 086-242-0288

    直接お電話する場合は、「中古住宅ホームフォーユーを見て」とお伝えください。

    この物件の近くの一戸建てを探す

    お気に入りへ登録が完了しました
    お気に入りの削除が完了しました

    このページのトップへ

    岡山県赤磐市桜が丘西9丁目の物件情報なら、「中古住宅HOME4U」!
    「中古住宅HOME4U」は、NTTデータ・ウィズが運営する中古物件専門の情報サイトです。 岡山県赤磐市桜が丘西9丁目などの中古一戸建てをはじめ、全国の新築仲介物件を含む中古一戸建て情報が満載です。 岡山県赤磐市桜が丘西9丁目などの中古一戸建てを沿線・エリア・相場価格などから検索でき、複数の不動産会社に無料で一括資料請求ができます。 岡山県赤磐市桜が丘西9丁目などの中古一戸建てを探すなら、国内最大級の物件数を誇る「中古住宅HOME4U」をご利用ください! また、住み替えをご検討中の方は「不動産売却HOME4U」で、中古住宅の不動産査定をご利用ください。

    閉じる
    閉じる
    閉じる 全国15万棟のマンションの相場や口コミがわかる!完全無料でここまでできる?HOME4Uマンションプライスって知ってる?