不動産情報 > 中古住宅 > 中古マンション >  都道府県選択 >  埼玉県の市区郡一覧 >  埼玉県の中古マンション >  さいたま市浦和区の中古マンション >  コート浦和常盤 4階

マンション

コート浦和常盤 4階

価格 (管理費/修繕積立金) :
4,780万円 (月額20,700円/月額18,200円)

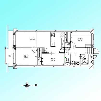
間取り : 3LDK

交通情報 :
  • 京浜東北・根岸線 浦和 徒歩16分
  • 京浜東北・根岸線 北浦和 徒歩14分
Point
●新規リフォームマンション ●食洗器や浴室乾燥機など充実の設備 ●〜お問合せ後すぐにご案内致します〜お仕事帰りや隙間時間などご都合にあわせてご案内致します
  •  現地外観写真 

  •  前面道路含む現地写真 

  •  前面道路含む現地写真 

  •  間取図 

  •  ご家族みんながゆったりくつろげる広々リビング。  

  •  リビングダイニング 

  •  リビング 

  •  家族団らんの時間も増えそうなくつろぎのLDK。  

  •  ダイニング 

  •  ダイニング 

  •  キッチン 

  •  キッチン 

  •  寝室 

  •  子供部屋 

  •  洗面化粧台 

  •  浴室 

  •  トイレ 

  •  収納 

  •  収納 

  •  玄関 

  •  玄関ポーチ 

  •  バルコニー 

  •  TVモニター付インターフォン 

  •  給湯器操作パネル 

  •  駐車場 

  •  住戸からの眺望写真 

  •  住戸からの眺望写真 

  •  脱衣所 

  •  洗濯機置場 

  •  洋室 

この物件のパノラマ画像

物件の基本情報

物件名 コート浦和常盤
所在地

埼玉県さいたま市浦和区常盤4丁目

交通
  • 京浜東北・根岸線 浦和 徒歩16分
  • 京浜東北・根岸線 北浦和 徒歩14分
価格

4,780万円

管理費 月額20,700円 修繕積立金 月額18,200円
間取り 3LDK 専有面積 77.77m2(壁芯)
バルコニー面積 9.64m2 バルコニー向き
構造及び階数 SRC(鉄骨鉄筋コンクリート) 8階建て 所在階 4階
築年月 平成4年6月 (築33年)
登録日 2025年7月26日 有効期限 2025年11月18日 (あと13日)
前回情報更新日 2025年11月4日 次回情報更新日 2025年11月19日

お問合せ内容を指定して不動産会社に連絡してみませんか?

物件の特徴・設備・サービス

この物件のこだわり
  • 新築
  • 2階以上の物件
  • 低層
  • タワー
  • 南向き
  • 駐車場あり
  • オートロック
  • 角部屋
  • オール電化
  • リノベーション物件
位置 2階以上
その他 ペット不可 バルコニー リフォーム物件 駐輪場あり 所有権 見学可能 リフォーム・リノベーション済 鉄筋系 複数路線 オンライン相談可

物件の詳細情報

総戸数 26戸 駐車場 空無
土地権利 所有権
用途地域 国土法届出 不要
修繕積立基金 保証金または敷金
権利金 施設費用/償却費
その他費用
引渡し 相談 現況 空家

管理 管理方式:日勤、 管理組合:−、 管理会社名:−、 管理形態:−、 管理員:−
取引形態 仲介
設備
備考 管理番号:6807176 駐輪場:100円/月
リフォーム履歴/2019年5月システムキッチン(食洗器)・ユニットバス(浴室換気暖房乾燥機)・洗面化粧台・トイレ・建具・床材・クロス・給湯器・給排水管更新・ハウスクリーニング他

物件のリフォーム情報

水回り 2025年08月
トイレ、洗面所
※実施年月は、施工箇所の中で最も古いものを表示しています
情報提供元:株式会社LIFULL

物件取り扱い会社

株式会社エステート白馬 南浦和店
所在地: 埼玉県さいたま市南区南浦和2丁目38-1 北原ビル1F
免許番号: 国土交通大臣(6)第5817号
所属団体名・公取協名: (公社)首都圏不動産公正取引協議会,(公社)全日本不動産協会埼玉県本部,(公社)全日本不動産協会,(公財)東日本不動産流通機構
お問い合わせ番号: 37453-2301
物件番号: 1161840083667
自社管理番号: 20000416931
無料通話: 0037-634-07388
 ※音声案内に従いお問い合わせ番号を入力し、自社管理番号を不動産会社に伝えてください。
 ※光IP電話、及びIP電話からのご利用はいただけません。
TEL: 0120-934-879

直接お電話する場合は、「中古住宅ホームフォーユーを見て」とお伝えください。

お気に入りへ登録が完了しました
お気に入りの削除が完了しました

このページのトップへ

コート浦和常盤の物件情報なら、「中古住宅HOME4U」!
「中古住宅HOME4U」は、NTTデータ・ウィズが運営する中古物件専門の情報サイトです。 コート浦和常盤などの中古マンションをはじめ、全国の新築仲介物件を含む中古マンション情報が満載です。 コート浦和常盤などの中古マンションを沿線・エリア・相場価格などから検索でき、複数の不動産会社に無料で一括資料請求ができます。 コート浦和常盤などの中古マンションを探すなら、国内最大級の物件数を誇る「中古住宅HOME4U」をご利用ください! また、住み替えをご検討中の方は「不動産売却HOME4U」で、中古住宅の不動産査定をご利用ください。

閉じる
閉じる
閉じる 全国15万棟のマンションの相場や口コミがわかる!完全無料でここまでできる?HOME4Uマンションプライスって知ってる?