不動産情報 > 中古住宅 > 中古一戸建て >  都道府県選択 >  岩手県の市区郡一覧 >  岩手県の中古一戸建て >  盛岡市の中古一戸建て >  岩手県盛岡市松園2丁目

一戸建て

岩手県盛岡市松園2丁目

価格 : 1,300万円

間取り : 4DK

交通情報 :
  • バス 東松園二丁目 降車 徒歩2分
  • バス 松園二丁目北 降車 徒歩4分
Point
■空室につき随時ご見学可能です。ご見学予約受付中! ■自宅でお店を営む方におすすめ ■広い厨房も有り施設運営にもおすすめ
  •  外観 

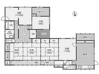
  •  間取図 

  •  トイレ(店舗) 

  •  トイレ(店舗) 

  •  洗面所(店舗) 

  •  外観 

  •  トイレ(母屋) 

  •  洗面所(母屋) 

  •  浴室(母屋) 

物件の基本情報

所在地

岩手県盛岡市松園2丁目

交通
  • バス 東松園二丁目 降車 徒歩2分
  • バス 松園二丁目北 降車 徒歩4分
価格

1,300万円

間取り 4DK 構造及び階数 木造 1階建て
建物面積 162.58m2 土地面積 406.13m2(登記簿)
代表的な接道 一方 ※詳細は備考欄をご確認ください
築年月 昭和50年12月 (築49年)
登録日 2025年7月2日 有効期限 2025年11月4日 (あと5日)
前回情報更新日 2025年10月28日 次回情報更新日 2025年11月12日

お問合せ内容を指定して不動産会社に連絡してみませんか?

物件の特徴・設備・サービス

この物件のこだわり
  • 新築
  • 都市ガス
  • 駐車場あり
  • 南向き
  • 土地権利・所有権
  • リノベーション物件
位置 南向き 低層住宅地
その他 公営水道 プロパンガス 下水 専用バス 専用トイレ バス・トイレ別 温水洗浄便座 洗面所独立 照明器具付き 駐車場あり 所有権 上下水道 和室 平屋 木造 中学校 800m以内 バス停3分以内 子育てに便利な施設が充実
設備・サービス 専用庭
周辺環境 小学校 800m以内

物件の詳細情報

総戸数 駐車場
土地権利 所有権
セットバック 私道負担面積
都市計画 地目 宅地
用途地域 第一種低層住居専用地域 国土法届出 不要
建ぺい率/容積率 40%/80% 保証金または敷金
権利金 施設費用/償却費
その他費用 地勢 その他
引渡し 相談 現況 空家

取引形態 仲介
設備
備考 【接道】 一方

担当:南舘 契約不適合責任免責、昭和63年11月増築 ■4LD+店舗+厨房 リフォーム履歴 ■2015年3月 内装リフォーム(住宅:トイレ・洗面所・ユニットバス交換、店舗:トイレ・洗面台交換) ■2018年4月 駐車場:アスファルト舗装工事 増改築有
法22条区域、宅地造成等工事規制区域

物件周辺施設までの距離

小学校
  • 松園小学校 400m
  • 中学校
  • 松園中学校 450m
  • 情報提供元:株式会社LIFULL

    物件取り扱い会社

    グレース住宅販売株式会社
    所在地: 岩手県盛岡市菜園1丁目11番3号 カガヤ菜園ビル1F
    免許番号: 国土交通大臣(04)第007605号
    所属団体名・公取協名: 東北地区不動産公正取引協議会,(一社)岩手県宅地建物取引業協会,(公財)東日本不動産流通機構
    お問い合わせ番号: 37701-2300
    物件番号: 32800190000009
    自社管理番号: homes-b-030258000047
    無料通話: 0037-619-25069
     ※音声案内に従いお問い合わせ番号を入力し、自社管理番号を不動産会社に伝えてください。
     ※光IP電話、及びIP電話からのご利用はいただけません。
    TEL: 019-604-1616

    直接お電話する場合は、「中古住宅ホームフォーユーを見て」とお伝えください。

    最寄り駅から一戸建てを探す

    この物件の近くの一戸建てを探す

    お気に入りへ登録が完了しました
    お気に入りの削除が完了しました

    このページのトップへ

    岩手県盛岡市松園2丁目の物件情報なら、「中古住宅HOME4U」!
    「中古住宅HOME4U」は、NTTデータ・ウィズが運営する中古物件専門の情報サイトです。 岩手県盛岡市松園2丁目などの中古一戸建てをはじめ、全国の新築仲介物件を含む中古一戸建て情報が満載です。 岩手県盛岡市松園2丁目などの中古一戸建てを沿線・エリア・相場価格などから検索でき、複数の不動産会社に無料で一括資料請求ができます。 岩手県盛岡市松園2丁目などの中古一戸建てを探すなら、国内最大級の物件数を誇る「中古住宅HOME4U」をご利用ください! また、住み替えをご検討中の方は「不動産売却HOME4U」で、中古住宅の不動産査定をご利用ください。

    閉じる
    閉じる
    閉じる 全国15万棟のマンションの相場や口コミがわかる!完全無料でここまでできる?HOME4Uマンションプライスって知ってる?