不動産情報 > 中古住宅 > 中古一戸建て > 都道府県選択 > 熊本県の市区郡一覧 > 熊本県の中古一戸建て > 玉名郡長洲町の中古一戸建て > 熊本県玉名郡長洲町大字宮野
| 所在地 | 熊本県玉名郡長洲町大字宮野755 | ||
|---|---|---|---|
| 交通 | 
 | ||
| 価格 | |||
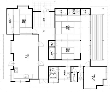
| 間取り | 4DK | 構造及び階数 | 木造 1階建て | 
| 建物面積 | 130.25m2 | 土地面積 | 715.80m2(登記簿) | 
| 代表的な接道 | 公道 東 5m ※詳細は備考欄をご確認ください | ||
| 築年月 | 昭和62年7月 (築38年) | ||
| 登録日 | 2025年4月27日 | 有効期限 | 2025年11月9日 (あと9日) | 
| 前回情報更新日 | 2025年10月26日 | 次回情報更新日 | 2025年11月14日 | 
| この物件のこだわり | 
 | 
|---|---|
| 位置 | ●南向き | 
| その他 | ●公営水道 ●プロパンガス ●下水 ●専用バス ●専用トイレ ●洗面所独立 ●バルコニー ●室内洗濯機置場 ●所有権 ●見学可能 ●上下水道 ●ガスコンロ設置済 ●ガスコンロ ●10m2以上の庭 ●10m2以上の庭 ●和室 ●南面バルコニー ●ウッドデッキ ●ウッドデッキ・テラス ●平屋 ●木造 ●平坦地 | 
| 設備・サービス | ●専用庭 | 
| 物件の状況 | ●即入居可 | 
| 総戸数 | − | 駐車場 | 無 | 
|---|---|---|---|
| 土地権利 | 所有権 | ||
| セットバック | − | 私道負担面積 | − | 
| 都市計画 | 非線引都市計画区域 | 地目 | 宅地 | 
| 用途地域 | 無指定 | 国土法届出 | − | 
| 建ぺい率/容積率 | 60%/150% | 保証金または敷金 | − | 
| 権利金 | − | 施設費用/償却費 | − | 
| その他費用 | − | 地勢 | 平坦 | 
| 引渡し | 即時 | 現況 | 空家 | 
| 取引形態 | 仲介 | ||
| 設備 | − | ||
| 備考 | 【接道】 ( 公道 東 5m ) | ||
| 小学校 |  | 
|---|---|
| 中学校 |  | 
| コンビニ |  | 
| スーパー |  | 
| 公園 |  | 
| ドラッグストア |  | 
| 銀行 |  | 
東宝ホーム株式会社 熊本支店  
所在地: 熊本県熊本市中央区白山1丁目2-7 ラディエンスビル3F 
免許番号: 国土交通大臣(03)第008265号
所属団体名・公取協名: (一社)九州不動産公正取引協議会,(一社)熊本県宅地建物取引業協会
お問い合わせ番号: 57457-2308
物件番号: 1535350000010
無料通話: 0037-619-51136
 ※音声案内に従いお問い合わせ番号を入力し、物件番号を不動産会社に伝えてください。
 ※光IP電話、及びIP電話からのご利用はいただけません。
TEL: 096-373-1040
直接お電話する場合は、「中古住宅ホームフォーユーを見て」とお伝えください。
 
