不動産情報 > 中古住宅 > 中古一戸建て >  都道府県選択 >  沖縄県の市区郡一覧 >  沖縄県の中古一戸建て >  沖縄市の中古一戸建て >  沖縄県沖縄市高原6丁目

一戸建て

沖縄県沖縄市高原6丁目

価格 : 5,050万円

間取り : 3LDK

交通情報 :
  • バス 泡瀬三区入口 降車 徒歩6分
Point
お気軽にお問い合わせ下さい。
  •  外観 

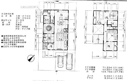
  •  間取り図 

  •    

  •    

  •    

  •    

  •    

  •    

  •    

  •    

  •    

  •    

  •    

  •    

  •    

  •    

  •    

  •    

  •    

  •    

物件の基本情報

所在地

沖縄県沖縄市高原6丁目13番地

交通
  • バス 泡瀬三区入口 降車 徒歩6分
価格

5,050万円

間取り 3LDK 構造及び階数 RC(鉄筋コンクリート) 2階建て
建物面積 125.28m2 土地面積 215.48m2
接道
築年月 平成22年7月 (築15年)
登録日 2025年4月18日 有効期限 2025年12月10日 (あと9日)
前回情報更新日 2025年11月27日 次回情報更新日 2025年12月15日

お問合せ内容を指定して不動産会社に連絡してみませんか?

物件の特徴・設備・サービス

この物件のこだわり
  • 新築
  • 都市ガス
  • 駐車場あり
  • 南向き
  • 土地権利・所有権
  • リノベーション物件
キッチン IHコンロ システムキッチン カウンターキッチン
その他 食器洗い乾燥機 プロパンガス 下水 シャワー付洗面化粧台 所有権 2階建て 鉄筋系 中学校 800m以内 子育てに便利な施設が充実
周辺環境 小学校 800m以内

物件の詳細情報

総戸数 駐車場 空無
土地権利 所有権
セットバック 私道負担面積
都市計画 非線引都市計画区域 地目 宅地
用途地域 第一種住居地域 国土法届出 不要
建ぺい率/容積率 60%/200% 保証金または敷金
権利金 施設費用/償却費
その他費用
引渡し 相談 現況 賃貸中

取引形態 仲介
設備
備考 ・現況米賃中【入居5年目】・年間家賃収入:248万円・内覧不可です、ごめんなさい・現状有姿での引渡し・所有権移転費用は買主様負担です

物件周辺施設までの距離

小学校
  • 高原小学校 640m
  • 中学校
  • 美東中学校 640m
  • 情報提供元:株式会社LIFULL

    物件取り扱い会社

    株式会社琉信ハウジング 本店 売買
    所在地: 沖縄県那覇市松山2丁目3-12
    免許番号: 沖縄県知事(7)第2106号
    所属団体名・公取協名: (一社)九州不動産公正取引協議会,(公社)沖縄県宅地建物取引業協会
    お問い合わせ番号: 93054-2306
    物件番号: 32172640000214
    自社管理番号: 521-515
    無料通話: 0037-634-94446
     ※音声案内に従いお問い合わせ番号を入力し、自社管理番号を不動産会社に伝えてください。
     ※光IP電話、及びIP電話からのご利用はいただけません。
    TEL: 098-863-1994

    直接お電話する場合は、「中古住宅ホームフォーユーを見て」とお伝えください。

    最寄り駅から一戸建てを探す

    この物件の近くの一戸建てを探す

    お気に入りへ登録が完了しました
    お気に入りの削除が完了しました

    このページのトップへ

    沖縄県沖縄市高原6丁目の物件情報なら、「中古住宅HOME4U」!
    「中古住宅HOME4U」は、NTTデータ・ウィズが運営する中古物件専門の情報サイトです。 沖縄県沖縄市高原6丁目などの中古一戸建てをはじめ、全国の新築仲介物件を含む中古一戸建て情報が満載です。 沖縄県沖縄市高原6丁目などの中古一戸建てを沿線・エリア・相場価格などから検索でき、複数の不動産会社に無料で一括資料請求ができます。 沖縄県沖縄市高原6丁目などの中古一戸建てを探すなら、国内最大級の物件数を誇る「中古住宅HOME4U」をご利用ください! また、住み替えをご検討中の方は「不動産売却HOME4U」で、中古住宅の不動産査定をご利用ください。

    閉じる
    閉じる
    閉じる 全国15万棟のマンションの相場や口コミがわかる!完全無料でここまでできる?HOME4Uマンションプライスって知ってる?