-
全19区画の開発分譲地になります。
-
前面道路写真です。
-
現況更地のため建物の解体は必要ありません。
-
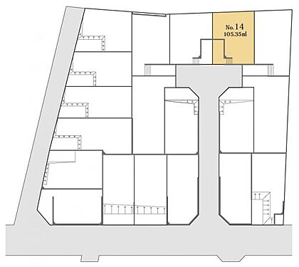
NO.14区画 発売中です。
-
お好みの住まいを建築可能です。
-
開発分譲地になります。
-
ご家族こだわりの間取で建ててみませんか。
-
どんなマイホームにしようか、楽しみが広がります。
-
穏やかな環境で生活を送れますね。
-
ぜひ現地をご確認ください。
-
ネットやお電話でお気軽にお問い合わせくださいませ。
-
現地写真です。
-
現地写真です。
-
現地写真です。
-
現地写真です。
-
現地写真です。
-
現地写真です。
-
現地写真です。
-
現地写真です。
-
現地写真です。
-
現地写真です。
-
現地写真です。
-
現地写真です。
-
現地写真です。
-
区画図です。図面と異なる場合は現況を優先させていただきます。
-
門沢橋駅まで約3670m(徒歩46分)
-
厚木駅まで約3880m(徒歩49分)
-
海老名駅まで約4160m(徒歩52分)
-
相鉄ローゼン 杉久保店まで約630m(徒歩8分)
-
クリエイトS・D 海老名杉久保店まで約790m(徒歩10分)
































