不動産情報 > 中古住宅 > 中古マンション >  都道府県選択 >  広島県の市区郡一覧 >  広島県の中古マンション >  呉市の中古マンション >  広島県呉市広大新開1丁目 11階

マンション

広島県呉市広大新開1丁目 11階

価格 (管理費/修繕積立金) :
790万円 (月額5,200円/月額10,800円)

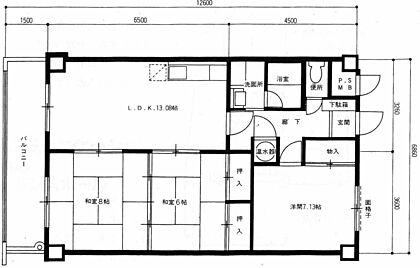
間取り : 3LDK

交通情報 :
  • 呉線 広 徒歩8分
Point
◆最上階 広々75.24m23LDK JR広駅徒歩8分 JR新広駅徒歩13分◆
  •  外観 

  •  間取り 

  •    

  •    

  •    

  •    

  •    

  •    

  •    

  •    

  •    

  •    

  •    

物件の基本情報

物件名 広島県呉市広大新開1丁目
所在地

広島県呉市広大新開1丁目

交通
  • 呉線 広 徒歩8分
価格

790万円

管理費 月額5,200円 修繕積立金 月額10,800円
間取り 3LDK 専有面積 75.24m2(壁芯)
バルコニー面積 10.29m2 バルコニー向き 南東
構造及び階数 SRC(鉄骨鉄筋コンクリート) 11階(地下11階)建て 所在階 11階
築年月 昭和55年11月 (築44年)
登録日 2025年2月6日 有効期限 2025年10月31日 (あと2日)
前回情報更新日 2025年10月17日 次回情報更新日 2025年11月12日

お問合せ内容を指定して不動産会社に連絡してみませんか?

物件の特徴・設備・サービス

この物件のこだわり
  • 新築
  • 2階以上の物件
  • 低層
  • タワー
  • 南向き
  • 駐車場あり
  • オートロック
  • 角部屋
  • オール電化
  • リノベーション物件
位置 2階以上 最上階
その他 バルコニー 所有権 鉄筋系 子育てに便利な施設が充実
物件の状況 即入居可
物件規模 総戸数・総区画数30以上

物件の詳細情報

総戸数 70戸 駐車場 空無
土地権利 所有権
用途地域 商業地域 国土法届出
修繕積立基金 保証金または敷金
権利金 施設費用/償却費
その他費用 管理費 5,200円
引渡し 即時 現況 空家

管理 管理方式:自主、 管理組合:−、 管理会社名:−、 管理形態:−、 管理員:−
取引形態 売主
設備
備考

物件周辺施設までの距離

小学校
  • 白岳小学校 860m
  • 中学校
  • 白岳中学校 1,000m
  • 情報提供元:株式会社LIFULL

    物件取り扱い会社

    株式会社空家売却マネージメント
    所在地: 広島県広島市中区上八丁堀7-1 ハイオス広島507
    免許番号: 広島県知事(2)第10809号
    所属団体名・公取協名: 中国地区不動産公正取引協議会,(公社)広島県宅地建物取引業協会,(公社)西日本不動産流通機構
    お問い合わせ番号: 01542-2304
    物件番号: 32137090000013
    自社管理番号: 00256151
    無料通話: 0037-634-75840
     ※音声案内に従いお問い合わせ番号を入力し、自社管理番号を不動産会社に伝えてください。
     ※光IP電話、及びIP電話からのご利用はいただけません。
    TEL: 082-207-4360

    直接お電話する場合は、「中古住宅ホームフォーユーを見て」とお伝えください。

    最寄り駅からマンションを探す

    この物件の近くのマンションを探す

    お気に入りへ登録が完了しました
    お気に入りの削除が完了しました

    このページのトップへ

    広島県呉市広大新開1丁目の物件情報なら、「中古住宅HOME4U」!
    「中古住宅HOME4U」は、NTTデータ・ウィズが運営する中古物件専門の情報サイトです。 広島県呉市広大新開1丁目などの中古マンションをはじめ、全国の新築仲介物件を含む中古マンション情報が満載です。 広島県呉市広大新開1丁目などの中古マンションを沿線・エリア・相場価格などから検索でき、複数の不動産会社に無料で一括資料請求ができます。 広島県呉市広大新開1丁目などの中古マンションを探すなら、国内最大級の物件数を誇る「中古住宅HOME4U」をご利用ください! また、住み替えをご検討中の方は「不動産売却HOME4U」で、中古住宅の不動産査定をご利用ください。

    閉じる
    閉じる
    閉じる 全国15万棟のマンションの相場や口コミがわかる!完全無料でここまでできる?HOME4Uマンションプライスって知ってる?