不動産情報 > 中古住宅 > 中古一戸建て >  都道府県選択 >  秋田県の市区郡一覧 >  秋田県の中古一戸建て >  秋田市の中古一戸建て >  秋田県秋田市飯島文京町

一戸建て

秋田県秋田市飯島文京町

価格 : 880万円

間取り : 3LDK

交通情報 :
  • JR奥羽本線 上飯島 より車で1446m 4分
Point
収納たっぷりの広々22帖LDKでゆったり過ごそう!
  •  外観 

  •  外観 

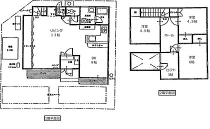
  •  間取り 

  •  リビング/ダイニング 

  •  キッチン 

  •  洗面 

  •  浴室 

  •  トイレ 

  •  玄関 

  •  その他 

  •  ロフト 

  •  ロフト 

物件の基本情報

所在地

秋田県秋田市飯島文京町

交通
  • JR奥羽本線 上飯島 より車で1446m 4分
価格

880万円

間取り 3LDK 構造及び階数 木造 2階建て
建物面積 81.97m2 土地面積 117.03m2(登記簿)
代表的な接道 一方 私道 西 4m ※詳細は備考欄をご確認ください
築年月 平成1年11月 (築36年)
登録日 2025年9月23日 有効期限 2025年11月19日 (あと14日)
前回情報更新日 2025年11月4日 次回情報更新日 2025年11月19日

お問合せ内容を指定して不動産会社に連絡してみませんか?

物件の特徴・設備・サービス

この物件のこだわり
  • 新築
  • 都市ガス
  • 駐車場あり
  • 南向き
  • 土地権利・所有権
  • リノベーション物件
キッチン カウンターキッチン
その他 公営水道 プロパンガス 浄化槽 温水洗浄便座 クローゼット リフォーム物件 駐車場あり 所有権 リフォーム・リノベーション済 LDK15帖以上 2階建て 木造 平坦地 子育てに便利な施設が充実
設備・サービス 追焚機能
物件の状況 即入居可

物件の詳細情報

総戸数 駐車場 有/空き1台
土地権利 所有権
セットバック 私道負担面積
都市計画 市街化区域 地目 宅地
用途地域 第一種中高層住居専用地域 国土法届出 不要
建ぺい率/容積率 60%/160% 保証金または敷金
権利金 施設費用/償却費
その他費用 地勢 平坦
引渡し 即時 現況 空家

取引形態 仲介
設備
備考 【接道】 一方 ( 私道 西 4m )

・再建築時セットバックが必要になります。(0.005mセットバック)・キッチンコンロは撤去済みです。ボイラーは使用できない可能性があります。・売主にて表題変更登記を行いお引渡し致します。・駐車スペースについて、車種によっては複数台駐車可能です。
景観法、秋田市中高層の建築に係る紛争の予防および調整の条例

物件のリフォーム情報

水回り 2005年10月
キッチン、浴室、トイレ、洗面所
内装 2005年10月
2階洋室間仕切り撤去、ロフト増築
※実施年月は、施工箇所の中で最も古いものを表示しています

物件周辺施設までの距離

小学校
  • 秋田市立飯島小学校 1,216m
  • 中学校
  • 秋田市立飯島中学校 1,145m
  • コンビニ
  • 1,174m
  • スーパー
  • 1,051m
  • 病院
  • 2,615m
  • 公園
  • 1,864m
  • ドラッグストア
  • 1,572m
  • 銀行
  • 1,167m
  • 情報提供元:株式会社LIFULL

    物件取り扱い会社

    ピタットハウス秋田保戸野店 株式会社財産コンサルティング
    所在地: 秋田県秋田市保戸野原の町8番27号
    免許番号: 秋田県知事(07)第001573号
    所属団体名・公取協名: (公財)東日本不動産流通機構
    お問い合わせ番号: 52269-2302
    物件番号: 1383200000661
    自社管理番号: 132000_AFQ00081
    無料通話: 0037-634-70097
     ※音声案内に従いお問い合わせ番号を入力し、自社管理番号を不動産会社に伝えてください。
     ※光IP電話、及びIP電話からのご利用はいただけません。
    TEL: 0120-60-3150

    直接お電話する場合は、「中古住宅ホームフォーユーを見て」とお伝えください。

    この物件の近くの一戸建てを探す

    お気に入りへ登録が完了しました
    お気に入りの削除が完了しました

    このページのトップへ

    秋田県秋田市飯島文京町の物件情報なら、「中古住宅HOME4U」!
    「中古住宅HOME4U」は、NTTデータ・ウィズが運営する中古物件専門の情報サイトです。 秋田県秋田市飯島文京町などの中古一戸建てをはじめ、全国の新築仲介物件を含む中古一戸建て情報が満載です。 秋田県秋田市飯島文京町などの中古一戸建てを沿線・エリア・相場価格などから検索でき、複数の不動産会社に無料で一括資料請求ができます。 秋田県秋田市飯島文京町などの中古一戸建てを探すなら、国内最大級の物件数を誇る「中古住宅HOME4U」をご利用ください! また、住み替えをご検討中の方は「不動産売却HOME4U」で、中古住宅の不動産査定をご利用ください。

    閉じる
    閉じる
    閉じる 全国15万棟のマンションの相場や口コミがわかる!完全無料でここまでできる?HOME4Uマンションプライスって知ってる?