不動産情報 > 中古住宅 > 中古一戸建て >  都道府県選択 >  福島県の市区郡一覧 >  福島県の中古一戸建て >  郡山市の中古一戸建て >  福島県郡山市富田東3丁目

一戸建て

福島県郡山市富田東3丁目

価格 : 4,480万円

間取り : 3LDK

交通情報 :
  • 磐越西線 郡山富田 徒歩8分
Point
祝!60周年記念価格!『家具付き』住宅展示場をそのままお譲りします! 
  •  外観 

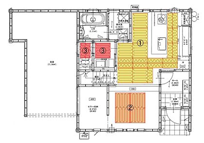
  •  間取り 

  •  床暖暖房施工エリア 

  •  リビング/ダイニング 

  •  リビング/ダイニング 

  •  リビング/ダイニング 

  •  リビング/ダイニング 

  •  キッチン 

  •  キッチン 

  •  洗面 

  •  浴室 

  •  トイレ 

  •  収納 

  •  玄関 

  •  室内 

  •  室内 

  •  室内 

  •  室内 

  •  室内 

  •  室内 

  •  室内 

  •  バルコニー 

  •  バルコニー 

物件の基本情報

所在地

福島県郡山市富田東3丁目

交通
  • 磐越西線 郡山富田 徒歩8分
価格

4,480万円

間取り 3LDK 構造及び階数 木造 2階建て
建物面積 133.93m2 土地面積 180.49m2(登記簿)
代表的な接道 一方 公道 南 16.5m ※詳細は備考欄をご確認ください
築年月 令和5年9月 (築2年)
登録日 2025年1月19日 有効期限 2025年11月23日 (あと14日)
前回情報更新日 2025年11月8日 次回情報更新日 2025年11月23日

お問合せ内容を指定して不動産会社に連絡してみませんか?

物件の特徴・設備・サービス

この物件のこだわり
  • 新築
  • 都市ガス
  • 駐車場あり
  • 南向き
  • 土地権利・所有権
  • リノベーション物件
位置 南向き 南道路
その他 エアコン 食器洗い乾燥機 公営水道 プロパンガス 浄化槽 オートバス シャワー付洗面化粧台 温水洗浄便座 浴室1.6×2.0m以上 全居室収納 バルコニー ロフト付き 室内洗濯機置場 駐車場あり 建築確認完了検査済証 所有権 売主・代理 南面バルコニー 2階建て 木造 前面道路6m以上
設備・サービス 床暖房 追焚機能 浴室乾燥機 ウォークインクローゼット
キッチン IHコンロ システムキッチン
物件の状況 即入居可

物件の詳細情報

総戸数 駐車場
土地権利 所有権
セットバック 私道負担面積
都市計画 市街化区域 地目 宅地
用途地域 第二種住居地域 国土法届出 不要
建ぺい率/容積率 60%/200% 保証金または敷金
権利金 施設費用/償却費
その他費用
引渡し 即時 現況 空家

取引形態 売主
設備
備考 【接道】 一方 ( 公道 南 16.5m )

物件周辺施設までの距離

小学校
  • 郡山市立行徳小学校 1,535m
  • 中学校
  • 郡山市立行健中学校 1,581m
  • 情報提供元:株式会社LIFULL

    物件取り扱い会社

    郡中丸木株式会社 郡山売買課
    所在地: 福島県郡山市備前舘2丁目100
    免許番号: 福島県知事(04)第002774号
    所属団体名・公取協名: 所属団体未加入
    お問い合わせ番号: 28060-2301
    物件番号: 32282130000687
    自社管理番号: 533944
    無料通話: 0037-634-77001
     ※音声案内に従いお問い合わせ番号を入力し、自社管理番号を不動産会社に伝えてください。
     ※光IP電話、及びIP電話からのご利用はいただけません。
    TEL: 024-953-6433

    直接お電話する場合は、「中古住宅ホームフォーユーを見て」とお伝えください。

    最寄り駅から一戸建てを探す

    この物件の近くの一戸建てを探す

    お気に入りへ登録が完了しました
    お気に入りの削除が完了しました

    このページのトップへ

    福島県郡山市富田東3丁目の物件情報なら、「中古住宅HOME4U」!
    「中古住宅HOME4U」は、NTTデータ・ウィズが運営する中古物件専門の情報サイトです。 福島県郡山市富田東3丁目などの中古一戸建てをはじめ、全国の新築仲介物件を含む中古一戸建て情報が満載です。 福島県郡山市富田東3丁目などの中古一戸建てを沿線・エリア・相場価格などから検索でき、複数の不動産会社に無料で一括資料請求ができます。 福島県郡山市富田東3丁目などの中古一戸建てを探すなら、国内最大級の物件数を誇る「中古住宅HOME4U」をご利用ください! また、住み替えをご検討中の方は「不動産売却HOME4U」で、中古住宅の不動産査定をご利用ください。

    閉じる
    閉じる
    閉じる 全国15万棟のマンションの相場や口コミがわかる!完全無料でここまでできる?HOME4Uマンションプライスって知ってる?