-
広々とした敷地が魅力的な外観です。周囲に自然が感じられる穏やかな環境です。成功を見込める場所に位置しています。新たなプロジェクトに最適な条件を備えています。
-
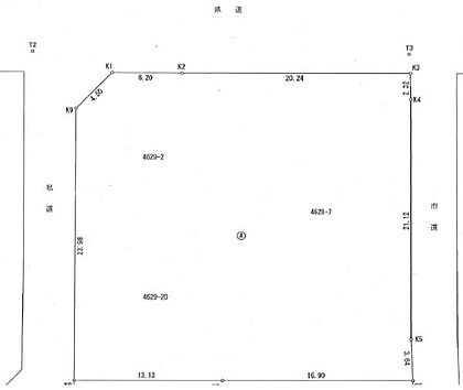
広々とした敷地が魅力的な物件です。四方に接道がありアクセスしやすい立地です。理想の住まいを形にする余地があります。
-
葛原公園まで1223m、葛原公園
-
御所見中学校まで1080m
-
くずはら里山広場まで1432m、くずはら里山広場
-
セブンイレブン藤沢菖蒲沢店まで1342m
-
西松屋チェーン 藤沢葛原店まで1746m
-
藤沢市少年の森まで1586m
-
イトーヨーカドー湘南台店まで1912m
-
開放感あふれる街並みに囲まれた物件です。整備された道路が近くアクセスが良好です。周囲には住宅が多く住みやすい環境となっています。
-
広々とした前面道路があることで車の通行や駐車がしやすく快適な生活が期待できます。周囲の空間もゆとりが感じられプライバシーを守りつつ安心して暮らせる環境です。
-
広々とした空間が広がる現地は自然を感じられるロケーションです。前面道路も整備されアクセスも良好です。周囲の住宅との調和が取れた落ち着いたエリアです。
-
周囲には緑が多くゆったりとした雰囲気の前面道路です。空が広く開放感が感じられます。交通量も適度で安心して通行できる環境です。
-
広々とした前面道路が印象的な現地写真です。交通アクセスの良さが伺えます。快適な車での移動が可能です。周辺環境が整った場所に位置し生活に便利です。
-
広々とした前面道路が魅力の物件です。交通の利便性を重視する方におすすめいたします。周辺には住宅が広がり静かな環境を期待できます。青空が広がる爽やかなロケーションです。

















