不動産情報 > 中古住宅 > 中古一戸建て > 都道府県選択 > 神奈川県の市区郡一覧 > 神奈川県の中古一戸建て > 大和市の中古一戸建て > 神奈川県大和市柳橋5丁目
| 所在地 | 神奈川県大和市柳橋5丁目 | ||
|---|---|---|---|
| 交通 | 
 | ||
| 価格 | |||
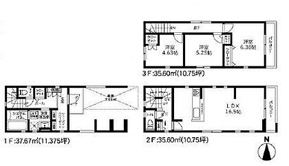
| 間取り | 3LDK | 構造及び階数 | 木造 3階建て | 
| 建物面積 | 108.87m2 | 土地面積 | 60.66m2(実測) | 
| 代表的な接道 | 一方 公道 東 4m ※詳細は備考欄をご確認ください | ||
| 築年月 | 令和6年10月 (築1年) | ||
| 登録日 | 2024年3月22日 | 有効期限 | 2025年11月13日 (あと13日) | 
| 前回情報更新日 | 2025年10月30日 | 次回情報更新日 | 2025年11月14日 | 
| この物件のこだわり | 
 | 
|---|---|
| セキュリティ | ●TVモニタ付インターホン | 
| キッチン | ●コンロ三口 ●システムキッチン ●カウンターキッチン | 
| その他 | ●コンロ二口以上 ●コンロ三口以上 ●公営水道 ●都市ガス ●下水 ●洗面所独立 ●全居室収納 ●床下収納 ●クローゼット ●シューズインクローゼット ●フローリング ●バルコニー ●駐車場あり ●所有権 ●上下水道 ●トイレ2ヶ所以上 ●ガスコンロ設置済 ●ガスコンロ ●断熱窓(複層ガラス、内窓等) ●3階建て以上 ●木造 ●複数路線 | 
| 設備・サービス | ●浴室乾燥機 ●ウォークインクローゼット | 
| 周辺環境 | ●コンビニ 800m以内 | 
| 総戸数 | − | 駐車場 | 有/空き1台 | 
|---|---|---|---|
| 土地権利 | 所有権 | ||
| セットバック | 無 | 私道負担面積 | − | 
| 都市計画 | 市街化区域 | 地目 | 宅地 | 
| 用途地域 | 準工業地域 | 国土法届出 | 不要 | 
| 建ぺい率/容積率 | 60%/200% | 保証金または敷金 | − | 
| 権利金 | − | 施設費用/償却費 | − | 
| その他費用 | − | ||
| 引渡し | 相談 | 現況 | 空家 | 
| 取引形態 | 仲介 | ||
| 設備 | − | ||
| 備考 | 【接道】 一方 ( 公道 東 4m ) [物件コード]135602-12782 | ||
| 小学校 |  | 
|---|---|
| 中学校 |  | 
| コンビニ |  | 
| スーパー |  | 
| 公園 |  | 
| ドラッグストア |  | 
| その他 |  | 
センチュリー21リレーション海老名中央店  (株)リレーション 海老名中央店
所在地: 神奈川県海老名市中央2丁目9-1スタービレ海老名 
免許番号: 神奈川県知事(4)第27057号
所属団体名・公取協名: (公社)神奈川県宅地建物取引業協会,(公社)首都圏不動産公正取引協議会
お問い合わせ番号: 44104-2300
物件番号: 89430007307
自社管理番号: 135602-12782
無料通話: 0037-634-74765
 ※音声案内に従いお問い合わせ番号を入力し、自社管理番号を不動産会社に伝えてください。
 ※光IP電話、及びIP電話からのご利用はいただけません。
TEL: 0120-70-3021
直接お電話する場合は、「中古住宅ホームフォーユーを見て」とお伝えください。
 
