不動産情報 > 中古住宅 > 中古マンション >  都道府県選択 >  静岡県の市区郡一覧 >  静岡県の中古マンション >  熱海市の中古マンション >  プチモンド熱海 東館 2階

マンション

プチモンド熱海 東館 2階

価格 (管理費/修繕積立金) :
1,200万円 (月額31,500円/月額6,861円)

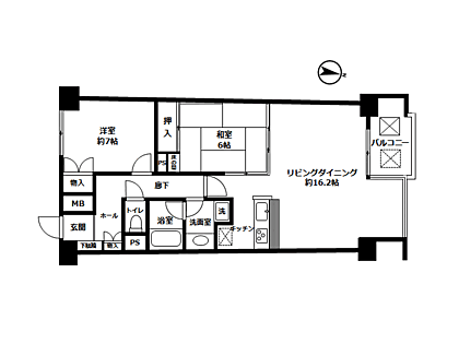
間取り : 2LDK

交通情報 :
  • 東海道新幹線「熱海駅」より車約4分(約2.4km)
Point
熱海市街地・海・花火を望む高台のリゾートマンション!ゆとりある2LDKで生活しやすい間取り!温泉大浴場・露天風呂・スカッシュルーム等共用施設充実!
  •  プチモンド熱海 東館 

  •  施設充実のリゾートマンション 

  •  2LDK 

  •  カウンター付きで便利です 

  •  対面型キッチン 

  •  洗面化粧台 

  •  温水洗浄便座付きのトイレ 

  •  玄関 収納付き 

  •  リビングダイニング約16.2帖 

  •  明るくゆとりある広さのリビングダイニング 

  •  リビングダイニング ゆったり快適に寛げます 

  •  リビングダイニング 窓の先にバルコニーがあります 

  •  和室6帖 押入れ収納付 

  •  洋室約7帖 

  •  室内浴室 

  •  共用部分 温泉大浴場 

  •  共用部分 露天風呂 

  •  熱海市街地と海見下ろす眺望 

  •  熱海海上花火大会も楽しめます 

物件の基本情報

物件名 プチモンド熱海 東館
所在地

静岡県熱海市熱海1981-68

交通
  • 東海道新幹線「熱海駅」より車約4分(約2.4km)
価格

1,200万円

管理費 月額31,500円 修繕積立金 月額6,861円
間取り 2LDK 専有面積 77.09m2(壁芯)
バルコニー面積 5.59m2 バルコニー向き 北西
構造及び階数 SRC(鉄骨鉄筋コンクリート) 6階(地下2階)建て 所在階 2階
築年月 平成3年10月 (築34年)
登録日 2025年9月18日 有効期限 2025年11月13日 (あと5日)
前回情報更新日 2025年10月30日 次回情報更新日 2025年11月22日

お問合せ内容を指定して不動産会社に連絡してみませんか?

物件の特徴・設備・サービス

この物件のこだわり
  • 新築
  • 2階以上の物件
  • 低層
  • タワー
  • 南向き
  • 駐車場あり
  • オートロック
  • 角部屋
  • オール電化
  • リノベーション物件
位置 2階以上
その他 ペット不可 電気コンロ 公営水道 都市ガス 下水 光ファイバー ブロードバンド バルコニー 室内洗濯機置場 バイク置き場あり 所有権 LDK15帖以上 和室 鉄筋系
セキュリティ オートロック

物件の詳細情報

総戸数 駐車場
土地権利 所有権
用途地域 第二種住居地域 国土法届出 不要
修繕積立基金 保証金または敷金
権利金 施設費用/償却費
その他費用
引渡し 相談 現況 空家

管理 管理方式:日勤、 管理組合:−、 管理会社名:−、 管理形態:−、 管理員:−
取引形態 仲介
設備
備考 ■駐車場有:12、000円/月(定住者のみ)・500円/日■WEB1538

情報提供元:株式会社LIFULL

物件取り扱い会社

株式会社アップタウン伊豆
所在地: 静岡県熱海市田原本町1-10
免許番号: 静岡県知事(08)第010231号
所属団体名・公取協名: 東海不動産公正取引協議会,(公社)静岡県宅地建物取引業協会
お問い合わせ番号: 36268-2305
物件番号: 33310640000938
自社管理番号: 00125266
無料通話: 0037-634-79871
 ※音声案内に従いお問い合わせ番号を入力し、自社管理番号を不動産会社に伝えてください。
 ※光IP電話、及びIP電話からのご利用はいただけません。
TEL: 0120-85-2300

直接お電話する場合は、「中古住宅ホームフォーユーを見て」とお伝えください。

この物件の近くのマンションを探す

お気に入りへ登録が完了しました
お気に入りの削除が完了しました

このページのトップへ

プチモンド熱海 東館の物件情報なら、「中古住宅HOME4U」!
「中古住宅HOME4U」は、NTTデータ・ウィズが運営する中古物件専門の情報サイトです。 プチモンド熱海 東館などの中古マンションをはじめ、全国の新築仲介物件を含む中古マンション情報が満載です。 プチモンド熱海 東館などの中古マンションを沿線・エリア・相場価格などから検索でき、複数の不動産会社に無料で一括資料請求ができます。 プチモンド熱海 東館などの中古マンションを探すなら、国内最大級の物件数を誇る「中古住宅HOME4U」をご利用ください! また、住み替えをご検討中の方は「不動産売却HOME4U」で、中古住宅の不動産査定をご利用ください。

閉じる
閉じる
閉じる 全国15万棟のマンションの相場や口コミがわかる!完全無料でここまでできる?HOME4Uマンションプライスって知ってる?