不動産情報 > 中古住宅 > 中古一戸建て >  都道府県選択 >  新潟県の市区郡一覧 >  新潟県の中古一戸建て >  阿賀野市の中古一戸建て >  新潟県阿賀野市北本町

一戸建て

新潟県阿賀野市北本町

価格 : 1,780万円

間取り : 4LDK

交通情報 :
  • 羽越本線 水原 徒歩18分
Point
■日当り良好な広い敷地と開放的な18帖リビングの住宅 ■4LDK(LDK18帖) ■駐車6台可 ■東側約7.1m道路(歩道含む) ■住宅ローン減税適用 ■R5.2 リフォーム済み
  •  外観 

  •  間取り 

  •  リビング/ダイニング 

  •  リビング/ダイニング 

  •  リビング/ダイニング 

  •  リビング/ダイニング 

  •  キッチン 

  •  キッチン 

  •  洗面 

  •  浴室 

  •  トイレ 

  •  トイレ 

  •  玄関 

  •  和室 

  •  和室 

  •  和室 

  •  和室 

  •  洋室 

  •  洋室 

  •  洋室 

  •  洋室 

物件の基本情報

所在地

新潟県阿賀野市北本町22番40号

交通
  • 羽越本線 水原 徒歩18分
価格

1,780万円

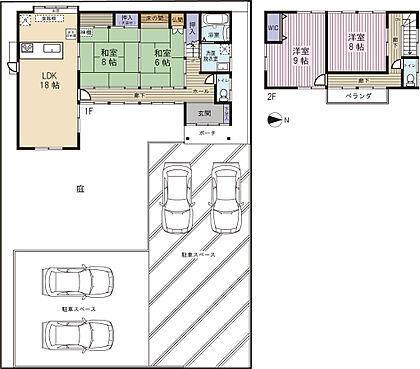
間取り 4LDK 構造及び階数 木造 2階建て
建物面積 124.35m2 土地面積 330.70m2(登記簿)
代表的な接道 一方 公道 東 7.1m ※詳細は備考欄をご確認ください
築年月 昭和62年1月 (築38年)
登録日 2025年10月27日 有効期限 2025年11月10日 (あと11日)
前回情報更新日 2025年10月27日 次回情報更新日 2025年11月13日

お問合せ内容を指定して不動産会社に連絡してみませんか?

物件の特徴・設備・サービス

この物件のこだわり
  • 新築
  • 都市ガス
  • 駐車場あり
  • 南向き
  • 土地権利・所有権
  • リノベーション物件
キッチン コンロ三口 システムキッチン カウンターキッチン
その他 コンロ二口以上 コンロ三口以上 給湯 公営水道 プロパンガス 下水 専用バス 専用トイレ 温水洗浄便座 洗面所独立 床下収納 シューズボックス フローリング 出窓 バルコニー 室内洗濯機置場 リフォーム物件 駐車場2台以上 駐車場あり 所有権 売主・代理 上下水道 ガスコンロ設置済 ガスコンロ リフォーム・リノベーション済 LDK15帖以上 和室 駐車場3台以上 2階建て 木造 前面道路6m以上
設備・サービス ウォークインクローゼット 専用庭
物件の状況 即入居可

物件の詳細情報

総戸数 駐車場 有/空き6台
土地権利 所有権
セットバック 私道負担面積
都市計画 非線引都市計画区域 地目 宅地
用途地域 第一種住居地域 国土法届出 不要
建ぺい率/容積率 60%/200% 保証金または敷金
権利金 施設費用/償却費
その他費用
引渡し 即時 現況 空家

取引形態 売主
設備
備考 【接道】 一方 ( 公道 東 7.1m )

石油給湯器

物件のリフォーム情報

水回り 2023年02月
キッチン、浴室、トイレ、洗面所
内装 2023年02月
壁、天井(クロス、塗装等)、床(フローリング等)
外装 2023年02月
屋根、外壁
屋根補修、一部外壁張替、 駐車場増設等
※実施年月は、施工箇所の中で最も古いものを表示しています

物件周辺施設までの距離

小学校
  • 阿賀野市立水原小学校 1,100m
  • 中学校
  • 阿賀野市立水原中学校 1,800m
  • スーパー
  • 1,000m
  • その他
  • 阿賀野市役所 1,100m
  • 情報提供元:株式会社LIFULL

    物件取り扱い会社

    有限会社幸せホーム
    所在地: 新潟県新潟市中央区天神尾1丁目12番9号
    免許番号: 新潟県知事(5)第4600号
    所属団体名・公取協名: (公社)首都圏不動産公正取引協議会,(公社)新潟県宅地建物取引業協会
    お問い合わせ番号: 63722-2302
    物件番号: 1127340003329
    無料通話: 0037-634-10612
     ※音声案内に従いお問い合わせ番号を入力し、物件番号を不動産会社に伝えてください。
     ※光IP電話、及びIP電話からのご利用はいただけません。
    TEL: 025-255-5680

    直接お電話する場合は、「中古住宅ホームフォーユーを見て」とお伝えください。

    最寄り駅から一戸建てを探す

    この物件の近くの一戸建てを探す

    お気に入りへ登録が完了しました
    お気に入りの削除が完了しました

    このページのトップへ

    新潟県阿賀野市北本町の物件情報なら、「中古住宅HOME4U」!
    「中古住宅HOME4U」は、NTTデータ・ウィズが運営する中古物件専門の情報サイトです。 新潟県阿賀野市北本町などの中古一戸建てをはじめ、全国の新築仲介物件を含む中古一戸建て情報が満載です。 新潟県阿賀野市北本町などの中古一戸建てを沿線・エリア・相場価格などから検索でき、複数の不動産会社に無料で一括資料請求ができます。 新潟県阿賀野市北本町などの中古一戸建てを探すなら、国内最大級の物件数を誇る「中古住宅HOME4U」をご利用ください! また、住み替えをご検討中の方は「不動産売却HOME4U」で、中古住宅の不動産査定をご利用ください。

    閉じる
    閉じる
    閉じる 全国15万棟のマンションの相場や口コミがわかる!完全無料でここまでできる?HOME4Uマンションプライスって知ってる?