不動産情報 > 中古住宅 > 中古マンション >  都道府県選択 >  埼玉県の市区郡一覧 >  埼玉県の中古マンション >  北足立郡伊奈町の中古マンション >  サンライズ伊奈 7階 >  サンライズ伊奈 7階を取り扱う不動産店一覧

サンライズ伊奈 7階の取り扱い不動産店一覧

マンション

価格
1,280万円
構造/階数
SRC(鉄骨鉄筋コンクリート) / 8階建
管理費等
6,300円
修繕積立金
18,700円
交通
JR東北本線 蓮田駅 徒歩16分
所在地
埼玉県北足立郡伊奈町大字小室
築年月(築年数)
1978年11月(48年)
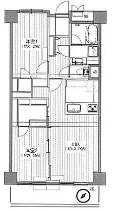
専有面積
61.2m2
バルコニー面積
7.74m2
間取り
2LDK

この物件を扱う業者は以下の9件です。

  • チェックした物件を

  • まとめて資料請求する(無料)
  • お気に入りに入れる

信栄ホーム株式会社

会社情報
所在地 埼玉県蓮田市本町5-16
営業時間 09:00-18:00
定休日 毎週水曜日 第1・3・最終火曜日
自社管理番号 99127
  • お問い合せ 0037-634-14455
  • 資料請求する(無料)
  • お気に入りに入れる お気に入りから削除

株式会社こもれびハウス

会社情報
所在地 埼玉県上尾市泉台2丁目6-9
営業時間 09:00-20:00
定休日 毎週水曜日
自社管理番号 108809
  • お問い合せ 0037-634-24768
  • 資料請求する(無料)
  • お気に入りに入れる お気に入りから削除

株式会社サンシティホーム 大宮店

会社情報
所在地 埼玉県さいたま市見沼区東大宮7丁目71-8
営業時間 09:00-20:00
定休日 年末年始
自社管理番号 B01507-111307
  • お問い合せ 0037-634-47182
  • 資料請求する(無料)
  • お気に入りに入れる お気に入りから削除

株式会社ひだまりハウス 上尾支店

会社情報
所在地 埼玉県上尾市向山2丁目40-8
営業時間 09:00-19:00
定休日 毎週水曜日
自社管理番号 102207
  • お問い合せ 0037-634-56826
  • 資料請求する(無料)
  • お気に入りに入れる お気に入りから削除

株式会社スターフォレスト

会社情報
所在地 埼玉県川口市芝1丁目28−1
営業時間 09:00-22:00
定休日 年中無休
自社管理番号 KGO035821
  • お問い合せ 0037-634-57727
  • 資料請求する(無料)
  • お気に入りに入れる お気に入りから削除

ジーアール株式会社

会社情報
所在地 埼玉県さいたま市大宮区宮町4丁目129
営業時間 09:00-18:00
定休日 火曜日、水曜日、年末年始、 夏季休暇 
自社管理番号 2142499534250000050450
  • お問い合せ 0037-634-63586
  • 資料請求する(無料)
  • お気に入りに入れる お気に入りから削除

ME不動産埼京株式会社

会社情報
所在地 埼玉県さいたま市浦和区神明2丁目12-10
営業時間 09:00-18:30
定休日
自社管理番号 990960200
  • お問い合せ 0037-634-69151
  • 資料請求する(無料)
  • お気に入りに入れる お気に入りから削除

株式会社エステート白馬 上尾駅前店

会社情報
所在地 埼玉県上尾市谷津2丁目1-1ショーサンプラザ(イトーヨーカ堂)5階
営業時間 10:00-20:00
定休日 年中無休
自社管理番号 31020544481
  • お問い合せ 0037-634-06469
  • 資料請求する(無料)
  • お気に入りに入れる お気に入りから削除

株式会社エステート白馬 東大宮店

会社情報
所在地 埼玉県さいたま市見沼区東大宮5丁目31−9 NYビル1F
営業時間 09:30-18:30
定休日 年末年始のみ
自社管理番号 31020521675
  • お問い合せ 0037-634-38999
  • 資料請求する(無料)
  • お気に入りに入れる お気に入りから削除
お気に入りへ登録が完了しました
お気に入りの削除が完了しました

このページのトップへ

「中古住宅HOME4U」は、NTTデータ・ウィズが運営する中古物件専門の情報サイトです。全国の、新築仲介物件を含む中古マンション・中古一戸建て・土地を、沿線・エリア・相場価格などから検索でき、複数の不動産会社に無料で一括資料請求が可能です。また、住み替えをご検討中の方は「不動産売却HOME4U」で、中古住宅の不動産査定もご利用ください。

閉じる
閉じる
閉じる 全国15万棟のマンションの相場や口コミがわかる!完全無料でここまでできる?HOME4Uマンションプライスって知ってる?