不動産情報 > 中古住宅 > 中古マンション >  都道府県選択 >  兵庫県の市区郡一覧 >  兵庫県の中古マンション >  神戸市東灘区の中古マンション >  ステイツ住吉サンクチュアリ・スクエア 4階 >  ステイツ住吉サンクチュアリ・スクエア 4階を取り扱う不動産店一覧

ステイツ住吉サンクチュアリ・スクエア 4階の取り扱い不動産店一覧

マンション

価格
3,880万円
構造/階数
RC(鉄筋コンクリート) / 6階建
管理費等
15,620円
修繕積立金
15,970円
交通
阪神本線 魚崎駅 徒歩6分
所在地
兵庫県神戸市東灘区魚崎北町4丁目
築年月(築年数)
1996年08月(30年)
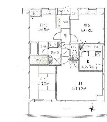
専有面積
66.75m2
バルコニー面積
11.71m2
間取り
3LDK

この物件を扱う業者は以下の6件です。

  • チェックした物件を

  • まとめて資料請求する(無料)
  • お気に入りに入れる

株式会社福屋不動産販売 岡本店

会社情報
所在地 兵庫県神戸市東灘区本山北町3丁目4-21 プラーシュ本山1階
営業時間 10:00-19:00
定休日 火・水曜日(例外有),GW,夏期,年末年始
自社管理番号 61095707000
  • お問い合せ 0037-634-21644
  • 資料請求する(無料)
  • お気に入りに入れる お気に入りから削除

センチュリー21株式会社アクロスコーポレイション 阪急西宮ガーデンズ前店

会社情報
所在地 兵庫県西宮市高松町11-8
営業時間 10:00-19:30
定休日 年末年始
自社管理番号 279312
  • お問い合せ 0037-634-82610
  • 資料請求する(無料)
  • お気に入りに入れる お気に入りから削除

センチュリー21株式会社アクロス 西宮北口駅前店

会社情報
所在地 兵庫県西宮市甲風園1丁目6−8
営業時間 10:00-19:30
定休日 年末年始
自社管理番号 279304
  • お問い合せ 0037-634-31301
  • 資料請求する(無料)
  • お気に入りに入れる お気に入りから削除

神戸不動産リアルティ株式会社 西宮店

会社情報
所在地 兵庫県西宮市高松町1-12
営業時間 09:00-20:00
定休日 水曜日
自社管理番号 B01813-001461
  • お問い合せ 0037-619-07723
  • 資料請求する(無料)
  • お気に入りに入れる お気に入りから削除

野村不動産ソリューションズ株式会社 岡本センター

会社情報
所在地 兵庫県神戸市東灘区本山北町3丁目4番18号 トラスト本山ビル1F
営業時間 10:00-18:00
定休日 火曜日・水曜日
自社管理番号 B22543-000028
  • お問い合せ 0037-619-33959
  • 資料請求する(無料)
  • お気に入りに入れる お気に入りから削除

センチュリー21 株式会社フロンティア住宅販売 東灘店

会社情報
所在地 兵庫県神戸市東灘区本山中町1丁目11-2
営業時間 09:00-21:00
定休日 年中無休
自社管理番号 B01835-001324
  • お問い合せ 0037-619-67545
  • 資料請求する(無料)
  • お気に入りに入れる お気に入りから削除
お気に入りへ登録が完了しました
お気に入りの削除が完了しました

このページのトップへ

「中古住宅HOME4U」は、NTTデータ・ウィズが運営する中古物件専門の情報サイトです。全国の、新築仲介物件を含む中古マンション・中古一戸建て・土地を、沿線・エリア・相場価格などから検索でき、複数の不動産会社に無料で一括資料請求が可能です。また、住み替えをご検討中の方は「不動産売却HOME4U」で、中古住宅の不動産査定もご利用ください。

閉じる
閉じる
閉じる 全国15万棟のマンションの相場や口コミがわかる!完全無料でここまでできる?HOME4Uマンションプライスって知ってる?