不動産情報 > 中古住宅 > 中古一戸建て >  都道府県選択 >  静岡県の市区郡一覧 >  静岡県の中古一戸建て >  熱海市の中古一戸建て >  静岡県熱海市上多賀 >  静岡県熱海市上多賀を取り扱う不動産店一覧

静岡県熱海市上多賀の取り扱い不動産店一覧

一戸建て

価格
870万円
交通
JR東海道本線 熱海駅 10km
所在地
静岡県熱海市上多賀
築年月(築年数)
1989年06月(37年)
主要採光面
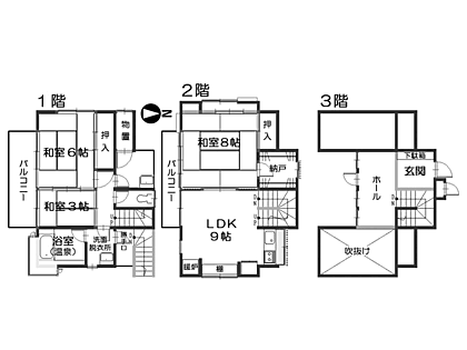
間取り
3SLDK

この物件を扱う業者は以下の2件です。

  • チェックした物件を

  • まとめて資料請求する(無料)
  • お気に入りに入れる

株式会社アップタウン伊豆

会社情報
所在地 静岡県熱海市田原本町1-10
営業時間 09:30-20:00
定休日 毎週水曜日、第1・3火曜日
自社管理番号 00106445
  • お問い合せ 0037-634-79871
  • 資料請求する(無料)
  • お気に入りに入れる お気に入りから削除

ロイヤルリゾート株式会社 熱海駅前店

会社情報
所在地 静岡県熱海市田原本町9−1 熱海第一ビル9F
営業時間 09:00-20:00
定休日 年末年始
自社管理番号 A7456
  • お問い合せ 0037-634-12163
  • 資料請求する(無料)
  • お気に入りに入れる お気に入りから削除
お気に入りへ登録が完了しました
お気に入りの削除が完了しました

このページのトップへ

「中古住宅HOME4U」は、NTTデータ・ウィズが運営する中古物件専門の情報サイトです。全国の、新築仲介物件を含む中古マンション・中古一戸建て・土地を、沿線・エリア・相場価格などから検索でき、複数の不動産会社に無料で一括資料請求が可能です。また、住み替えをご検討中の方は「不動産売却HOME4U」で、中古住宅の不動産査定もご利用ください。

閉じる
閉じる
閉じる 全国15万棟のマンションの相場や口コミがわかる!完全無料でここまでできる?HOME4Uマンションプライスって知ってる?