-
京成本線『堀切菖蒲園』駅徒歩9分
-
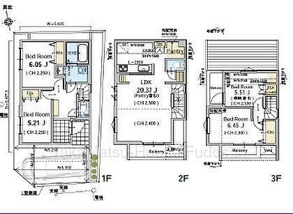
4LDK・建物面積100.26?・土地面積74.28?
-
LDKは20.37?あり・家族で大切な時間を過ごすスペースとなります。
-
南向きで自然光が入りやすく、光が入ることでとても暖かい空間になります。
-
効率よくお料理ができる3口コンロ・食洗機・出し入れしやすいスライド収納を完備したシステムキッチンです。
-
キッチン後ろのスペースも広々しております。
-
白を基調にしている洗面台・シンプルで使いやすく・朝の準備が捗ります
-
一日の疲れを癒すのにピッタリなバスルーム
-
シンプルで機能的なトイレです。
-
キッチン横の収納スペース・大容量の為、収納に困りません
-
広々している為、ホット一息つける空間です。
-
保育園
-
小学校
-
中学校
-
公園
-
コンビニ
-
病院
-
薬局
-
駅
-
洗濯機置き場
-
1階ホール・等身大の鏡があり、外出前の身だしなみチェックにご利用できます。
-
階段
-
建屋後ろからの写真
-
現地建屋前道路
-
3階5.51帖洋室・たくさんお部屋があるので、趣味部屋などにも活躍してくれます。
-
3階6.45帖洋室・寝室などにもお使いにできる、十分な広さです。
-
1階6.05帖洋室・木目調の床になっており、どこか落ち着く空間です。
-
1階5.21帖洋室・収納スペースも完備されており・使いやすい洋室になっております。






























